Top 12+ các mẫu mặt bằng nhà phố 6x18m đẹp và độc đáo trong 2026
Mặt bằng nhà phố 6x18m đẹp và đơn giản, hiện đại, sang trọng hiện đang được đông đảo chủ đầu tư Việt săn đón, đặc biệt là những cặp đôi mới cưới. Bài viết sau đây của KTS Angcovat sẽ chia sẻ cái nhìn tổng quan về mẫu nhà này cũng như hơn 20 kiểu dáng thiết kế đón đầu xu hướng thị trường hiện nay, theo dõi ngay nhé.

Tổng hợp các mẫu mặt bằng nhà phố 6x18m đẹp và sang trọng
Xem thêm: Thiết kế mẫu nhà ống 5.5m hai tầng đẹp mới nhất
1. Lý do vì sao nhiều gia chủ lựa chọn thiết kế mặt bằng nhà phố 6x18m?
Nhiều chuyên gia đã đánh giá 6x18 được coi là kích thước quỹ đất vàng cho việc thiết kế nhà phố. Với tổng diện tích hơn 100m2/ sàng thì gia chủ có được nhiều lợi thế như:
- Không gian mở: 6m là chiều rộng lý tưởng để bố trí các không gian chức năng một cách thoải mái. Chủ đầu tư sẽ không cần gặp phải vấn đề hy sinh công năng.
- Giải phóng cầu thang: Khác với các mẫu nhà mặt tiền 3-4m, Mặt bằng nhà phố 6x18m cho phép bạn đẩy cầu thang về một bên. Nhờ vậy mà tạo thành hàng lang 1.2m – 1.5m giúp phòng ốc, công năng trong nhà đều gọn gàng, vuông vắn. Yếu tố riêng tư cũng được đảm bảo.
- Dễ bố trí gara xe: Với 6m thì hoàn toàn đủ rộng để thiết kế gara ô tô ở bên cạnh một lối đi chính.
- Tối ưu ánh áng và thông gió: Mặt bằng nhà phố 6x18m giúp gia chủ dễ dàng bố trí giếng trời trong nhà, sân trong hoặc các khe thoáng giúp điều chỉnh áng sáng tự nhiên và không khí lưu thông từ trước tới sau, xóa tan đị những yếu tố còn yếu ở công trình nhà phố.
- Đa dạng kiến trúc: Từ hiện đại, tân cổ tới cổ điển thì đều giúp kiến trúc sư tạo nên những mặt tiền bề thế, sang trọng và ấn tượng.

Nhiều gia chủ yêu thích mặt bằng nhà phố 6x18m
2. So sánh điểm mạnh giữa từng loại mặt bằng nhà phố 6x18m
Dưới đây là diểm mạnh của 2 phương án mà gia chủ cần chú ý trước khi thiết kế mặt bằng nhà phố 6x18m
|
Mặt bằng phổ thông |
Mặt bằng hiện đại |
|
|
Đặc điểm |
Cầu thang được đặt chính giữa nhà. Chia mặt bằng thành 2 khu vực. |
Cầu thang được bố trí ở bên hông hoặc cuối nhà, Cầu thang đặt sát tường. |
|
Ưu điểm |
Bố cục quen thuộc của nhà phố. Phân chia rõ không gian |
Tạo không gian mở, tối ưu hóa không gian và tầm nhìn. |
|
Nhược điểm |
Cầu thang làm cản trở tầm nhìn. Không gian phòng khách và phòng bếp + ăn bị chia cách nên nhìn không quá sáng. |
Cần tính toán kết cấu dầm và cột kỹ càng. |
|
Phù hợp |
Dành cho gia đình có kinh phí hạn hẹp. |
Phù hợp với gia đình hiện đại. Ưu tiên sinh hoạt chung rộng. |

So sánh cách bố trí mặt bằng phổ thông và hiện đại
3. Phân tích cách sắp xếp công năng mặt bằng nhà phố 6x18m
Có thể nói số lượng thành viên trong gia đình quyết định quan trọng tới số tầng. Cụ thể:
3.1. Trường hợp thiết kế mặt bằng nhà phố 6x18m 2 tầng
- Mặt bằng tầng 1: Sân trước, Phòng khách, Cầu thang, Phòng bếp + ăn, sân sau.
- Mặt bằng tầng 2: Sảnh thang, phòng ngủ master, giếng trời, phòng ngủ 2, phòng ngủ 3 và WC.
Mặt bằng nhà phố 6x18m này được coi là phương án bố trí tiết kiệm, công năng vừa đủ. Tuy nhiên lúc này phòng thờ sẽ được bố trí ở ngoài sảnh vì vậy mà làm mất đi vẻ tôn nghiệm.
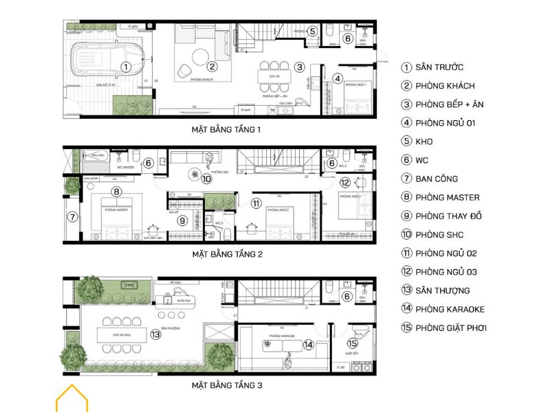
3.2. Trường hợp thiết kế mặt bằng nhà phố 6x18m 3 tầng
- Mặt bằng tầng 1: Sân trước, Phòng khách rộng, Cầu thang, WC chung, Phòng bếp + ăn, Sân sau.
- Mặt bằng tầng 2: Sảnh thang (Có thể tận dụng chỗ này làm SHC), Phòng ngủ master, phòng ngủ 2.
- Mặt bằng tầng 3: Sảnh thang, Phòng ngủ 3, Phòng ngủ 4, WC chung.
- Mặt bằng tầng tum: Phòng thờ, kho nhỏ, sân vườn, khu giặt sấu.
Thông thường khi khách hàng tìm tới công ty và yêu cầu thiết kế mặt bằng nhà phố 6x18m thì KTS thường gợi ý cách bố trí công năng này. Tất cả mọi công năng đều trở nên hoàn hảo

Các trường hợp thiết kế mặt bằng nhà phố 6x18m độc đáo
3.2. Trường hợp thiết kế mặt bằng nhà phố 6x18m 4 tầng
- Mặt bằng tầng 1: Gara ô tô, Phòng khách lui hẳn về sau, Cầu thang, Bếp + ăn, Sân sau.
- Mặt bằng tầng 2: Phòng khách lớn, WC chung, phòng giải trí hoặc cũng có thể bố trí 2 phòng ngủ ở đây.
- Mặt bằng tầng 3: Phòng ngủ master, phòng ngủ 2.
- Tầng 4: Phòng ngủ 3, phòng ngủ 4, Phòng thờ.
- Tầng tum: Khu giặt phơi
Đây là phương án dành cho các chủ đầu tư dư giả, có nhiều kinh phí thiết kế và thi công.
Tham khảo thêm một số mặt bằng:

Phương án mặt bằng nhà 3 tầng 6x18m hiện đại

Phương án mặt bằng nhà 1 tum 3 tầng 6x18m hiện đại
Khám phá thêm; Mẫu thiết kế nhà 6x19m

Phương án mặt bằng nhà có gara ô tô và sân vườn rộng

Mặt bằng nhà 2 tầng méo 6x18m

Mặt bằng nhà 3 tầng kiến trúc độc đáo

Mặt bằng nhà 3 tầng phong cách hiện đại

Mặt bằng nhà 2 tầng bố trí hài hòa với thiên nhiên
4. Dự toán chi phí thiết kế và thi công mặt bằng nhà phố 6x18m
Đây cũng là thông tin quan trọng không thể thiếu, giúp bạn chuẩn bị đầy đủ tài chính.
4.1 Báo giá thiết kế mặt bằng
Hiện nay Angcovat đang cung cấp dịch vụ thiết kế mặt bằng đẹp nhà phố 6x18m với mức giá siêu rẻ nhưng vẫn đảm bảo chất lượng:
|
120.000đ/m2 sàn |
|
120.000đ/m2 sàn |
|
150.000đ/m2 sàn |
Chú ý: Báo giá trên đây chỉ mang tính chất tham khảo. Để nhận được thông tin chính xác nhất, vui lòng liên hệ trực tiếp với Angcovat thông qua hotline: 0988.030.680.
4.2 Dự toán chi phí xây mặt bằng nhà phố 6x18m
Công thức tính chi phí xây mặt bằng nhà phố
Chi phí xây = Tổng diện tích x Đơn giá xây dựng.
Tổng diện tích xây:
- Móng: 50% diện tích (Nếu sử dụng móng băng)
- Tầng hầm (nếu có): 150% - 200% diện tích
- Mái: 50% (Mái bằng BTCT), 70% (Mái ngói).
- Diện tích các phòng: 100% diện tích sàn.
Hiện nay trên thị trường có đơn giá xây dựng như sau:
- Gói Xây thô & Nhân công hoàn thiện: 3.800.000 - 4.500.000 VNĐ/m²
- Gói Hoàn thiện (Chìa khóa trao tay):
- Vật tư trung bình: 5.000.000 - 7.000.000 VNĐ/m²
- Vật tư khá (tốt): 7.500.000 - 9.000.000 VNĐ/m².

Chi tiết báo giá thi công và thiết kế mặt bằng nhà 6x18m đẹp
Đừng bỏ qua: Bản vẽ thiết kế nhà ống 3 tầng 90m2 mặt tiền 4.5m mái bằng
Tham khỏa bảng giá vật liệu dưới đây:
|
I. Phần thô (chiếm khoảng 35–40%) ~ 1,8 – 2,0 tỷ |
|||
|
Hạng mục |
Mô tả chi tiết |
Vật liệu sử dụng |
Ghi chú |
|
Móng |
Móng băng/bè, đào móng, lót móng, cốt thép D18–D22, bê tông M250 |
Xi măng PCB40, thép Hòa Phát/Việt Nhật |
|
|
Khung bê tông |
Cột, dầm, sàn bê tông cốt thép, coppha phủ phim |
Thép D16–D25, bê tông M250–300 |
|
|
Tường xây |
Gạch đất nung Tuynel hoặc gạch không nung đặc |
Vữa XM + cát vàng |
Tường dày 220mm |
|
Chống thấm |
Toàn bộ sàn, mái, nhà vệ sinh |
Sika Latex, Kova CT11A |
|
|
Mái |
Đổ bê tông mái phẳng + dán ngói chồng mái giả cổ |
Ngói màu Nhật/Nordic |
|
|
II. Phần hoàn thiện (chiếm khoảng 50%) ~ 2,4 – 2,6 tỷ |
|||
|
Hạng mục |
Mô tả chi tiết |
Vật liệu sử dụng |
Ghi chú |
|
Trát, sơn |
Trát tường, sơn bả 3 lớp |
Bả Joton, sơn Dulux/Kova |
Sơn 2 màu chủ đạo |
|
Gạch lát – ốp |
Sàn: gạch Granite 80x80, WC: ốp full cao cấp |
Prime, Viglacera, Đồng Tâm |
|
|
Cửa |
Cửa chính: gỗ lim Nam PhiCửa sổ: nhôm XingfaCửa phòng: gỗ MDF chống ẩm |
||
|
Lan can – cầu thang |
Lan can sắt mỹ thuật sơn tĩnh điệnBậc cầu thang đá kim sa, tay vịn gỗ |
||
|
I. Phần thô (chiếm khoảng 35–40%) ~ 1,8 – 2,0 tỷ |
|||
|
Hạng mục |
Mô tả chi tiết |
Vật liệu sử dụng |
Ghi chú |
|
Móng |
Móng băng/bè, đào móng, lót móng, cốt thép D18–D22, bê tông M251 |
Xi măng PCB40, thép Hòa Phát/Việt Nhật |
|
|
Hệ chiếu sáng – trần |
Trần thạch cao giật cấp, đèn led âm trần |
||
|
Sơn giả đá – cột – mái vòm |
Sơn Kova hoặc Jotun hiệu ứng |
Tạo dáng cổ điển Châu Âu |
|
|
III. Nội thất cơ bản (10%) ~ 500 triệu |
|||
|
Hạng mục |
Vật liệu |
Ghi chú |
|
|
Phòng khách |
Sofa da thật, kệ TV gỗ óc chó, đèn chùm pha lê |
||
|
Phòng ngủ |
Giường, tủ quần áo, bàn phấn gỗ MDF phủ veneer |
||
|
Phòng bếp |
Tủ bếp chữ L + đảo bếp, mặt đá kim sa |
||
|
Nhà thờ |
Bàn thờ gỗ lim, ốp nan gỗ tường |
||
|
Rèm, đèn, thảm, decor |
Nhập khẩu Châu Âu |
||
|
IV. Hệ thống phụ trợ (10%) ~ 500 triệu |
|||
|
Hạng mục |
Mô tả |
Ghi chú |
|
|
Cổng – hàng rào |
Cổng sắt mỹ thuật, tường rào ốp đá |
||
|
Sân vườn |
Gạch giả đá, cây cảnh, đèn sân vườn |
||
|
Hệ thống nước |
Bồn inox 2000L, máy bơm, đường ống PPR |
||
|
Hệ thống điện nhẹ |
Camera, wifi, chuông cửa có hình |
Bảng dự toán chi phí thi công mặt bằng nhà phố 6x18m
|
Số tầng |
Tổng diện tích |
Mặt bằng hiện đại (Tính theo đơn giá hoàn thiện 7.5tr/2m) |
|
2 tầng |
200m2 |
1.875.000.000 VNĐ |
|
3 tầng |
350m2 |
2.640.000.000 VNĐ |
|
4 tầng |
430m2 |
3.427.000/000 VNĐ. |
5. Gợi ý một số mẫu mặt bằng nhà phố 6x18m nhà 2-4 tầng đẹp mê lòng người
Dưới đây là một số ngoại thất mẫu nhà phố 6x18m từ 2 tầng tới 4 tầng được nhiều gia chủ Việt yêu thích và săn đón.

Nhà phố 2 tầng 6x18m đẹp mê lòng người

Kiến trúc nhà phố 2 tầng hiện đại

Kiến trúc nhà phố 2 tầng có sân rộng

Nhà phố 2 tầng có khoảng sân tích hợp làm gara

Phong cách kiến trúc nhà 2 tầng hiện đại

Nhà phố 2 tầng 1 tum tân cổ điển

Phong cách sống hiện đại trong mẫu nhà 3 tầng
Xem ngay: Thiết kế nhà 6x10m 4 tầng

Nhà phố 3 tầng gam màu trắng sang trọng

Không gian sống nhà 3 tầng tinh tế

Kiến trúc nhà phố 3 tầng gam màu trầm

Nhà 2 tầng phong cách tân cổ màu trắng

Tạo hình nhà 3 tầng 6x18m độc đáo

Không gian sống đơn giản và chất lượng tại Hưng Yên

Nhà 3 tầng tân cổ điển sang trong và đẳng cấp

Nhà 3 tầng bề thế và chắc chắn

Nhà 2 tầng 1 tum tạo hình độc đáo lạ mắt

Phong cách tân cổ đối xứng trong mẫu nhà 3 tầng

Kiến trúc nhà phố 3 tầng hiện đại màu nổi bật

Nhà phố 4 tầng 6x18m xa hoa

Không gian sống nhà phố 4 tầng màu trầm

Nhà phố 4 tầng tân cổ tại Hải Phòng

Nhà 4 tầng có gara tầng 1 đẳng cấp
Kết luận
Trên đây là các thông tin mới nhất về mẫu mặt bằng nhà phố 6x18m. Mong rằng qua bài viết ngắn gọn của Angcovat, gia chủ sẽ có thêm cái nhìn tổng quan hơn về loại công trình này, từ đó có thêm ý tưởng cho không gian sống trong tương lai của mình.
Gửi yêu cầu tư vấn
Khách hàng vui lòng gọi điện vào hotline, Gửi yêu cầu tư vấn, Comment yêu cầu tư vấn dưới mỗi bài viết. Chúng tôi sẽ xử lý và trả lời yêu cầu tư vấn khách hàng trong 8h làm việc.
CÔNG TY CỔ PHẦN KIẾN TRÚC VÀ ĐẦU TƯ XÂY DỰNG ANG
Trụ sở: 211 - Khương Trung - Thanh Xuân - Hà Nội
Văn phòng: Số 137 Nguyễn Xiển - Thanh Xuân - Hà Nội.
Chi nhánh HCM: KDC Thới An, phường Thới An ,quận 12, TPHCM.
Chi nhánh Đà Nẵng: 268-270 đường 30/4, Quận Hải Châu, TP Đà Nẵng.
Hotline: 0988030680 - Tel: 02466622256 - Email: angcovat.vn@gmail.com

Bình luận