12+ mẫu bản vẽ nhà cấp 4 3 phòng ngủ 9x15m tiện nghi và sang trọng
Xây nhà là một cột mốc quan trọng trong cuộc đời của mỗi con người. Với các gia đình sở hữu quỹ đất rộng ở vùng nông thôn thì việc lựa chọn nhà cấp 4 vẫn là phương án được hướng tới đầu tiên. Trong đó bản vẽ nhà cấp 4 3 phòng ngủ 9x15m tối ưu công năng, tiết kiệm chi phí và đảm bảo tính thẩm mỹ đang là xu hướng được rất nhiều chủ đầu tư quan tâm. Bài viết sau đây Angcovat sẽ chia sẻ cho bạn cái nhìn toàn diện về việc phân tích công năng, so sánh các phương án bố trí để bạn có thêm ý tưởng cho không gian sống trong tương lai của mình.
1. Ưu điểm khi thiết kế bản vẽ nhà cấp 4 3 phòng ngủ 9x15m
Với diện tích khoảng 140m2 thì đây được cho là quỹ đất vàng để thiết kế nhà cấp 4 tại Việt Nam. Việc bố trí toàn bộ không gian sinh hoạt ở trên cùng một mặt sàn không chỉ mang tới sự gắn kết gia đình mà còn có nhiều ưu điểm:
- Tối ưu không gian sinh hoạt chung: Với mặt tiền 9m và chiều sâu khoảng 15m thì KTS dễ dàng chia không gian thành 2 phần tùy theo phong cách. Từ đó cả gia đình có thể hoạt động trên cùng một tầng mà không bị ngăn cách.
- Tiện ích và an toàn: Thiết kế không có cầu thang sẽ phù hợp với các gia đình có người già và trẻ nhỏ. Bên cạnh đó tất cả đều diễn ra trên cùng một sàn sẽ giảm thiểu rủi ro và tiện cho việc sinh hoạt.
- Chi phí xây dựng phù hợp: So với việc xây dựng nhà ống 2, 3 tầng có cùng diện tích thì bản vẽ nhà cấp 4 3 phòng ngủ 9x15m giúp chủ đầu tư tiết kiệm đáng kể chi phí của việc ép cọc móng, đổ sàn bê tông, chi phí cầu thang,..
- Dễ dàng kết hợp với sân vườn: Nhà cấp 4 9x15m thường sẽ đi kèm với hệ thống sân vườn, tiểu cảnh. Ngôi nhà cũng có thể có thêm nhiều ô cửa sổ để đón sáng và gió trời.
Ưu điểm của mẫu thiết kế nhà cấp 4 3 ngủ 9x15m
Xem thêm: Mẫu nhà vườn mái bằng 1 tầng 3 phòng ngủ
2. Báo giá thiết kế bản vẽ nhà cấp 4 3 phòng ngủ 9x15m rẻ và uy tín
Hiện nay Angcovat đang nhận thiết kế nhà đẹp và thi công bản vẽ nhà cấp 4 3 phòng ngủ 9x15m có mức giá tốt nhất trên thị trường:
|
20.000.000đ/ Bộ hồ sơ thiết kế chi tiết |
Đặc biệt, chúng tôi có những ưu đãi khi bạn lựa chọn kiến trúc Angcovat trở thành đơn vị thiết kế nhà ở như sau.
- Công trình có diện tích > 500m2, Giảm 10% so với báo giá thiết kế nhà ở.
- Giá trị hợp đồng tối thiểu 1 công trình : 16.000.000đ
- Thiết kế > 1 công trình , Giảm 10% so với báo giá thiết kế nhà ở.
Miễn phí 100% giá thiết kế nhà ở cho các phần sau.
- Quy hoạch về mặt định hướng cảnh quan sân vườn
- Hồ sơ thiết kế cổng, hàng rào.
3. Gợi ý cách bố trí công năng trong bản vẽ nhà cấp 4 3 phòng ngủ 9x15m
Để công trình thoải mái cho gia đình từ 4-5 người thì mặt bằng 3 ngủ cần có sự tính toán cẩn thận:
Cách bố trí công năng khoa học cho mẫu nhà cấp 4 3 ngủ
3.1. Khu vực chung
Khu vực chung thường sẽ gồm phòng khác, bếp và phòng ăn. Trong đó:
- Phòng khách: Thường chiếm diện tích khoảng 25-30m2 được đặt ngay sau sảnh chính, tiếp cận nhiều nguồn sáng tự nhiên nhất. Với mặt tiền 9m thì phòng khách cũng có thể bố trí theo phong cách mở cùng phòng thờ hoặc các sảnh phụ.
- Phòng bếp và phòng ăn: Có diện tích từ 20-25m2 thường nằm ở phần sau công trình hoặc chạy dọc bên hông. Nếu làm bếp kiểu chữ U hoặc chữ L kết hợp đảo bếp sẽ tối ưu được không gian.
3.2. Khu vực riêng trong bản vẽ nhà cấp 4 3 phòng ngủ 9x15m
Một khu vực riêng tư cũng cần đâm bảo:
- Phòng ngủ master: Dành cho vợ chồng gia chủ, phòng được đặt ở vị trí đẹp và thoáng nhất. Đảm bảo riêng tư tuyệt đối.
- 2 phòng ngủ nhỏ: Tù 10-15m2 dành cho các vị khách ghé thăm. 2 phòng ngủ này sẽ dùng chung 1 WC ở giữa.
3.3. Khu vực thờ và sân chơi
Trong bản vẽ nhà cấp 4 3 phòng ngủ 9x15m phòng thờ sẽ chiếm khoảng 10-15m2 đặt ở phía trước cùng với cửa chính. Ngoài ra khu vực sân chơi sẽ được bố trí ở phần sau nhà, nơi đây gia chủ có thể tổ chức các bữa tiệc nướng BBQ ngoài trời.
Có thể bạn quan tâm: Nhà vườn 130m2
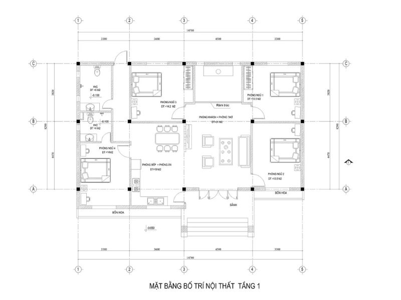
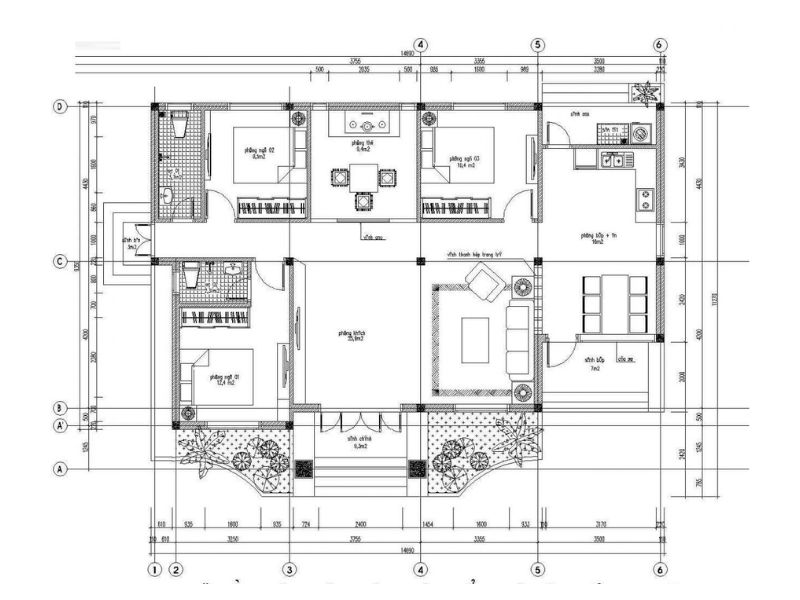
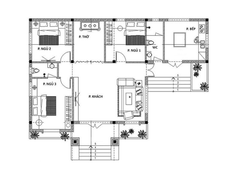
3.4 Tham khảo một số bản vẽ công năng nhà 1 tầng 9x15m 3 ngủ
Dưới dây là một số hình ảnh bản vẽ công năng dành cho nhà 1 tầng 9x15m với công năng 3 ngủ:
Bản vẽ 1: Bố trí công năng cho mẫu nhà cấp 4 1 tầng 9x15m 3 ngủ
Bản vẽ 2: Bố trí công năng cho mẫu nhà cấp 4 1 tầng 9x15m 3 ngủ
Bản vẽ 3: Bố trí công năng cho mẫu nhà cấp 4 1 tầng 9x15m 3 ngủ
Bản vẽ 4: Bố trí công năng cho mẫu nhà cấp 4 1 tầng 9x15m 3 ngủ
Bản vẽ 5: Bố trí công năng cho mẫu nhà cấp 4 1 tầng 9x15m 3 ngủ
Khám phá thêm: Nhà mái nhật 1 tầng 3 phòng ngủ 100m2
4. Tham khảo 3 loại kiến trúc bản vẽ nhà cấp 4 3 phòng ngủ 9x15m hot nhất 2026
Với tỷ lệ 9x15m, bạn có rất nhiều sự lựa chọn về phong cách kiến trúc:
Mẫu nhà 1 tầng mái Nhật mặt tiền 9m
Kiến trúc nhà mái Nhật 9x15m 3 ngủ đẹp
Nhà mái thái mặt tiền 9m màu xanh
Không gian sống thư thái trong căn nhà 1 tầng
Biệt thự vườn 1 tầng 9x15m mái Nhật
Không gian sống 9x15m mái thái đẹp mắt
Kiến trúc nhà vườn 9x15m đẳng cấp
Nhà 1 tầng mái bằng hiện đại gam màu trắng
Kiến trúc nhà có bể bơi đẹp và độc đáo
Nhà 1 tầng 9x15m 3 ngủ tiện ích
Nhà có sân vườn bao quanh với công năng 3 ngủ
Biệt thự 1 tầng 3 ngủ 9x15m có bể bơi
Nhà 1 tầng hiện đại tạo hình độc đáo
Kiến trúc nhà 1 tầng 9x15m tân cổ điển
Nhà 1 tầng trần cao 9x15m 3 phòng ngủ
Nhà vườn 1 tầng mái Nhật sang trọng tại Ninh Bình
Biệt thự 1 tầng tân cổ điển có bể bơi 9x15m
Nhà vườn 1 tầng có khoảng sân rộng
Nhà vườn 1 tầng 9x15m mang vẻ đẹp tinh tế
Nhà 1 tầng 9x15m hiện đại mái bằng
5. Báo giá thi công bản vẽ nhà cấp 4 3 phòng ngủ 9x15m
Có thể nói năm 2026 giá vật liệu và nhân công cũng đang có nhiều biến động. Để thi công dựa trên bản vẽ nhà cấp 4 3 phòng ngủ 9x15m, bạn có thể tham khảo bảng dự toán sơ bộ sau:
- Diện tích tính phần móng: 135m2 x 30% = 40.5m2
- Diện tích sàn trệt: 135m2 x 100% = 135m2
- Diện tích mái: 135m2 x 70% = 94.5m2 (Ví dụ dùng mái ngói kèo sắt tính 70%)
- Tổng diện tích xây dựng quy đổi: 270m2.
Hiện nay trên thị trường có 2 gói xây dựng:
- Gói nhân công hoàn thiện: Từ 2 tới 4 triệu VNĐ/m2 => Tổng chi phí khoảng 1 tỷ VNĐ.
- Gói xây nhà trọn gói: Khoảng 5 – 7 triệu VNĐ/m2 => Tổng chi phí khoảng 1.7 tỷ VNĐ.
6. Mua bản vẽ nhà cấp 4 3 phòng ngủ 9x15m trên mạng có an toàn?
Chủ đầu tư có thể tham khảo ý tưởng tuy nhiên không nên mua lại hoàn toàn bản vẽ đã thi công từ người khác. Mỗi quỹ đất sẽ có các tác động khác nhau, địa chất khác nhau và nhu cầu sử dụng công năng của mỗi người là khác nhau. Tốt nhất hãy thuê một đơn vị thiết kế lại để phù hợp với tiêu chí của bản thân.
Angcovat là đơn vị thiết kế bản vẽ nhà cấp 4 3 phòng ngủ 9x15m có tiếng tại Hà Nội. Không chỉ có mức giá hợp lý mà còn luôn đảm bảo chất lượng cho mỗi khách hàng. Nếu bạn đang tìm kiếm cho mình một đơn vị để gửi gắm niềm tin và tiền bạc thì đây sẽ là cái tên vô cùng phù hợp.
7. Kết luận
Trên đây là các thông tin mới nhất về bản vẽ nhà cấp 4 3 phòng ngủ 9x15m mà Angcovat muốn gửi tới bạn. Mong rằng qua bài viết này bạn sẽ có được cái nhìn tổng quan và chính xác nhất về không gian sống lý tưởng này. Liên hệ ngay với chúng tôi thông qua hotline 0988.030.680 để được tư vấn tận tâm và miễn phí.
Gửi yêu cầu tư vấn
Khách hàng vui lòng gọi điện vào hotline, Gửi yêu cầu tư vấn, Comment yêu cầu tư vấn dưới mỗi bài viết. Chúng tôi sẽ xử lý và trả lời yêu cầu tư vấn khách hàng trong 8h làm việc.
CÔNG TY CỔ PHẦN KIẾN TRÚC VÀ ĐẦU TƯ XÂY DỰNG ANG
Trụ sở: 211 - Khương Trung - Thanh Xuân - Hà Nội
Văn phòng: Số 137 Nguyễn Xiển - Thanh Xuân - Hà Nội.
Chi nhánh HCM: KDC Thới An, phường Thới An ,quận 12, TPHCM.
Chi nhánh Đà Nẵng: 268-270 đường 30/4, Quận Hải Châu, TP Đà Nẵng.
Hotline: 0988030680 - Tel: 02466622256 - Email: angcovat.vn@gmail.com

Bình luận