Trọn bộ bản vẽ điện nước nhà cấp 4 chi tiết nhất
Bản vẽ điện nước nhà cấp 4 là một phần hồ sơ rất quan trọng khi tiến hành thiết kế các công trình nhà cấp 4, ảnh hưởng đến quá trình hoạt động an toàn, hiệu quả và không gian sống thoải mái, tiện nghi của cả gia đình. Bài viết sau đây chúng tôi sẽ cung cấp đến các bạn trọn bộ hồ sơ thiết kế bản vẽ thi công phần điện và phần nước mẫu nhà cấp 4 của gia đình cô Sin ở Hưng Yên.
Trọn bộ bản vẽ điện nước nhà cấp 4 chi tiết
Tầm quan trọng của bản vẽ điện nước nhà cấp 4
Bản vẽ điện nước nhà cấp 4 là một phần không thể thiếu trong bộ hồ sơ thiết kế. Hồ sơ bản vẽ sẽ được phân tách rõ ràng thành 2 hạng mục: bản vẽ phần điện và bản vẽ phần nước. Trên hồ sơ thiết kế phần điện sẽ thể hiện rõ ràng vị trí từng thiết bị điện, sơ đồ nguyên lý hệ thống điện, các thông số kỹ thuật, ký hiệu và ghi chú vật tư thiết bị. Đối với hồ sơ cấp thoát nước sẽ thể hiện mặt bằng cấp thoát nước của các khu vực, bản vẽ cấu tạo chi tiết và thống kê số lượng vật tư thiết bị. Đây chính là cơ sở để đơn vị thi công lắp đặt một cách chính xác và đồng bộ nhất, đảm bảo quá trình sinh hoạt hàng ngày của gia chủ được thoải mái và tiện nghi. Một bản vẽ điện nước cấp 4 mang đến nhiều ưu điểm nổi bật như:
- Đảm bảo sự đồng bộ và an toàn cho quá trình sử dụng: các kỹ sư đã tính toán kỹ lưỡng dựa trên nguyên tắc và mặt bằng công năng của công trình để thiết kế hệ thống điện một cách hợp lý đảm bảo an toàn trong sinh hoạt hàng ngày, tránh tình trạng bị cháy nổ.
- Tiết kiệm chi phí thi công: trên bản vẽ đã thể hiện chi tiết từ vị trí lắp đặt, cách thức đi dây, số lượng vật tư thiết bị vậy nên các nhân công có thể dễ dàng lắp đặt một cách chuẩn chỉnh, giúp rút ngắn thời gian thi công, tiết kiệm chi phí cho gia chủ.
- Tối ưu hóa không gian tiện nghi: Nhờ có việc sắp xếp và lắp đặt chuẩn chỉnh, sẽ tạo điều kiện thuận lợi cho quá trình sinh hoạt hàng ngày của gia đình, mang đến không gian sống tiện nghi, thoải mái.
- Thuận tiện cho quá trình bảo trì và sửa chữa: Nếu trong quá trình sử dụng gặp vấn đề nước bị rò hoặc chập cháy ở các cấu tạo mạch nào, nhờ vào bản vẽ hệ thống điện nước mà thợ sửa có thể xác định được các vị trí, từ đó dễ dàng sửa chữa và bảo trì.
Sơ đồ điện nhà cấp 4 3 phòng ngủ bao gồm những gì?
Thông thường bản vẽ điện nhà cấp 4 đơn giản sẽ bao gồm các hạng mục:
- Mặt bằng cấp điện động lực
- Sơ đồ nguyên lý cấp điện của toàn công trình: thể hiện hệ thống đường đi của toàn bộ dây điện trong công trình, phù hợp với công dụng mà ko bị rối mắt.
- Bảng tổng hợp thiết bị vật tư toàn công trình: cung cấp đầy đủ số lượng, công suất, loại vật tư.
- Mặt bằng cáp thông tin liên lạc: thống kế số lượng truyền hình, internet, điện thoại, vị trí lắp đặt và cách thức đi dây.
- Mặt bằng camera điều khiển, báo cháy, báo động,...: các đầu nối từ nguồn điện đến các thiết bị được thể hiện chi tiết, vị trí lắp đặt được bố trí ở những nơi quan trọng như phòng khách, bếp ăn, sảnh hiên để đảm bảo an toàn và an ninh.
- Mặt bằng cấp điện chiếu sáng: thể hiện sơ đồ đi dây điện trong nhà cấp 4, vị trí lắp đặt các bóng đèn và công tắc cho từng đèn, đảm bảo đủ ánh sáng cho các không gian nội thất.
- Mặt bằng chống sét mái và chi tiết lắp đặt: thể hiện hệ thống dây truyền dẫn thép, hệ thống cọc tiếp địa, vị trí kim thu sét,...việc lắp đặt chống sét mái giúp không gian sống được an toàn và yên tâm hơn rất nhiều đặc biệt là vào những ngày mưa to, sấm sét.
- Mặt bằng và chi tiết lắp đặt điều hòa: điều hòa là thiết bị rất quan trọng và cần thiết vào những mùa nắng nóng, mang lại không gian mát mẻ, dễ chịu cho gia đình. Vậy nên mặt bằng lắp đặt điều hòa của nhà cấp 4 cần phải chi tiết, thể hiện từng mặt cắt của thiết bị cụ thể qua hình ảnh, ghi chú và thông số kỹ thuật, vị trí đặt điều hòa và sơ đồ đi dây điện.
Sơ đồ điện nhà cấp 4 3 phòng ngủ được tính toán kỹ lưỡng và tỉ mỉ, đảm bảo các thiết bị điện được lắp đặt theo đúng kỹ thuật, vị trí để không chỉ đảm bảo thẩm mỹ về mặt hình thức mà còn đáp ứng quá trình sinh hoạt tiện nghi hàng ngày của gia đình.
Bản vẽ điện nhà cấp 4 đơn giản
Sau khi đã có mặt bằng công năng của nhà cấp 4, kỹ sư sẽ bắt đầu thiết kế bản vẽ hệ thống điện của toàn bộ công trình. Ngay sau đây là trọn bộ hồ sơ thiết kế và thi công phần điện công trình nhà cấp 4 của cô Sin ở Hưng Yên với công năng 3 phòng ngủ, 1 phòng thờ, 1 phòng khách, 1 bếp ăn, khu vệ sinh chung. Cụ thể bản vẽ như sau:

Bản vẽ điện nước nhà cấp 4 chi tiết - Phần điện

Thuyết minh kỹ thuật bản vẽ phần điện của nhà cấp 4

Mặt bằng cấp điện tổng của bản vẽ điện nước nhà cấp 4
Cáp điện từ công tơ và dây cáp truyền hình internet được dẫn vào tủ cổng ở góc phải của ngôi nhà, camera dự kiến lắp đặt ở các vị trí sảnh hiên, phòng khách và sảnh phụ bếp, đây đều là những khu vực chính yếu, đi lại nhiều vậy nên gia chủ có thể bao quát được an ninh của toàn gia đình.

Sơ đồ mặt bằng chiếu sáng tầng 1 trong bản vẽ điện nước nhà cấp 4
Khu vực tầng 1, các bóng đèn chùm được bố trí ở không gian sảnh chính, phòng khách, bếp ăn và 3 phòng ngủ đem đến ánh ánh toàn diện cho các không gian lớn, ngoài ra xung quanh khuôn viên nhà còn được thiết kế bóng đèn ốp tường tại 2 trụ cột của sảnh chính, sảnh phụ và cửa sổ mặt tiền vừa có tác dụng thẩm mỹ lại đảm bảo ánh sáng vào buổi tối. Lưu ý, đèn hắt ốp tường trang trí và đèn hắt tranh lắp độ cao 2,3m so với sàn, đèn gương lắp cách sàn 1,8m.

Mặt bằng ổ cắm tầng 1 trong sơ đồ điện nước nhà cấp 4
Các ổ cắm bố trí đều ở nhiều vị trí trong không gian khắp các phòng chức năng đảm bảo mọi chỗ đều thuận tiện cho quá trình sinh hoạt như: ổ cắm ti vi, ổ sạc điện thoải, ổ cắm đèn ngủ, ổ cắm các thiết bị bếp, bình nóng lạnh,...ổ cắm trong các phòng đặt cách sàn 1,2m (một số các ổ cắm được đặt ở độ cao cụ thể như trong bản vẽ).

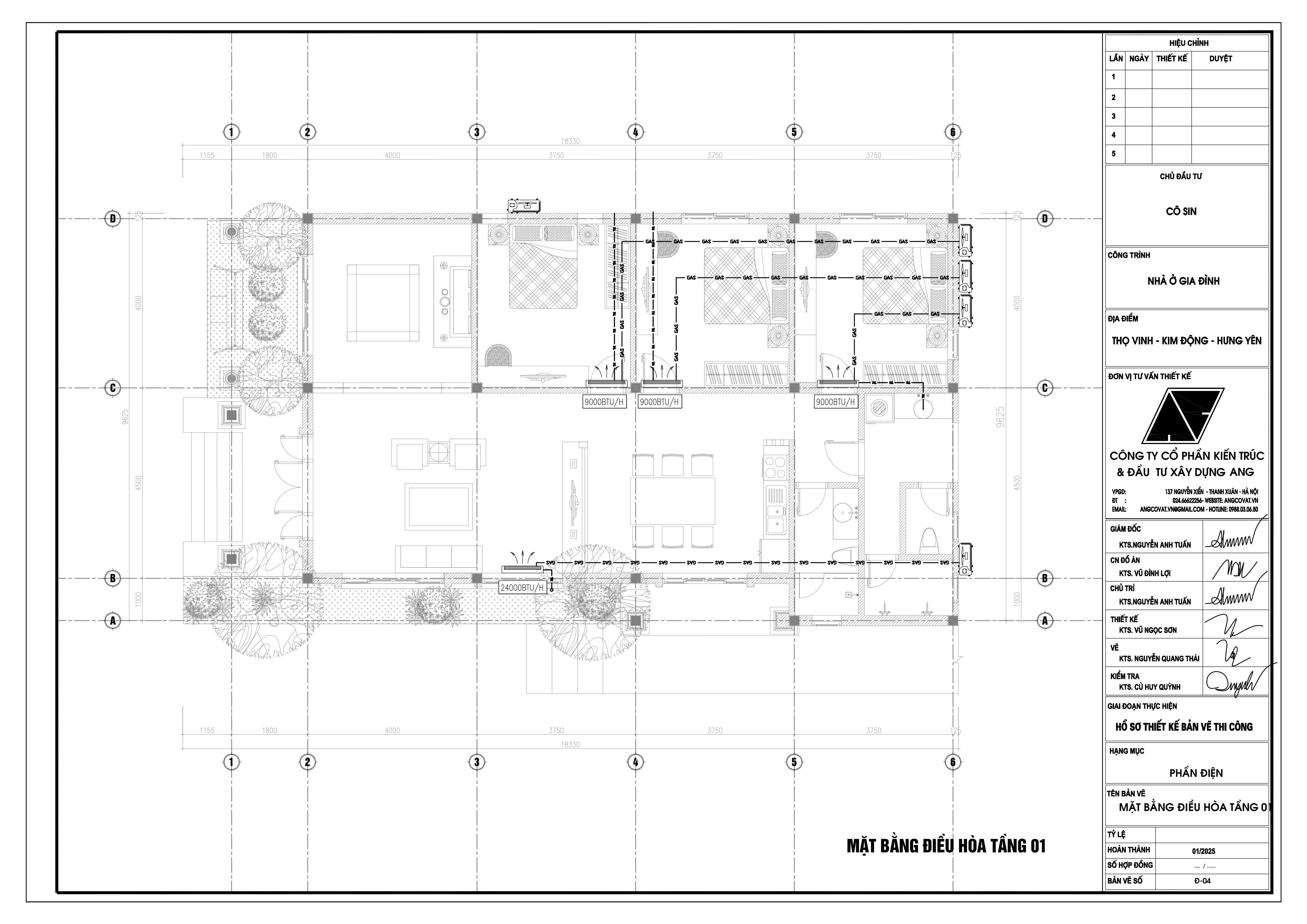
Mặt bằng điều hòa tầng 1 của nhà cấp 4
Vị trí điều hòa được đặt ở 3 phòng ngủ và ở giữa phòng khách và phòng bếp đảm bảo nơi ngủ và sinh hoạt chính của gia chủ luôn mát mẻ, dây cấp đến điều hòa dùng dây CP\PVC (1x2,5) MM2, dây chờ cho cục lạnh điều hòa đặt ở độ cao cách mặt trần là 0,4m, cục nóng điều hòa lắp cách tường >0,2m.

Mặt bằng tiếp địa tầng 1 trong sơ đồ điện nhà cấp 4 3 phòng ngủ
Dây tiếp địa với kích thước 30x2 ở vị trí bên ngoài phía phải của công trình, cạnh phòng khách.

Mặt bằng chống sét mái bản vẽ điện nhà cấp 4 đơn giản
Hệ thống chống sét bao gồm 4 kim thu lôi làm từ kim loại được liên kết với nhau gắn trên mái nhà. Chiều dài của kim thu lôi là 0,7m và tiết diện là 16m, khoảng cách giữa 2 kẹp định vị cáp thoát sét là 1,5m, tại độ cao 1,5m so với cốt -0,750 phải đặt hộp kiểm tra tiếp địa, khoảng cách an toàn giữa bộ phận nối đất với cáp điện, ống nước hoàn toàn tuân thủ theo quy định trong tiêu chuẩn chống sét hiện hành.

Chi tiết lắp đặt điều hòa của bản vẽ điện nước nhà cấp 4
Bản vẽ thể hiện chi tiết các mặt cắt của điều hòa gồm: chi tiết cách nhiệt ống gas, chi tiết cách nhiệt ống nước ngưng, chi tiết neo đỡ ống gas đi trên tường, trần, chi tiết giá đỡ outdoor unit theo tường và quy trình hàn ống đồng, lắp đặt treo tường hồi.

Chi tiết cọc tiết địa của bản vẽ phần điện nhà cấp 4
Thể hiện chi tiết cọc tiếp địa và cách đi dây dẫn từ cọc tiếp địa xuống mặt đất (bộ phận thoát sét). Lưu ý chống sét với điện trở nối R<10, sau khi thi công đo lại nếu điện trở nối đất >10 thì phải báo thiết kế.

Hồ sơ máy phát điện trong bản vẽ điện nước nhà cấp 4 đơn giản
Nguồn điện được lấy từ công tơ hoặc máy phát điện qua cầu dao đảo chiều phân bố đến các hệ thống điện trong nhà cấp 4, tủ điện phòng đặc cách sàn 1,4m.

Sơ đồ hệ thống thông tin chi tiết bản vẽ điện nước nhà cấp 4 3 phòng ngủ
Thống kê cụ thể khối lượng tivi, điện thoại, internet, đối với cáp điện thoại, anten phải luồn trong ống nhựa đi ngắm trần, tường cách đường dây điện 300mm.

Chi tiết lắp đặt hệ thống điện của nhà cấp 4
Thể hiện cụ thể các chi tiết lắp đặt bao gồm: chi tiết lắp đặt tủ điện tổng, chi tiết lắp đặt tủ điện tầng, chi tiết lắp đặt hộp đấu nối tivi, điện thoại, chi tiết lắp đặt đèn, chi tiết phòng vệ sinh, chi tiết lắp đặt ổ cắm, công tắc, sơ đồ đấu điện máy bơm.

Bản vẽ điện nước nhà cấp 4 giúp ích cho việc lắp đặt được dễ dàng hơn

Thống kê khối lượng điện trong bản vẽ điện nhà cấp 4
Các yếu tố bao gồm trong sơ đồ cấp thoát nước của nhà cấp 4
Sơ đồ cấp thoát nước là một phần rất quan trọng trong thiết kế và thi công. Sở hữu bản vẽ cấp thoát nước nhà cấp 4 chi tiết sẽ đảm bảo quá trình cung cấp nước sạch sinh hoạt cho cả gia đình và xử lý nước thải một cách hiệu quả góp phần mang đến không gian sống sạch sẽ, thuận lợi cho việc bảo dưỡng và sửa chữa sau này. Để đảm bảo hệ thống nước được hoạt động bền vững và ổn định, một bộ hồ sơ thiết kế phần nước sẽ cần cung cấp đủ các yếu tố sau:
- Mặt bằng cấp nước tầng 1 của nhà cấp 4: bản vẽ thể hiện đường ống dẫn nước từ khu vực bể nước tới các điểm sử dụng như vòi nước ở bếp ăn, nước nhà tắm, nhà vệ sinh, ống nước khu vực sân vườn để tưới tiêu,...
- Mặt bằng thoát nước nhà cấp 4: gồm các đường ống từ vị trí nước sử dụng của nhà bếp, nhà tắm, nhà vệ sinh dẫn tới khu vực thoát nước chung.
- Bản vẽ chi tiết cấp thoát nước các khu vực vệ sinh, nhà tắm,...: thể hiện cụ thể vị trí, cách thức lắp đặt đường ống cấp và thoát nước của các khu vực. Các đường ống được kết nối khoa học đảm bảo sự tiện nghi trong quá trình sử dụng.
- Chi tiết lắp đặt các thiết bị: để đơn vị thi công có thể dễ dàng hình dung và lắp đặt, bản vẽ đã thể hiện rõ ràng hình ảnh, thông số, ghi chú của các thiết bị liên quan đến cấp thoát nước.
- Bảng thống kê phụ kiện nước: tổng hợp số lượng các thiết bị nước cần thiết cho bản vẽ nước nhà cấp 4 đơn giản, từ đó gia chủ hoặc nhân công có thể dễ dàng nắm bắt thông tin và chuẩn bị đầy đủ, kỹ càng, tránh ảnh hưởng đến tiến độ của quá trình lắp đặt.
Hồ sơ bản vẽ nước nhà cấp 4
Bản vẽ nước nhà cấp 4 3 phòng ngủ là một phần hồ sơ rất quan trọng trong thiết kế giúp cho việc lắp đặt hệ thống nước của gia đình được chuẩn chỉnh và dễ dàng hơn rất nhiều. Sau đây là trọn bộ hồ sơ thiết kế và thi công phần nước của mẫu nhà cấp 4 đơn giản:

Bản vẽ điện nước nhà cấp 4 - Phần nước

Hệ thống cấp thoát nước của nhà cấp 4

Mặt bằng cấp nước tầng 1 trong bản vẽ điện nước nhà cấp 4
Nước từ mạng lưới ngoài của đồng hồ được đưa vào bồn chứa nước ngầm 1.0m3, sau đó nước được bơm lên bồn nước áp mái có dung tích 2.0m3. Từ bồn nước mái, nước được qua bình lọc sau đó qua bình dự trữ để cấp cho các thiết bị vệ sinh bằng ổng PVC.

Mặt bằng cấp nước áp mái trong bản vẽ điện nước nhà cấp 4 đơn giản
Có 2 đường ống dẫn lên téc 1 đường ống để cấp nước và 1 đường ống để thoát nước xuống, có ống thông hơi và van khóa để điều chỉnh.

Mặt bằng thoát nước tầng 1 trong bản vẽ điện nước nhà cấp 4 3 phòng ngủ
Nước thải từ các thiết bị vệ sinh thoát vào ống nhánh D90, rồi thoát vào ống đứng D90, sau đó xuống ống ngang D114, D90 tới các hố ga rồi ra hệ thống thoát nước khu vực.

Sơ đồ cấp thoát nước khu vực WC của bản vẽ điện nước nhà cấp 4
Sử dụng ống D110 (D114) thoát nước cho bồn cầu, ống thoát này sẽ được nối với ống đứng thoát phân D110 (D114) rồi được dẫn tới hầm tự hoại, nước sau khi được xử lý ở hầm tự hoại sẽ ra hố ga rồi ra hệ thống thoát chung.
Các ống thoát nước đều đi âm tường, âm sàn.

Sơ đồ cấp nước đứng chi tiết của bản vẽ nhà cấp 4
Tất cả các ống nước lạnh sử dụng ống PVC cấp nước lạnh và ống PPR cấp nước nóng.

Sơ đồ thoát nước đứng trong sơ đồ điện nước nhà cấp 4 đơn giản
Tất các nước thải sinh hoạt sẽ được thoát vào hố ga sau đó được thoát ra hệ thống nước thải chung. Nước thải từ âu tiểu, bệ xí được dẫn vào bể phốt để xử lý sơ bộ trước khi thoát ra cống thoát nước thải ngoài nhà.

Chi tiết lắp đặt ghi chú bản vẽ phần nước nhà cấp 4
Chi tiết lắp đặt bao gồm: chi tiết lắp đặt âu tiểu nam, chi tiết lắp đặt xí bệt, chi tiết lắp đặt lavabo, chi tiết lắp đặt sen tắm, chi tiết lắp đặt ống qua tường, chi tiết đặt cầu chắn rác, chi tiết đỡ ống. Lưu ý khi lắp đặt, đường ống thoát nước đi trên trần giả hoặc dưới sàn âm trong nhà vệ sinh, trong quá trình thi công phải kết hợp với bản vẽ kiến trúc, kết cấu và điều chỉnh cụ thể theo thực tế.

Bảng thống kê phụ kiện nước nhà cấp 4
Trong quá trình thi công phải đảm bảo yêu cầu kỹ thuật, phải thử áp lực đường ống cấp nước, hệ thống cấp thoát nước không bị rò rỉ mới đưa vào sử dụng. Ống cấp đi trong hộp kỹ thuật và đi chìm trong tường, ống thoát nước đi trong hộp kỹ thuật và dưới sàn kỹ thuật.
Những điểm cần lưu ý khi thiết kế bản vẽ điện nước nhà cấp 4
Để quá trình sử dụng được đảm bảo an toàn cũng như tránh những trường hợp rủi ro, khi thiết kế bản vẽ điện nước nhà cấp 4 bạn cần lưu ý những điều quan trọng sau:
- Phân tích công năng cửa từng khu vực: trước khi bắt tay vào thiết kế, bạn cần phân tích mặt bằng công năng các khu vực, các vị trí dự định lắp đặt sao cho phù hợp và khoa học về nguyên lý sử dụng và tiêu chuẩn an toàn.
- Sử dụng các thiết bị có độ bền cao, uy tín để quá trình sử dụng được lâu dài và ổn định, đảm bảo chất lượng để tránh các trường hợp rủi ro, cháy nổ.
- Tính toán đúng công suất và số lượng sử dụng: khi lựa chọn các thiết bị điện bạn cần lưu ý đúng công suất sử dụng để không gây tình trạng quá tải hoặc thiếu điện. Chắc chắn là số lượng hệ thống ổ cắm, bóng đèn từ nội thất cho đến ngoại thất đều đủ để đáp ứng nhu cầu sử dụng cho cả gia đình, sơ đồ đi dây điện trong nhà cấp 4 cũng cần phải đảm bảo sự an toàn về cháy nổ.
- Tuân thủ các quy chuẩn pháp lý: điều này rất quan trọng khi thiết kế bản vẽ điện nước nhà cấp 4, việc tuân thủ theo các quy định pháp lý không chỉ đảm bảo an toàn, tránh cháy nổ mà còn hạn chế được các trường hợp liên quan đến pháp lý khi thi công và sử dụng.
Hy vọng với thông tin về trọn bộ bản vẽ điện nước nhà cấp 4 chi tiết trên sẽ giúp các gia chủ có một kế hoạch thiết kế điện nước hoàn hảo và chính xác. Nếu cần thêm bất kỳ thông tin gì hãy liên hệ tới chúng tôi qua Hotline: 0988.030.680 hoặc Website: Angcovat.vn.
Gửi yêu cầu tư vấn
Khách hàng vui lòng gọi điện vào hotline, Gửi yêu cầu tư vấn, Comment yêu cầu tư vấn dưới mỗi bài viết. Chúng tôi sẽ xử lý và trả lời yêu cầu tư vấn khách hàng trong 8h làm việc.
CÔNG TY CỔ PHẦN KIẾN TRÚC VÀ ĐẦU TƯ XÂY DỰNG ANG
Trụ sở: 211 - Khương Trung - Thanh Xuân - Hà Nội
Văn phòng: Số 137 Nguyễn Xiển - Thanh Xuân - Hà Nội.
Chi nhánh HCM: KDC Thới An, phường Thới An ,quận 12, TPHCM.
Chi nhánh Đà Nẵng: 268-270 đường 30/4, Quận Hải Châu, TP Đà Nẵng.
Hotline: 0988030680 - Tel: 02466622256 - Email: angcovat.vn@gmail.com


Bình luận