FULL bản vẽ móng ép cọc 4 tầng chi tiết nhất
Khi xây dựng nhà cửa, móng nhà chính là yếu tố quan trọng tạo nền tảng vững chãi và chất lượng bền vững theo thời gian của công trình. Vậy nên bản vẽ móng ép cọc 4 tầng mà chúng tôi sẽ chia sẻ ngay sau đây phần nào sẽ giúp gia chủ giải quyết những thắc mắc về việc xây dựng móng nhà sao cho chắc chắn, kiên cố và đúng tiêu chí kỹ thuật. Hãy cùng theo dõi nhé!

Bản vẽ móng ép cọc 4 tầng chi tiết
Hiểu thế nào là móng cọc?
Móng cọc là loại móng sử dụng các trụ cột bê tông để đẩy xuống nền đất nhằm tạo sự liên kết làm nền đất trở nên cứng cáp hơn, giúp nâng đỡ toàn bộ công trình, tránh tình trạng bị sụt lún.
Trong xây dựng, tùy thuộc vào địa chất và yêu cầu kỹ thuật của công trình để căn cứ lựa chọn loại móng sao cho phù hợp (móng băng hoặc móng cọc). Trong khi móng băng thường được áp dụng cho các công trình có nền đất cứng, tốt thì móng cọc sẽ phù hợp với những công trình được xây dựng trên nền đất yếu, mềm. Việc sử dụng móng cọc sẽ giúp phân bố trọng tải công trình trên các cọc, đảm bảo sự an toàn và tính bền vững lâu dài cho công trình.
Đặc điểm cấu tạo của móng cọc
Cấu tạo của móng cọc được chia ra thành 2 phần: cọc và đài móng.
- Cọc: là phần có chiều dài lớn được sử dụng bằng nhiều loại vật liệu như: bê tông, sắt, thép, gỗ,... chịu trách nhiệm phân tán trọng lực của công trình lên bề mặt đất, giúp cố định kết cấu hạ tầng. Có thể lựa chọn cách làm móng cọc bằng phương pháp cọc điều khiển tức là dùng máy ép cọc bằng phương thẳng đứng hoặc cọc khoan tức dùng máy khoan tạo một khoảng trống trước rồi đưa cọc xuống.
- Đài móng: đây là phần liên kết các cọc lại với nhau tạo ra một cấu tạo bề mặt chắc chắn giúp nâng đỡ toàn bộ công trình.
Sử dụng loại móng bê tông trong xây nhà 4 tầng
Hiện nay có rất nhiều loại móng bê tông khác nhau tuy nhiên có 2 loại được dùng phổ biến nhất trong thi công đó là: móng bê tông tròn ly tâm và móng bê tông vuông.
- Móng bê tông tròn lý tâm: là loại móng có tiết diện tròn được là ra từ phương pháp quay ly tâm và có kích thước đường kính khoảng 250 - 300mm.
- Móng bê tông vuông: hay còn được gọi là cọc bê tông cốt thép bởi nguyên liệu sản xuất chính là từ bê tông và cốt thép. Tiết diện thông thường của loại cọc này là khoảng 200x200mm và chiều dài dùng phổ biến đó là từ 4m đến 8m tùy vào khuôn đúc.
Chi tiết bản vẽ móng ép cọc nhà 4 tầng
Không thể phủ nhận tầm quan trọng của bản vẽ móng ép cọc trong xây nhà 4 tầng. Nhờ có bản vẽ thiết kế chi tiết mà giúp gia chủ cũng như đơn vị thi công có cái nhìn cụ thể về cấu tạo mặt đứng, mặt cắt móng cùng các chi tiết tạo điều kiện cho việc xây dựng được diễn ra thuận lợi, đảm bảo đúng theo tiêu chuẩn kỹ thuật. Bản vẽ móng ép cọc nhà 4 tầng chính là tiền đề giúp bạn sở hữu một công trình chắc chắn, an toàn và có giá trị sử dụng bền vững theo thời gian. Nếu bạn đang quan tâm đến một bản vẽ móng cọc hoàn chỉnh và chính xác thì hãy tham khảo qua bản vẽ mà chúng tôi chia sẻ dưới đây.

Bản vẽ thể hiện mặt bằng định vị cọc trong hồ sơ móng ép cọc của nhà 4 tầng

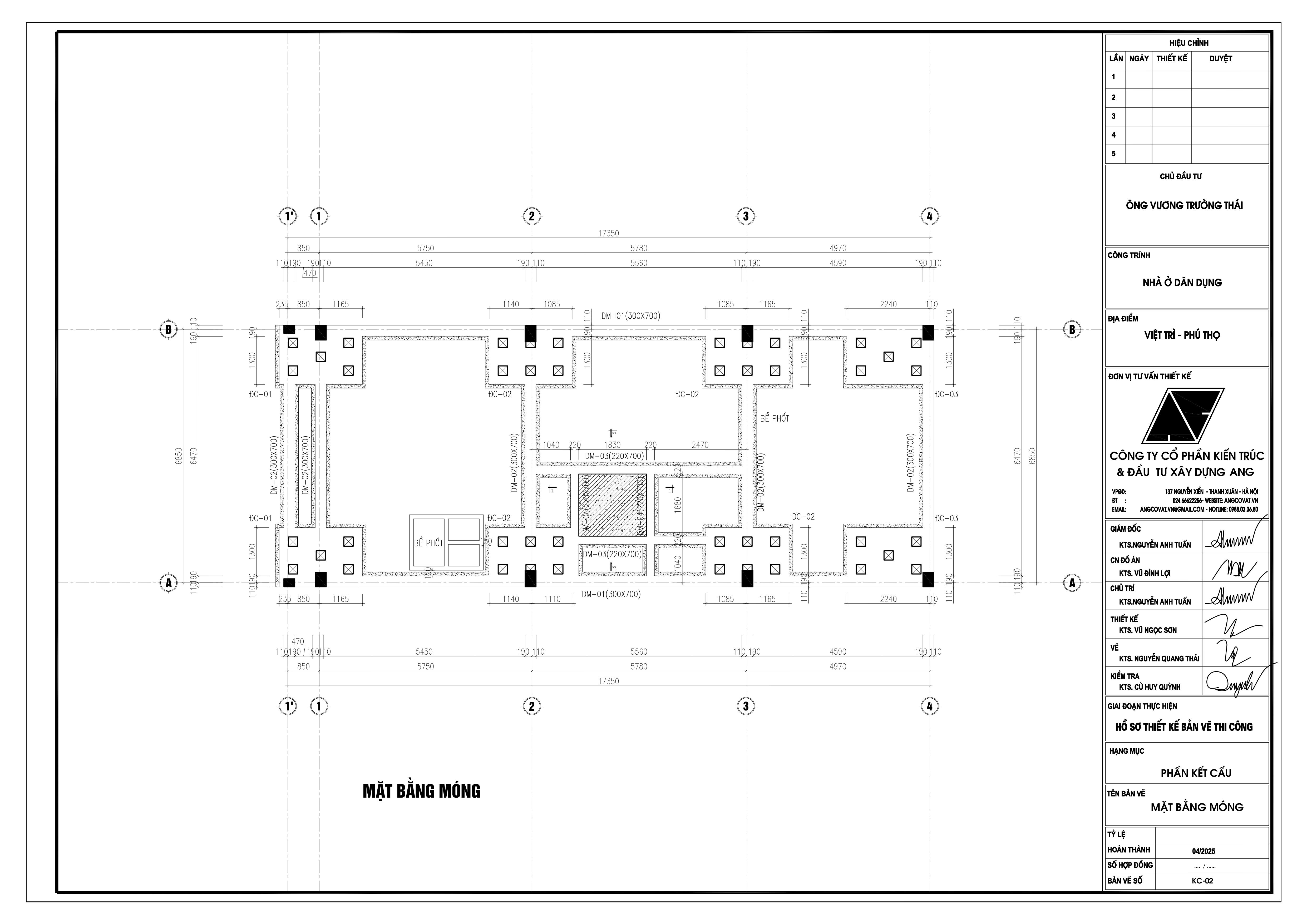
Mặt bằng móng trong hồ sơ móng ép cọc nhà 4 tầng

Mặt bằng định vụ cổ cột

Mặt bằng tường móng của nhà 4 tầng

Mặt bằng giằng chân tường khi thi công móng ép cọc nhà 4 tầng

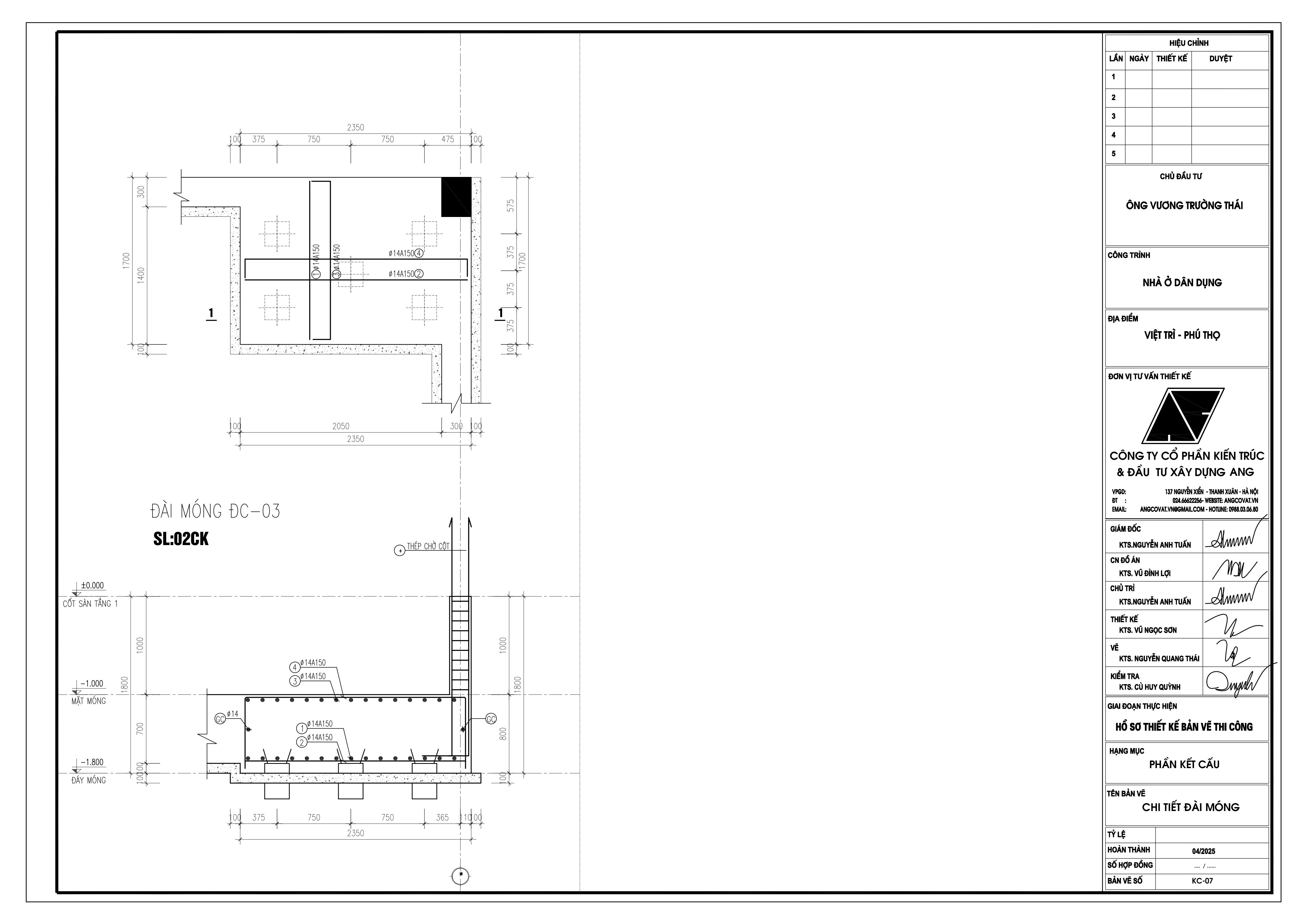
Chi tiết đài móng của nhà 4 tầng

Chi tiết đài móng của nhà 4 tầng

Chi tiết đài móng số 2 của nhà 4 tầng

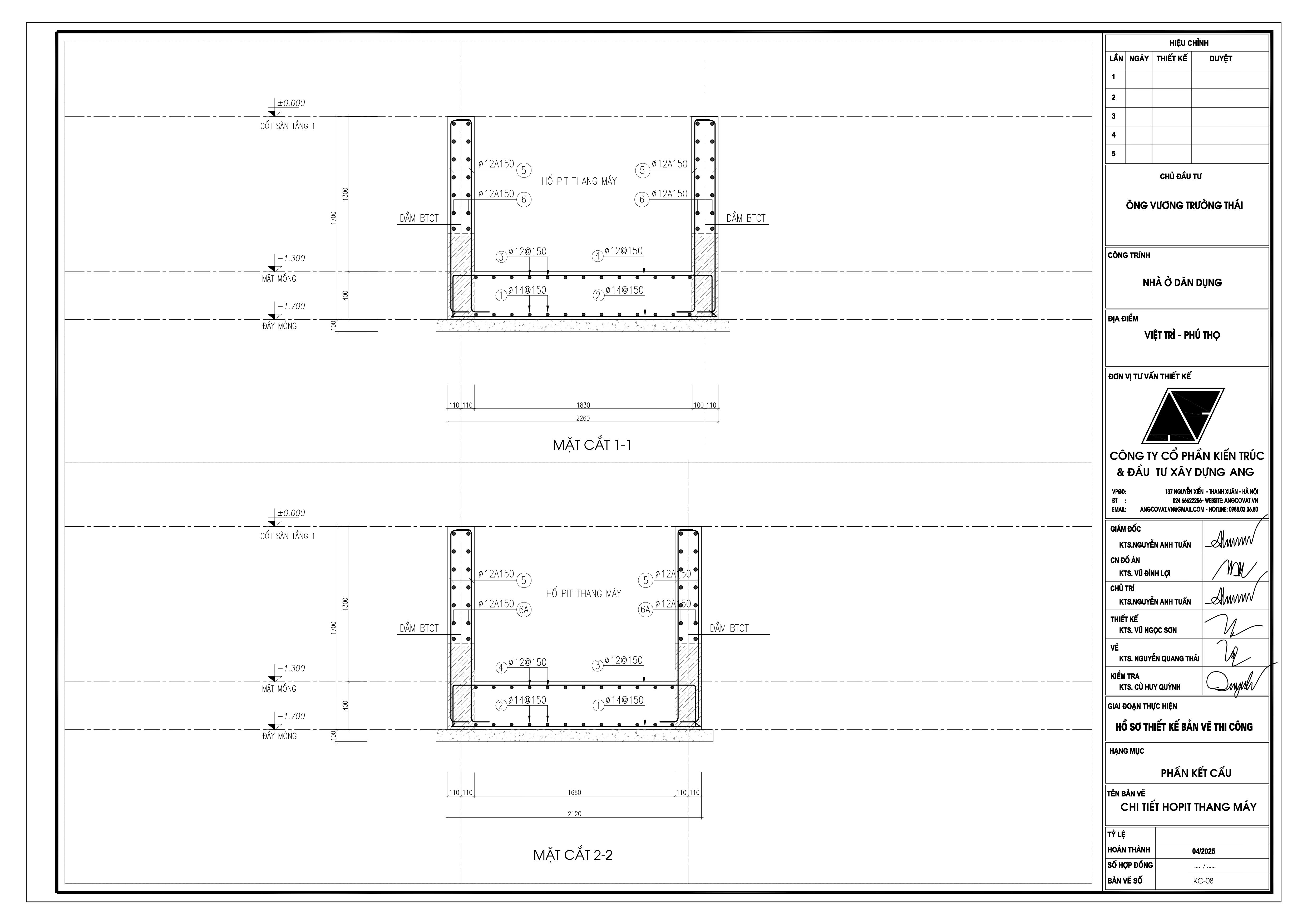
Chi tiết hố pít thang máy trong bản vẽ thiết kế nhà 4 tầng

Chi tiết cổ cột trong bản vẽ móng ép cọc nhà 4 tầng
Trên đây là Full bản vẽ móng ép cọc nhà 4 tầng chi tiết cho các độc giả tham khảo. Hy vọng với những chia sẻ trên sẽ giúp các bạn có được các kiến thức cần thiết góp phần tạo nên sự an toàn và giá trị bền vững lâu dài cho công trình. Nếu cần thêm bất kỳ thông tin gì về bản vẽ móng chi tiết hãy liên hệ qua Hotline: 0988.030.680 để được các KTS Angcovat trực tiếp tư vấn nhé!
Gửi yêu cầu tư vấn
Khách hàng vui lòng gọi điện vào hotline, Gửi yêu cầu tư vấn, Comment yêu cầu tư vấn dưới mỗi bài viết. Chúng tôi sẽ xử lý và trả lời yêu cầu tư vấn khách hàng trong 8h làm việc.
CÔNG TY CỔ PHẦN KIẾN TRÚC VÀ ĐẦU TƯ XÂY DỰNG ANG
Trụ sở: 211 - Khương Trung - Thanh Xuân - Hà Nội
Văn phòng: Số 137 Nguyễn Xiển - Thanh Xuân - Hà Nội.
Chi nhánh HCM: KDC Thới An, phường Thới An ,quận 12, TPHCM.
Chi nhánh Đà Nẵng: 268-270 đường 30/4, Quận Hải Châu, TP Đà Nẵng.
Hotline: 0988030680 - Tel: 02466622256 - Email: angcovat.vn@gmail.com

Bình luận