Tổng Hợp Các Mẫu Thiết Kế Nhà Mặt Tiền 8m Sâu 9m Đẳng Cấp Nhất 2025
Mẫu nhà ngang 8m sâu 9m vẫn luôn là sự lựa chọn lý tưởng và được đông đảo chủ đầu tư Việt săn đón. Với lợi thế về mặt tiền rộng đến 9 mét, mẫu nhà này giúp bạn có thể lựa chọn nhiều loại phong cách, từ cổ điển đến hiện đại. Từ đó tạo nên một vẻ đẹp ngoại thất ấn tượng. Không dừng lại ở đó mà việc bố trí không gian bên trong cũng trở nên thông thoáng và hợp lý, mang lại sự tiện nghi và thuận lợi tối đa trong sinh hoạt cho mọi thành viên. Nếu bạn cũng đang trong quá trình tìm kiếm ý tưởng cho không gian sống của mình, đừng bỏ qua các mẫu thiết kế nhà mặt tiền 8m sâu 9m đẹp và tiện nghi nhất cho năm 2025. Tất cả đều được Angcovat tổng hợp trong bài viết sau, theo dõi ngay nhé.

Thiết kế nhà mặt tiền 8m sâu 9m đa dạng kiến trúc
1.Tìm hiểu ưu và nhược điểm của thiết kế nhà mặt tiền 8m sâu 9m
Có thể nói quỹ đất 8x9m là một bài toán tương đối thú vị với các KTS Angcovat. Sau đây là những phân tích rõ nhất về ưu và nhược điểm của mẫu nhà mà chủ đầu tư lựa chọn:
1.1. Ưu điểm của thiết kế nhà mặt tiền 8m sâu 9m
- Mặt tiền rộng: 8m là con số khá tuyệt vời giúp ngôi nhà của bạn thoát ra khỏi hình dáng mẫu nhà ống thông thường. Qua đó KTS và gia chủ có khả năng làm việc với nhau và cho ra mắt nhiều mẫu thiết kế mặt tiền ấn tượng, đa dạng phong cách từ hiện đại, tân cổ điển đến tối giản.
- Bố trí hệ thống thông gió và ánh sáng đơn giản: Với mặt tiền rộng, việc bố trí hệ thống cửa sổ hay ban công trở nên đơn giản hơn, Nhờ vậy mà giúp không gian bên trong luôn ngập tràn ánh sáng tự nhiên và không khí trong lành.
- Công năng bố trí linh hoạt theo mong muốn gia chủ: Chiều ngang 8m cho phép phân chia các phòng chức năng một cách thoải mái. Bạn có thể dễ dàng bố trí gara ô tô bên cạnh lối đi chính, hoặc sắp xếp phòng khách và bếp ăn song song mà vẫn đảm bảo sự rộng rãi.
- Mang tới cảm giác bề thế: Một ngôi nhà có chiều ngang rộng luôn tạo cảm giác vững chãi, bề thế hơn so với các ngôi nhà có cùng diện tích nhưng mặt tiền hẹp.

Ưu điểm nổi bật của mẫu thiết kế nhà mặt tiền 8m sâu 9m
Xem thêm: Mẫu nhà cấp 4 mái Nhật 80m2 3 phòng ngủ
1.2. Chú ý 2 nhược điểm có trong thiết kế nhà mặt tiền 8m sâu 9m
- Chiều sâu hạn chế: Mặt tiền 8m nhưng chiều sâu chỉ có 9m khiến cho việc sắp xếp các không gian chức năng theo chiều dọc cần được tính toán kỹ càng.
- Dễ tạo ra các không gian bí: Nếu không có giải pháp giếng trời hoặc sân sau, các khu vực ở giữa nhà có thể bị bí và thiếu sáng.
2. Tham khảo một số bản vẽ công năng thiết kế nhà mặt tiền 8m sâu 9m
2.1. Ý tưởng của KTS Angcovat về công năng mẫu nhà 8x9m
Sau đây là gợi ý mà chủ đầu tư có thể tham khảo:
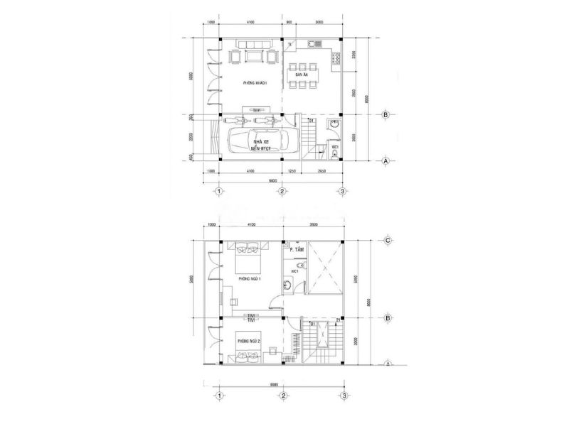
A. Khu vực tầng 1
Chia mặt bằng theo chiều ngang thành 2 khối. Một bên dành cho gara ô tô và bên còn lại dành cho không gian sống.
- Gara: Thiết kế bên 1 khối nhà.
- Phòng khách: Bố trí ngay sau cửa chính, liên thông với khu vực bếp.
- Cầu thang và Giếng trời: Đặt ở giữa nhà, ngăn cách tương đối giữa phòng khách và bếp ăn.
- Bếp và Bàn ăn: Nằm ở phía sau, có cửa mở ra sân sau nhỏ để thoát mùi và lấy sáng.
- WC chung: Đặt gọn gàng dưới gầm cầu thang để tiết kiệm diện tích.
- Sân sau: Dùng làm khu vực giặt phơi, đặt cục nóng điều hòa và trồng cây xanh.
B. Khu vực tầng 2
- Phòng ngủ Master: Đặt ở phía trước nhà, có ban công riêng để nhìn được view trước mặt tiền.
- Phòng ngủ 2 & 3: Đặt ở phía sau nhà, lấy sáng từ sân sau và giếng trời.
- WC chung: Dành cho 2 phòng ngủ nhỏ.
- Sảnh cầu thang / Phòng sinh hoạt chung: Khoảng không gian trống ở khu vực cầu thang có thể đặt một bộ sofa nhỏ hoặc bàn làm việc.
2.2. Tham khảo 2 mẫu bản vẽ công năng
Đối với quỹ đất 8x9m thì Angcovat xin gửi tới bạn 2 mẫu công năng phổ biến:

Bản vẽ công năng nhà 2 tầng 8x9m
- Tầng 1: Gara, phòng khách, phòng bếp, toilet và cầu thang.
- Tầng 2: 2 phòng ngủ, wc và SHC.

Công năng nhà 2 tầng 1 lửng mặt tiền 8m
Thiết kế nhà mặt tiền 8m sâu 9m này có bố trí công năng tương đối đặc biệt.Việc bố trí thêm tầng lửng giúp công trình có đến 4 phòng ngủ, đáp ứng nhu cầu sinh hoạt của một gia đình đông người.
Đừng bỏ qua: Mẫu nhà 2 tầng chữ L 100m2 mái Nhật
3. Nguyên tắc quan trọng khi thiết kế nhà mặt tiền 8m sâu 9m
Trong quá trình thiết kế nhà mặt tiền 8m sâu 9m thì chủ đầu tư cũng cần phải lưu ý:
3.1. Yếu tố ánh sáng và sự thông thoáng
Giải pháp hiệu quả nhất là thiết kế một giếng trời ở khu vực trung tâm nhà, nhiều gia chủ Việt thường chọn cạnh cầu thang. Giếng trời không chỉ cung cấp ánh sáng cho các tầng mà còn đóng vai trò giúp ngôi nhà luôn mát mẻ. Ngoài ra còn cần tận dụng thêm độ hiệu quả tối đa của phần mặt tiền bằng hệ cửa kính lớn, ban công và logia.
3.2. Kiến trúc thiết kế nhà mặt tiền 8m sâu 9m
Với mặt tiền 8m như đã chia sẻ, gia chủ có nhiều lựa chọn:
- Phong cách Hiện đại: Phổ biến nhất hiện nay thường sẽ tập trung vào các hình khối vuông vức, đường nét tối giản. Bên cạnh đó là sử dụng các loại vật liệu thông dụng như kính, thép, bê tông. Phong cách này mang lại vẻ đẹp trẻ trung, năng động và tối ưu chi phí cho gia chủ.
- Phong cách Tân cổ điển: Dành cho những ai yêu thích cảm giác sang trọng, tinh tế.
- Phong cách cổ điển: Mang đậm dấu ấn của sự cổ kính với các hoa văn cầu kỳ, thể hiện sự đẳng cấp của chủ đầu tư.

Một vài nguyên tắc cần chú ý khi thiết kế nhà 8x9m
3.3. Tập trung bố trí công năng liền mạch
Cần xác định rõ trục giao thông chính và phân chia các khu vực chức năng một cách hợp lý. Cầu thang nên được đặt ở vị trí gọn gàng, không chiếm quá nhiều diện tích và thuận tiện cho việc di chuyển. Không gian sinh hoạt chung (phòng khách - bếp - ăn) thường được thiết kế theo dạng không gian mở để tạo cảm giác rộng rãi và tăng tính kết nối giữa các thành viên.
4. Chia sẻ báo giá thiết kế nhà mặt tiền 8m sâu 9m mới nhất
Ngay sau đây Angcovat xin gửi tới các chủ đầu tư mức giá thiết kế nhà mặt tiền 8m sâu 9m:
|
Phong cách thiết kế |
Đơn giá thiết kế 3D (VNĐ/m2) |
|
Kiến trúc hiện đại |
120.000 VNĐ/m2 |
|
Kiến trúc Tân cổ điển |
120.000 VNĐ/m2 |
|
Kiến trúc Cổ điển |
150.000 VNĐ/m2 |
Đặc biệt, chúng tôi có những ưu đãi khi bạn lựa chọn kiến trúc Angcovat trở thành đơn vị thiết kế nhà ở như sau.
- Công trình có diện tích > 500m2, Giảm 10% so với báo giá thiết kế nhà ở.
- Giá trị hợp đồng tối thiểu 1 công trình : 16.000.000đ
- Thiết kế > 1 công trình , Giảm 10% so với báo giá thiết kế nhà ở.
Miễn phí 100% giá thiết kế nhà ở cho các phần sau.
- Quy hoạch về mặt định hướng cảnh quan sân vườn
- Hồ sơ thiết kế cổng, hàng rào.
5. Tổng hợp các mẫu thiết kế nhà mặt tiền 8m sâu 9m đẹp nhất 2025
Sau đây là một số mẫu công trình nhà mặt tiền 8m có chiều sâu 9m mà chủ đầu tư có thể tham khảo:

Kiến trúc nhà 3 tầng tân cổ điển sang trọng
Có thể bạn quan tâm: Nhà 2 tầng 100m2

Không gian sống tối giản nhà 3 tầng

Kiến trúc nhà 2 tầng hiện đại có sân vườn

Nhà 2 tầng nhỏ gọn mái Nhật có sân vườn rộng

Nhà 2 tầng tân cổ điển gam màu trắng

Nhà 2 tầng mái Nhật mặt tiền 8m

Kiến trúc nhà 2 tầng tân cổ điển rộng rãi
Xem thêm: Nhà biệt thự 3 tầng giá rẻ

Không gian sống đẳng cấp trong nhà hiện đại 3 tầng

Nhà 2 tầng sang trọng mái thái 8x9m

Thiết kế nhà vuông tiết kiệm chi phí xây dựng

Nhà vườn 1 tầng mái Nhật mặt tiền 8m

Kiến trúc nhà 3 tầng mái Nhật đẳng cấp

Tạo hình nhà 2 tầng độc đáo mái chéo

Kiến trúc nhà 2 tầng có hệ mái khuyết thú vị

Nhà vườn mái Nhật gam màu xám đẳng cấp
6. Kết luận
Thiết kế nhà mặt tiền 8m sâu 9m là một không gian sống đáng mơ ước của nhiều chủ đầu tư Việt. Với lợi thế mặt tiền rộng, đáp ứng đầy đủ sự thông thoáng và khả năng thích ứng nhiều lối kiến trúc thì đây chắc chắn là mẫu nhà sẽ tiếp tục dẫn đầu xu hướng trong nhiều năm tới. Nếu bạn có nhu cầu thiết kế nhà đẹp hoặc thi công, vui lòng liên hệ trực tiếp với Angcovat thông qua: 0988.030.680
Gửi yêu cầu tư vấn
Khách hàng vui lòng gọi điện vào hotline, Gửi yêu cầu tư vấn, Comment yêu cầu tư vấn dưới mỗi bài viết. Chúng tôi sẽ xử lý và trả lời yêu cầu tư vấn khách hàng trong 8h làm việc.
CÔNG TY CỔ PHẦN KIẾN TRÚC VÀ ĐẦU TƯ XÂY DỰNG ANG
Trụ sở: 211 - Khương Trung - Thanh Xuân - Hà Nội
Văn phòng: Số 137 Nguyễn Xiển - Thanh Xuân - Hà Nội.
Chi nhánh HCM: KDC Thới An, phường Thới An ,quận 12, TPHCM.
Chi nhánh Đà Nẵng: 268-270 đường 30/4, Quận Hải Châu, TP Đà Nẵng.
Hotline: 0988030680 - Tel: 02466622256 - Email: angcovat.vn@gmail.com

Bình luận