Tất tần tật bản vẽ thiết kế điện nước nhà biệt thự phố 3 tầng
Khi xây dựng các công trình nhà phố 3 tầng, việc không chú trọng đến bản vẽ điện nước có thể gây đến những bất tiện và rắc rối trong quá trình sử dụng. Vậy nên việc đầu tư chỉnh chu vào một bản vẽ thiết kế điện nước nhà biệt thự phố 3 tầng sẽ hỗ trợ rất nhiều trong quá trình sinh hoạt của gia chủ, đảm bảo hệ thống điện nước trong gia đình được hoạt động trơn tru, mượt mà và hiệu quả. Ngoài ra khi sở hữu một bản vẽ điện nước chính xác, hoàn hảo sẽ giúp gia chủ tiết kiệm đáng kể các chi phí phát sinh cũng như tạo dựng được không gian sống thoải mái, tiện nghi.
Hãy theo dõi bài viết sau đây để tham khảo trọn bộ hồ sơ thiết kế và thi công điện nước của biệt thự phố 3 tầng chi tiết nhất nhé!

Full bộ bản vẽ thiết kế điện nước nhà biệt thự phố 3 tầng
Tại sao cần bản vẽ thiết kế điện nước nhà biệt thự phố 3 tầng?
Một công trình nhà phố 3 tầng được hoàn thiện bên cạnh việc chăm chút cho vẻ đẹp thiết kế ngoại thất bên ngoài thì một phần yếu tố cũng tạo nên sự tiện nghi và thoải mái cho không gian sống của gia chủ đó chính là bản vẽ thiết kế điện nước nhà biệt thự phố 3 tầng. Trên bản vẽ điện nước đã được KTS thể hiện rất rõ ràng và cụ thể từng ký hiệu, vị trí lắp đặt và sơ đồ nguyên lý hoạt động, đồng thời bản vẽ cũng cung cấp các lưu ý, ghi chú cụ thể để đảm bảo quá trình thi công được chính xác và hiệu quả.

Trọn bộ bản vẽ điện nước nhà biệt thự phố 3 tầng
Đôi khi có nhiều gia chủ vì muốn tiết kiệm nên lựa chọn phương án tự thiết kế tuy nhiên cách này sẽ gây ảnh hưởng trực tiếp đến sự tiện nghi và tính an toàn trong quá trình sử dụng. Bởi lẽ, các bản vẽ điện nước nhà phố 3 tầng được KTS thiết kế dựa trên nguyên tắc pháp lý và tiêu chuẩn kỹ thuật nghiêm ngặt, nhằm đảm bảo hệ thống được hoạt động trơn tru, an toàn và hiệu quả. Họ sẽ ra đưa ra giải pháp phù hợp với từng không gian công trình, nhu cầu sử dụng của gia chủ, thuận lợi cho quá trình bảo trì, bảo dưỡng sau này và đảm bảo sự vận hành ổn định, bền vững cho công trình.
Tìm hiểu bản vẽ thiết kế điện nước nhà biệt thự phố 3 tầng
Hiểu được tầm quan trọng của bản vẽ điện nước, vậy nên nhiều gia đình hiện nay đã chú trọng và đầu tư hơn rất nhiều với mong muốn sở hữu không gian sống an toàn và tiện nghi. Sau đây là ví dụ về bản vẽ thiết kế điện nước hoàn chỉnh của gia đình anh Định ở Hưng Yên với mẫu nhà biệt thự phố 3 tầng. Mặt bằng công năng của công trình phố 3 tầng bao gồm:
- Tầng 1: gara để ô tô, phòng khách, nhà bếp, khu vệ sinh chung.
- Tầng 2: 3 phòng ngủ, khu vệ sinh chung, ban công.
- Tầng 3: 1 phòng thờ, 2 phòng ngủ, khu vệ sinh chung.
Sau đây hãy cùng tìm hiểu hồ sơ thiết kế và thi công phần điện và phần nước của công trình biệt thự phố 3 tầng.
Bản vẽ điện nhà phố 3 tầng
Sơ đồ điện nhà phố 3 tầng sẽ cung cấp các thông tin liên quan đến hệ thống điện của gia đình bao gồm: hệ thống đèn chiếu sáng, sơ đồ nguyên lý hoạt động, mặt bằng cấp điện các tầng, vị trí lắp đặt các thiết bị điện, điều hòa, nóng lạnh,...

Sơ đồ điện nhà phố 3 tầng chi tiết
Hồ sơ bản vẽ thi công phần điện của chủ đầu tư Ông Phạm Đình Định ở Mỹ Hảo - Hưng Yên với công trình biệt thự phố 3 tầng 5 phòng ngủ được thiết kế bởi KTS Angcovat.

Thuyết minh kỹ thuật - bản vẽ thiết kế điện nước nhà biệt thự phố 3 tầng
Tại đây ghi đầy đủ các cách thức đi dây, kích thước độ dài ống, vị trí lắp đặt tiêu chuẩn và các lưu ý đặc biệt khi lắp đặt từng hệ thống điện. Nhờ đó, các đơn vị chủ thầu có thể nắm bắt thông tin rõ ràng, tạo điều kiện thuận lợi cho quá trình thi công được suôn sẻ, đảm bảo các thiết bị điện được lắp đầy đủ và chính xác phục vụ nhu cầu sinh hoạt hàng ngày của gia đình.
Sơ đồ cấp điện tổng nhà phố 3 tầng
Mặt bằng cấp điện tổng được KTS thể hiện rất chi tiết, nguồn điện chính được sử dụng cho công trình do điện lực cấp tới tủ điện tổng TDT đặt tại tầng trệt, đường dây điện song song với đường dây cáp truyền hình, internet xuyên qua tầng vào tủ tổng. Cáp tư tủ điện tầng đến các thiết bị công tắc, ổ cắm, máy lạnh được đi trong ống PVC khoang trần, tường hoặc sàn rồi luồn vào ống PVC tiết diện 20cm, 25cm, 32cm đặt âm tường cấp tới các thiết bị.
Vị trí camera dự kiến được đặt ở các vị trí quan trọng là trước cổng nhà, trong phòng khách và sân sau của nhà, nhờ có vị trí lắp đặt camera hợp lý, gia chủ có thể dễ dàng quan sát và kiểm tra được an ninh gia đình của mình, tránh tình tránh bị trộm cắp.

Mặt bằng cấp điện tổng trong tổng bản vẽ thiết kế điện nước nhà biệt thự phố 3 tầng
Mặt bằng chiếu sáng các tầng trong sơ đồ điện nhà phố 3 tầng
Hệ thống đèn chiếu sáng được phân bố ở các tầng, tại từng vị trí khác nhau sẽ lắp đặt các loại đèn khác nhau sao cho vừa phù hợp về mặt thẩm mỹ và đảm bảo không gian có đủ ánh sáng phục vụ cho quá trình hoạt động và sinh hoạt.

Mặt bằng chiếu sáng tầng 1 bản vẽ điện nước nhà phố 3 tầng
Tại không gian tầng 1, bố trí 2 chùm đèn tại khu vực phòng khách và bếp ăn mang đến không gian lung linh, ấm áp.
Đèn ốp tường đặt tại vị trí 2 trụ cột cổng và trái nhà vừa tăng tính thẩm mỹ cho vẻ đẹp ngoại thất lại giúp gia chủ thuận tiện đi lại khi trời tối.
Phòng khách, phòng ăn và khu vực nấu nướng thiết kế đèn Downlight âm trần giúp không gian sống thêm phần sang trọng và hiện đại.
Khu vực nhà vệ sinh của tầng 1 lựa chọn loại đèn vuông chuyên dành cho ốp trần vệ sinh, đèn sưởi phòng tắm dùng cho mùa đông và quạt thông gió để lưu thông không khí.

Mặt bằng chiếu sáng tầng 2 trong sơ đồ điện nhà phố 3 tầng
Trên mặt bằng tầng 2, hệ thống đèn chùm và đèn âm tường được bố trí ở 3 phòng ngủ làm tăng vẻ đẹp sang trọng, lung linh cho không gian nội thất, cung cấp đủ lượng sáng cần thiết cho quá trình sinh hoạt. Tại cầu thang thiết kế đèn cảm biến tạo điều kiện thuận lợi cho các thành viên di chuyển lên xuống, cùng với đó đèn âm tường cũng được bố trí dọc theo hành lang đảm bảo an toàn cho hoạt động đi lại. Ngoài sân thượng bố trí đèn ốp trần vuông chi phí vừa hợp lý lại tiết kiệm điện năng.

Mặt bằng chiếu sáng tầng 3 trong bản vẽ thiết kế điện nước nhà biệt thự phố 3 tầng
2 phòng ngủ ở tầng 3 cũng đều được thiết kế đèn âm trần và đèn chùm, tại khu vực phòng thờ bố trí đèn âm tường với ánh sáng vàng nhẹ nhàng tạo không gian thờ cúng linh thiêng, ấm áp, gần gũi. Cơ bản hệ thống đèn cầu thang, hành lang, khu vệ sinh sẽ giống với tầng 2, tuy nhiên tại tầng 3 sẽ được bố trí thêm đèn ốp tường ở các trụ cột mặt tiền vừa có chức năng trang trí vừa để chiếu sáng cho không gian ban công.
Mặt bằng ổ cắm các tầng trong bản vẽ điện nhà 3 tầng
Mật độ ổ cắm được phân bố đều ở các vị trí cần thiết phục vụ cho nhu cầu sử dụng, tất cả các ổ cắm lắp âm tường độ cao 400, riêng cho khu vực vệ sinh 1300 tính từ cốt sàn hoàn thiện hoặc tùy theo yêu cầu kỹ thuật và bố trí nội thất. Cáp cấp nguồn cho tất cả ổ cắm điện có tiết diện 2,5 mm2, ống luồn cáp điện cho ổ cắm là ống PVC tiết diện 16mm2, 20mm2, màu dây chiếu sáng và ổ cắm theo tiêu chuẩn là: Dây pha (Đỏ, Xanh), Dây N (Đen), Dây Pe (Sọc vàng xanh).

Mặt bằng ổ cắm tầng 1 trong sơ đồ điện nhà phố 3 tầng 5 phòng ngủ
Ổ cắm cho tivi, cục wifi ở phòng khách có độ cao 0,5m so với mặt sàn. Tron phòng bếp bố trí ô cắm dùng cho các thiết bị nhà bếp như: nồi cơm điện, máy xay, máy sinh tố, lò vi sóng, tủ lạnh,..vị trí ổ cắm có thể linh hoạt để phù hợp với đặc tính sử dụng của từng sản phẩm. trong phòng tắm có ổ cắm cho bình nóng lạnh ở độ cao cách sàn trên 1,5m nhằm đảm bảo an toàn.

Mặt bằng ổ cắm tầng 2 của bản vẽ điện nước nhà phố 3 tầng
Trong các phòng ngủ bố trí ổ cắm cho dùng cho đèn ngủ, chỗ cắm sạc điện thoại, quạt điện thiết bị sinh hoạt hằng ngày như: máy sấy, máy uốn tóc,...

Mặt bằng ổ cắm tầng 3 của bản vẽ điện nước nhà biệt thự phố 3 tầng
Trên tầng 3, ổ cắm ở các phòng ngủ cũng tương tự được bố trí như ở tầng 2, ngoài ra ngoài hành lang còn bố trí ổ cắm dùng cho cục Wifi nhánh, phòng thờ cũng có các ổ cắm dùng cho các thiết bị đèn trang trí.
Mặt bằng điều hòa các tầng trong sơ đồ điện nhà phố 3 tầng
Vị trí của các điều hòa được bố trí ở các phòng chức năng trung tâm như phòng ngủ, bếp ăn, phòng khách đảm bảo mang lại không gian sống trong lành, thoáng đãng cho gia chủ. Ống đồng kết nối giữa dàn nóng và dàn lạnh cần tuân thủ theo đúng yêu cầu của hàng, thông thường độ dài trung bình hoạt động tốt nhất là khoảng 3m - 7m.

Mặt bằng điều hòa tầng 1 trong bản vẽ thiết kế điện nước nhà biệt thự phố 3 tầng
Khu vực tầng 1 của biệt thự phố 3 tầng, điều hòa được đặt ở vị trí phòng khách và bếp ăn, mang đến những làn gió mát mẻ, dịu nhẹ cho khu vực đón tiếp khách và nấu nướng, ăn uống của gia chủ.

Mặt bằng điều hòa tầng 2 của bản vẽ điện nước nhà phố 3 tầng
Trên mặt bằng tầng 2, điều hòa được đặt ở vị trí 3 phòng ngủ, đường dẫn khí gas dẫn ra cục nóng phía sau nhà, độ cao điều hòa lắp đặt cách trần là 0,4m, đảm bảo độ an toàn và mang lại không gian thoáng đãng, mát mẻ cho nơi ngủ nghỉ của các thành viên trong gia đình.

Mặt bằng điều hòa tầng 3 nhà phố 3 tầng
Tương tự như tầng 2, vị trí điều hòa ở tầng 3 cũng được đặt ở không gian 2 phòng ngủ nhằm tạo nên những giấc ngủ ngon cho gia chủ.

Chi tiết lắp đặt điều hòa trong bản vẽ điện nước nhà phố 3 tầng
Chi tiết lắp đặt điều hòa trong bản vẽ thiết kế điện nước nhà biệt thự phố 3 tầng bao gồm: chi tiết cách nhiệt ống gas, chi tiết cách nhiệt ống nước ngưng, chi tiết neo đỡ ống gas đi trên tường, trần, quy cách hàn ống đồng, chi tiết giá đỡ outdoor unit theo tường, chi tiết lắp đặt outdoor unit theo tường hồi. Nhờ hình ảnh minh hoạt, các mặt cắt cụ thể, ghi chú chi tiết giúp quá trình lắp đặt được tiến hành chính xác và chuẩn chỉnh, đảm bảo hoạt động hiệu quả và an toàn.
Bản vẽ mặt bằng tiếp địa và chống sét của nhà biệt thự phố 3 tầng
Việc lắp đặt tiếp địa và mái chống sét là yếu tố rất quan trọng trong bất kỳ bản vẽ thiết kế điện nước nhà biệt thự phố 3 tầng nào. Đây là phương án kết nối các thiết bị điện với mặt đất để phòng ngừa các trường hợp rò rỉ điện, giảm thiểu nguy cơ hỏng hóc do rò rỉ hoặc bị sét đánh. Phần mái chống sét sẽ lắp đặt các cột thu lôi nhằm thu sét dẫn xuống mặt đất đảm bảo an toàn cho toàn công trình.

Mặt bằng tiếp địa tầng 1 của sơ đồ điện nhà phố 3 tầng
Dây dẫn bằng thép mạ đồng kết nối các cọc tiếp địa lại với nhau và nối với các thiết bị điện cần tiếp địa, các cọc tiếp địa được đóng xuống đất để dẫn truyền dòng điện rò rỉ xuống mặt đất một cách an toàn.

Mặt bằng chống sét mái trong biệt thự phố 3 tầng
Các kim thu sét có chiều dài 700 phân bố trên mái, kết nối với nhau bằng cáp đồng bọc M50 - PVC D25 từ đó dẫn xuống tầng 1 và dẫn vào thiết bị thoát điện.

Chi tiết cọc tiếp địa trong thiết kế bản vẽ điện nước biệt thự phố 3 tầng
Chi tiết cọc tiếp địa trong bản vẽ thiết kế điện nước nhà phố 3 tầng bao gồm: liên kết dây dẫn sét với cọc tiếp địa, lắp kim thu sét trên đỉnh mái, cách đi dây theo tường, bộ nối kiểm tra, cách đi dây theo mái, chi tiết liên kết tiếp địa, cắt dọc, cắt ngang. Sau khi thi công xong hệ thống nối đất chống sét, nối đất an toàn điện cần phải đo kiểm tra điện trở nối đất không vượt quá 10 ôm đối với nối đất chống sét và 4 ôm với nối đất an toàn điện.
Sơ đồ nguyên lý cấp điện cho biệt thự nhà phố 3 tầng

Bản vẽ sơ đồ nguyên lý cấp điện cho biệt thự nhà phố 3 tầng
Nguồn được chính được sử dụng cho các tầng được cấp do điện lực ở tủ điện đặt ở tầng 1, tất cả các tủ điện được lắp đặt âm tường, cao độ lắp tủ là +1600 so với cốt sàn hoàn thiện, không được nối dây trong ống điện, chỉ được phép nối dây tại Box đặt nổi trên tường hoặc tại đế hộp công tắc , ổ cắm.
Bản vẽ thiết kế nước biệt thự phố 3 tầng
Bản vẽ thiết kế nhà biệt thự phố 3 tầng hoàn chỉnh nhất định không thể thiếu đến bản vẽ nước bao gồm hệ thống cấp nước và thoát nước, đảm bảo quá trình sinh hoạt hàng ngày được diễn ra thuận tiện và thoải mái. Sau đây là bản vẽ thiết kế nước biệt thự phố 3 tầng chi tiết.

Bản vẽ thiết kế điện nước nhà biệt thự phố 3 tầng - Phần nước.

Thuyết minh kỹ thuật bản vẽ nước biệt thự phố 3 tầng
Mặt bằng cấp nước 3 tầng biệt thự phố
Nước được kết nối từ hệ thống nước chung ở ngoài đồng hồ được đưa vào bồn chứa nước ngầm 1.0m3 sau đó nước được bơm lên bồn nước mái có dung tính 2.0m3. Từ bồn nước mái, nước sẽ được xử lý qua bình lọc sau đó cấp đến các thiết bị nước trong gia đình. Lưu ý ống nước trong các khu vực nhà vệ sinh được đi âm tường và cách sàn 3mm theo đúng tiêu chuẩn kỹ thuật.

Mặt bằng cấp nước tầng 1 trong bản vẽ thiết kế điện nước nhà biệt thự phố 3 tầng
Hình ảnh hệ thống nước tầng 1 được lấy từ bể nước tới các thiết bị vòi nước nhà bếp, vòi nước khu vực phòng tắm, nhà WC và nước cho khu vực tưới tiêu cây cối.

Mặt bằng cấp nước tầng 2 của bản vẽ nước nhà phố 3 tầng
Không gian tầng 2, nước được cấp tại các khu vệ sinh của phòng ngủ dùng cho sinh hoạt và ban công để gia chủ tưới cây cảnh.

Mặt bằng cấp nước tầng 3 của bản vẽ điện nước nhà phố 3 tầng 5 phòng ngủ
Không gian tầng 3 nước cũng được dẫn từ bể chứa nước tới các thiết bị vệ sinh trong 2 khu vực WC của gia đình.
Mặt bằng cấp nước áp mái trong bản vẽ nước nhà phố 3 tầng
Téc nước được đặt trên mái có 3 ống nước trong đó 1 ống cấp nước lên dẫn từ nguồn nước tổng và 2 nguồn cấp nước xuống để dẫn nước tới các thiết bị sử dụng. Để đảm bảo nguồn nước được sạch sẽ, gia chủ cần lưu ý vệ sinh định kỳ ít nhất 2 tháng 1 lần.
Mặt bằng thoát nước các tầng 1, 2, 3
Tất cả nước thải sinh hoạt của gia đình sẽ được thoát vào ống nhanh D90 rồi thoát vào ống đứng D90, sau đó xuống ống ngang D114, D90 rồi xuống tới hố ga và ra hệ thống thoát nước chung của khu vực. Các ống thoát nước đều đi âm tường, âm sàn, vật liệu sử dụng ống PVC có độ bền cao hạn chế được tình trạng nứt vỡ, rò rỉ nước.
Mặt bằng thoát nước tầng 1 trong bản vẽ thiết kế điện nước nhà biệt thự phố 3 tầng
Hệ thống ống thoát nước được lắp dẫn từ khu vực vệ sinh, phòng bếp, các ống thoát nước mưa, ống thoát khu vực tưới tiêu dẫn ra nhánh ống tổng dẫn ra ống thải chung của khu vực. Các đường ống đảm bảo có chất liệu tốt và độ lớn theo tiêu chuẩn để đảm bảo quá trình sử dụng được mượt mà, hiệu quả.
Mặt bằng thoát nước tầng 2 của thiết kế điện nước biệt thự phố 3 tầng
Các ống thoát nước bằng nhựa PVC được đặt âm tường, âm sàn ở các khu vực nhà vệ sinh và ống thoát nước ban công dẫn vào ống thoát nước đứng D90.
Mặt bằng thoát nước tầng 3 trong sơ đồ nước nhà biệt thự phố 3 tầng
Ống nước thoát tại tầng 3 được dẫn từ nhà vệ sinh của 2 phòng ngủ và ống thoát ban công vào ống nước thoát D90 và thoát phân D11
Mặt bằng thoát nước áp mái trong bản vẽ nước biệt thự phố 3 tầng
Để tránh tình trạng bị ứ đọng nước mưa ở mái, thiết kế bố trí các điểm ống thoát nước mưa ở các điểm trọng yếu dẫn xuống ống đứng và dẫn ra ngoài. Nước mưa trên mái được thu bằng phễu thu có cầu chặn rác, rồi thoát vào các ống đứng D60, D90 xuống tới đất được dẫn ra hố ga, từ hố ga dẫn ra hệ thống thoát nước chung của khu vực.
Sơ đồ cấp, thoát nước các nhà vệ sinh trong bản vẽ điện nước 3 tầng
Tiếp theo trong bản vẽ nước biệt thự phố 3 tầng là sơ đồ cấp, thoát nước cho 6 nhà vệ sinh. Vị trí đặt các lavabo của nhà vệ sinh là 0.6m - 0.8m tính từ mặt sàn, bồn cầu đặt cao 0.4m so với mặt sàn. Nguồn nước sử dụng được lấy từ nguồn nước sạch của khu vực, sau đó bơm vào bể ngầm và được bơm lên bể mái và phân phối đến các đường ống của công trình. Ống thoát phân và nước tiểu sẽ được dẫn vào bể tự hoại để xử lý cục bộ sau đó đưa ra mạng thoát nước chung
Sơ đồ cấp thoát nước WC 1 của bản vẽ thiết kế điện nước nhà biệt thự phố 3 tầng

Sơ đồ cấp thoát nước WC 2 trong bản vẽ điện nước nhà 3 tầng
Sơ đồ cấp thoát nước WC 3 biệt thự phố 3 tầng

Sơ đồ cấp thoát nước WC 4 trong bản vẽ nước nhà phố 3 tầng

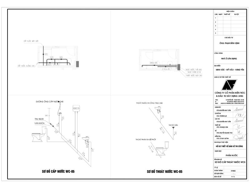
Sơ đồ cấp thoát nước WC 5 trong bản vẽ điện nước nhà 3 tầng

Sơ đồ cấp thoát nước WC 6 nhà 3 tầng
Sơ đồ cấp, thoát nước đứng nhà biệt thự phố 3 tầng
Sơ đồ cấp thoát nước đứng của bản vẽ nước biệt thự phố 3 tầng thể hiện chi tiết các đường ống và mũi tên chỉ dòng đi của nước. Lựa chọn vật tư yêu cầu ống cấp nước dùng ống PPR và ống thoát nước dùng ống nhựa tiền phong PVC, Class 2.

Sơ đồ thoát nước đứng trong bản vẽ thiết kế điện nước nhà biệt thự phố 3 tầng
Sơ đồ cấp nước đứng của bản vẽ điện nước nhà 3 tầng
Chi tiết lắp đặt các thiết bị nước và ghi chú cụ thể
Trước khi lắp đặt các đường ống, cần đo chiều dài ống thực tế, các đường ống đi trên trần giả hoặc dưới âm sàn trong nhà vệ sinh. Đường ống nằm ngang có độ dốc tối thiểu là 2%, ống thoát phân có độ dốc tối thiểu là 3%. Trong quá trình thi công cần phải kết hợp với bản vẽ thiết kế, kết cấu và điều chỉnh sao cho phù hợp với điều kiện thực tế.

Chi tiết lắp đặt nước trong sơ đồ nước nhà phố 3 tầng

Thống kê phụ kiện nước cụ thể của bản vẽ điện nước biệt thự phố 3 tầng
Trên đây là toàn bộ thông tin chi tiết về bản vẽ thiết kế điện nước nhà biệt thự phố 3 tầng. Nếu cần thêm thông tin về bản vẽ điện nước chi tiết cho các mẫu nhà hãy liên hệ với Angcovat qua Hotline: 0988.030.680.
Gửi yêu cầu tư vấn
Khách hàng vui lòng gọi điện vào hotline, Gửi yêu cầu tư vấn, Comment yêu cầu tư vấn dưới mỗi bài viết. Chúng tôi sẽ xử lý và trả lời yêu cầu tư vấn khách hàng trong 8h làm việc.
CÔNG TY CỔ PHẦN KIẾN TRÚC VÀ ĐẦU TƯ XÂY DỰNG ANG
Trụ sở: 211 - Khương Trung - Thanh Xuân - Hà Nội
Văn phòng: Số 137 Nguyễn Xiển - Thanh Xuân - Hà Nội.
Chi nhánh HCM: KDC Thới An, phường Thới An ,quận 12, TPHCM.
Chi nhánh Đà Nẵng: 268-270 đường 30/4, Quận Hải Châu, TP Đà Nẵng.
Hotline: 0988030680 - Tel: 02466622256 - Email: angcovat.vn@gmail.com

Bình luận