Nghiên cứu thiết kế mặt bằng nhà tam hợp viện đẹp chuẩn phong thủy
Giữa dòng chảy kiến trúc, mẫu nhà tam hợp viện nổi bật như là thiết kế tượng trưng cho nét đẹp thuần Việt và tình cảm gắn bó với cội nguồn. Với hình dáng chữ U 3 phía khép kín, mẫu nhà tạo ra không gian sinh hoạt ấm cúng và gần gũi cho các thành viên. Việc quy hoạch mặt bằng nhà tam hợp viện không chỉ chú trọng đến công năng tiện nghi mà còn đòi hỏi sự hài hòa giữa phong thủy và thẩm mỹ. Hãy cùng chúng tôi theo dõi bài viết sau đây để tìm hiểu cách bố trí mặt bằng sao cho đẹp và hợp lý nhất!

Tư vấn mặt bằng nhà tam hợp viện đẹp và tiện nghi
Nhà tam hợp viện là gì?
Kiến trúc nhà tam hợp viện được bắt nguồn từ văn hóa truyền thống Á Đông. Kiểu nhà thiết kế 3 khối tạo thành hình chữ U, tạo ra khoảng trống chính giữa, thường tận dụng làm sân nhà, tiểu cảnh, hồ cá. Cách bố trí này không chỉ đảm bảo về yếu tố thẩm mỹ mà còn mang đậm tính chất phong thủy, thể hiện sự hài hòa giữa trời - đất - con người.
Nhờ có độ sâu của khoảng trống chữ U mà không gian sống trong nhà luôn được lưu thông thoáng đãng và tối ưu ánh sáng tự nhiên hiệu quả, mang đến sự thoải mái và tiện nghi cho gia chủ.
>>> Mời quý vị tham khảo thêm nét kiến trúc tinh hòa của mẫu nhà kiểu tứ hợp viện hiện đại.
Ưu điểm của mặt bằng nhà tam hợp viện

Nhà tam hợp viện tạo không gian sống quây quần, gần gũi
- Hài hòa phong thủy: Mặt bằng nhà tam hợp viện có thiết kế chữ U tạo thế vòng cung ôm lấy khu vực trung tâm chính giữa tạo sựcân bằng, ổn định giúp thu hút vượng khí tốt cho ngôi nhà.
- Có tính kết nối cao: Cách bố trí 3 cạnh hướng vào nhau tạo nên một quần thể sinh hoạt khép kín, mang đến không gian sống gần gũi và ấm áp cho các thành viên trong gia đình.
- Thể hiện tinh thần truyền thống: Mẫu nhà Tam hợp viện không chỉ đơn thuần là nơi ở mà còn là nơi lưu giữ nét đẹp truyền thống và bản sắc văn hóa của dân tộc, khơi gợi tình cảm gắn bó với cội nguồn.
- Tối ưu công năng tiện nghi: Với cấu trúc chữ U mà khoảng cách đi lại được rút ngắn nhờ hành lang và khoảng sân chung, vậy nên việc sinh hoạt cũng được diễn ra thuận tiện và dễ dàng. Phòng ngủ được bố trí trên các nhánh chữ U đảm bảo tính riêng tư mà vẫn gắn kết.
>>> Cập nhật chi phí xây nhà tam hợp viện chuẩn xác nhất.
Phân tích quy hoạch mặt bằng nhà tam hợp viện
Phương án thiết kế 1:
Trên khu đất rộng 1.800m², mặt bằng nhà tam hợp viện được quy hoạch mạch lạc và sâu sắc với 3 phần chính: nhà ở chính, ao sen và viền thiền.
- Khu vực nhà ở chính - không gian kết nối các thành viên
Không gian nhà ở chính 2 tầng của gia đình được KTS bố trí phía góc trái của mảnh đất. Vị trí lùi vào sâu bên trong so với đường quốc lộ tạo nên không gian sống riêng tư và kín đáo, đồng thời giúp tối ưu hóa quỹ đất xây dựng, dành ra khoảng diện tích rộng rãi để bố trí tiểu cảnh, sân vườn.
Lấy cảm hứng từ tinh thần truyền thống Á Đông, mẫu nhà thiết kế theo kiểu nhà tam hợp viện với hình dáng chữ U đặc trưng. Các phòng chức năng được bố trí trên 3 nhánh tạo ra sự phân tách rõ ràng và riêng tư cho từng khu vực.
Ở phương án thiết kế 1, mặt bằng nhà tam hợp viện được bố trí như sau:
- Tầng 1:
- Phòng ăn dài được đặt ở vị trí cạnh đáy, tiếp giáp từ sảnh chính vào. Tại đây thiết kế 3 cửa chính vừa phù hợp phong thủy lại hỗ trợ việc lưu thông không khí và tối ưu ánh sáng cho ngôi nhà.
- Phòng bếp: bố trí tách biệt phía góc phải, vừa riêng tư, sạch sẽ lại thuận tiện di chuyển qua lại với phòng ăn bên cạnh.
- Phòng khách: đặt ở vị trí ngoài cùng cạnh nhánh phải, không gian mở rộng thông thoáng với 3 mặt tiếp giáp tiểu cảnh, đem lại cảm giác thoải mái và thư giãn cho mỗi vị khách ghé thăm.
- 2 phòng ngủ: bố trí dọc bên nhánh trái, tách biệt hoàn toàn với khu vực sinh hoạt chính tạo không gian ngủ nghỉ riêng tư và yên tĩnh cho các thành viên.
- 2 WC chung & riêng: phục vụ nhu cầu sinh hoạt của gia đình.
- Tầng 2:
- Phòng thờ: đặt ở vị trí trung tâm chính giữa trên tầng 2. Thiết kế nhà thờ 3 gian theo phong cách truyền thống thể hiện lòng hiếu kính với tổ tiên và gìn giữ bản sắc dân tộc.
- 2 phòng ngủ: bố trí 2 bên góc tạo nên bố cục cân đối, hài hòa.
- Ngoài ra, thiết kế thêm phòng gym phục vụ nhu cầu rèn luyện sức khỏe của gia đình và 1 phòng sinh hoạt chung - không gian kết nối và yêu thương.

Tổng thể mặt bằng nhà tam hợp viện

Bản vẽ mặt bằng công năng tầng 1
- Khu vực sân trước, ao sen và viền thiền xung quanh - thiên nhiên là trung tâm
Tổng thể mặt bằng nhà tam hợp viện được bố trí theo nguyên tắc đối xứng - một nét đặc trưng trong văn hóa kiến trúc truyền thống Á Đông. Mọi khu vực đều được liên kết với nhau một cách chặt chẽ và mạch lạc, tạo nên không gian sinh hoạt gắn kết và hài hòa với thiên nhiên.
- Ao sen - biểu tượng thanh tịnh, sinh khí tài lộc
Đối diện nhà ở chính là thiết kế ao sen - vị trí trên dọc trục trung tâm không chỉ mang ý nghĩa truyền thống mà còn đem lại nhiều lợi ích về thẩm mỹ và phong thủy.
-
- Biểu tượng ao sen thể hiện cho nguồn sinh khí dồi dào và mạnh mẽ, giúp thu hút tài lộc và may mắn cho gia chủ.
- Hoa sen thanh cao và thuần khiết tạo cảm giác nhẹ nhàng và thư thái.
- Ao sen đặt tại nơi trung tâm trong khoảng sân rộng, khiến không gian không bị đơn điệu mà trở nên nổi bật và thu hút hơn, nâng tầm giá trị thẩm mỹ của ngôi nhà.
- Viên thiền - nơi tâm hồn được tĩnh tại
Viền thiền được bố trí phía bên góc phải của mảnh đất tách biệt với các khu vực còn lại thông qua đường giao thông nội bộ tạo ra một khoảng lùi tĩnh lặng. Nơi đây như là điểm tựa tinh thần - nơi tâm trí ta được lắng dịu, tâm hồn được thanh lọc và xua tan mọi lo âu, căng thẳng của cuộc sống thường nhật.
-
- Thiết kế sân đá thiền, ghế bệt
- Xung quanh bố trí hàng rào cây xanh tạo nên không gian viền thiền yên bình, nhẹ nhàng và hài hòa với thiên nhiên.
- Sân trước - khoảng đệm kết nối không gian
Khoảng sân trước của ngôi nhà được thiết kế lát toàn bộ gạch đá tự nhiên sạch sẽ mà bền vững, xung quanh khuôn viên bố trí nhiều cây xanh lớn, cây bonsai,..có tính đối xứng nhau mang đến tổng thể hài hoài về thị giác.

Mặt bằng nhà tam hợp viện thiết kế bể bơi vuông nhỏ trong vườn thiền

Hình ảnh mặt bằng tam hợp viện không có bể bơi

Mặt bằng tam hợp viện có bể bơi xung quanh vườn thiền

Mặt bằng tam hợp viện có bể bơi lớn bên cạnh vườn thiền
Phương án thiết kế 2:
Ở mẫu phương án số 2 này, thiết kế bố trí thêm 1 phòng ngủ phụ ở dưới tầng 1 và thay đổi hướng phòng ngủ ở tầng 2.
Mặt bằng nhà tam hợp viện bao gồm:
- Tầng 1: Phòng ăn 92m2; Phòng bếp 26m2; Phòng khách 35m2; Phòng ngủ 1 12,9m2; Phòng ngủ 2 12m2; Phòng ngủ 3 16,5m2; WC1 6,6m2.
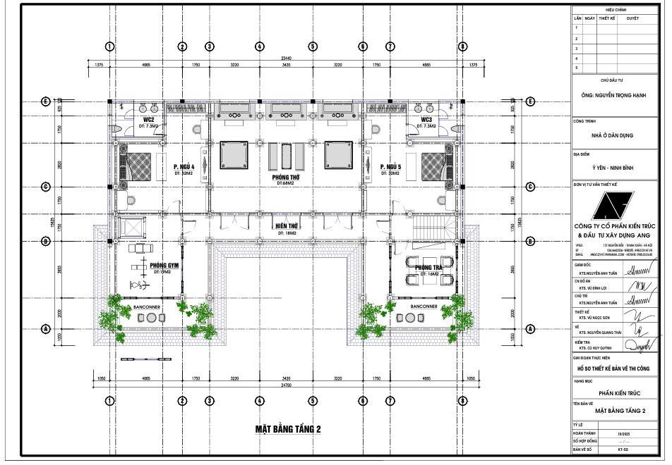
- Tầng 2: Phòng thờ 65m2; Phòng ngủ 4 32m2; WC2 7,3m2; Phòng ngủ 5 32m2; WC3 7,3m2; Phòng gym 19m2; Phòng trà 16m2.

Tổng quan mặt bằng nhà tam hợp viện 1800m2 4 phòng ngủ

Mặt bằng công năng tầng 1

Mặt bằng công năng tầng 2
Tham khảo các mẫu nhà tam hợp viện đẹp điển hình hiện nay

Kiến trúc nhà tam hợp viện kết hợp truyền thống và hiện đại

Mẫu nhà tam hợp viện đẹp phổ biến ở nông thôn

Thiết kế nhà tam hợp viện 1 tầng mái Nhật sang trọng, phù hợp xu thế

Mẫu nhà theo hình dáng chữ U đặc trưng

Khoảng trống chữ U được tận dụng bố trí tiểu cảnh đẹp mắt

Bậc thềm đá kết nối các không gian

Tham khảo mẫu nhà tam hợp viện mái Nhật 1 tầng

Phong cách nhà tam hợp viện theo hơi thể tinh tế, hiện đại

Kiến trúc hàng rào đồng bộ với thiết kế tổng thể

Từng góc nhỏ đều được thiết kế tỉ mỉ, thể hiện sự tinh tế

Mẫu nhà chính là điểm tựa bình an cho tâm hồn và là nơi lưu giữ bản sắc dân tộc

Thiết kế nhà tam hợp viện 2 tầng đẹp ấn tượng

Nhà tam hợp viện sử dụng hệ mái ngói mũi thủ công truyền thống

Khoảng sân trước lát gạch đá bền bỉ

Hệ thống hàng rào kiên cố lợp ngói thẩm mỹ

Hình ảnh chính diện của mẫu nhà tam hợp viện

Từng góc nhỏ đều được thiết kế kỹ lưỡng

Tiểu cảnh mang đến không gian nhẹ nhàng, thanh tịnh cho ngôi nhà

Chân tường nhà ốp đá tạo nét đẹp tự nhiên

Thiết kế được cách tân tinh tế nhưng vẫn giữ được hồn cách văn hóa xưa cũ

Mẫu nhà tam hợp viện 2 tầng mang đậm vẻ đẹp truyền thống Á Đông

Tổng thể nhà tam hợp viện trông vô cùng nổi bật và thu hút

Tiểu cảnh hồ cá, thác nước sinh động

Khu vực chòi nghỉ thư giãn

Nhà tam hợp viện sử dụng vật liệu truyền thống, gần gũi (gỗ, ngói mũi, đá...)

Phối cảnh nhà tam hợp viện 3 tầng thể hiện vị thế đẳng cấp

Thiết kế hài hòa giữa kiến trúc và thiên nhiên

Mẫu nhà tam hợp viện mái ngói truyền thống

Vẻ ngoài nhà tam hợp viện chứa đựng hồn cốt bản sắc văn hóa Việt

Kết cấu nhà chữ U ôm lấy khoảng sân nhà chính giữa tạo không gian sống ấm cúng, gần gũi

Thiết kế nhà tam hợp viện hài hòa từ kiến trúc đến thiên nhiên

Hình ảnh sân vườn bố trí cây cảnh bonsai, bàn trà

Mẫu nhà tam hợp viện kiểu truyền thống

Không gian sống tự nhiên thoáng mát, gần gũi trong mẫu nhà tam hợp viện

Hình ảnh mẫu nhà tam hợp viện đẹp, gần gũi thiên nhiên
Mặt bằng nhà tam hợp viện không chỉ tối ưu không gian sống tiện nghi cho gia đình mà còn là nơi lưu giữ bản sắc văn hóa, thể hiện tinh thần truyền thống hướng về cội nguộn. Nếu bạn đang có nhu cầu tư vấn về mẫu nhà ở, nhà vườn, nhà thờ đẹp chuẩn phong thủy, đừng ngần ngại liên hệ tới chúng tôi qua Hotline: 0988.030.680!
Gửi yêu cầu tư vấn
Khách hàng vui lòng gọi điện vào hotline, Gửi yêu cầu tư vấn, Comment yêu cầu tư vấn dưới mỗi bài viết. Chúng tôi sẽ xử lý và trả lời yêu cầu tư vấn khách hàng trong 8h làm việc.
CÔNG TY CỔ PHẦN KIẾN TRÚC VÀ ĐẦU TƯ XÂY DỰNG ANG
Trụ sở: 211 - Khương Trung - Thanh Xuân - Hà Nội
Văn phòng: Số 137 Nguyễn Xiển - Thanh Xuân - Hà Nội.
Chi nhánh HCM: KDC Thới An, phường Thới An ,quận 12, TPHCM.
Chi nhánh Đà Nẵng: 268-270 đường 30/4, Quận Hải Châu, TP Đà Nẵng.
Hotline: 0988030680 - Tel: 02466622256 - Email: angcovat.vn@gmail.com

Bình luận