5+ mẫu mặt bằng biệt thự 3 tầng có giếng trời đẹp và độc đáo 2025
Việc bố trí thêm giếng trời cho các mẫu mặt bằng biệt thự 3 tầng hiện nay không chỉ được coi là lựa chọn mà dần trở thành tiêu chuẩn thiết kế chung cho mọi không gian sống đẳng cấp. Đây không chỉ là một khoảng thông tầng lấy sáng mà còn là một trục năng lượng giúp kết nối giữa bên ngoài và bên trong căn biệt thự. Tuy nhiên KTS Angcovat thường xuyên nhận được vấn đề từ các chủ đầu tư về việc bố trí làm sao để có thể phát huy tối đa hiệu quả. Nội dung này cần đòi hỏi sâu về việc tính toán kỹ càng về cả kiến trúc lẫn phong thủy. Bài viết sau đây sẽ chia sẻ rõ hơn về nguyên tắc vàng trong việc thiết kế mặt bằng biệt thự 3 tầng có giếng trời, từ đó giúp gia chủ kiến tạo một không gian sống không chỉ đẹp, sang trọng mà còn có đủ vượng khí.

Các mẫu mặt bằng biệt thự 3 tầng có giếng trời đẹp và khoa học
Xem thêm: Mặt bằng biệt thự 3 tầng hiện đại
1. Nguyên nhân vì sao mặt bằng biệt thự 3 tầng cần có giếng trời?
Dưới đây là một số giá trị kiến trúc của giếng trời có trong các công trình biệt thự 3 tầng:
1.1. Tạo ra giải pháp lấy gió và sáng vượt trội:
Đây là công năng cơ bản và quan trọng nhất khi thiết kế mặt bằng biệt thự 3 tầng có giếng trời . Giếng trời được kiết thế thông thẳng từng tầng 1 lên tầng 3 như một ống khói đưa ánh sáng mặt trời từ mái xuống khu vực các tầng. Đồng thời giếng trời cũng tạo ra sự chênh lệch áp suất nhằm thúc đẩy quá trình đối lưu không khí, giúp không khí nóng bên trong thoát ra ngoài và hút không khí mát vào, giữ cho ngôi nhà luôn thông thoáng.
1.2. Tạo ra điểm nhấn thị giác đẹp mắt
Giếng trời không chỉ là một khoảng trống mà còn là một điểm nhấn kiến trúc đắt giá bên trong căn biệt thự 3 tầng. Không gian bên dưới tầng 1 có thể sắp xếp một hồ cá, tiểu cảnh khô,...Điều này biến công năng này trở thành trục thị giác chính, kết nối các không gian chức năng ở các tầng khác nhau. Từ đó cho bất kỳ ai ghé thăm có được những góc nhìn thú vị và cảm giác rộng mở, đa chiều.

Ưu điểm nổi bật của mặt bằng biệt thự 3 tầng có giếng trời
1.3. Mở rộng không gian
Giếng trời mang các yếu tố tự nhiên (ánh sáng, gió, mưa, cây xanh) vào không gian sống của gia chủ. Điều này giúp bỏ qua mọi ranh giới giữa trong và ngoài, tạo ra một môi trường sống thư thái, gần gũi và tốt cho sức khỏe tinh thần của chủ đầu tư cùng các thành viên trong nhà,
2. Bí quyết thiết kế mặt bằng biệt thự 3 tầng có giếng trời đẹp mắt
Trong phong thủy thì giếng trời được xem là đường dẫn khí trực tiếp từ bên ngoài vào bên trong công trình. Bởi vậy mà vị trí của nó cũng khiến ảnh hưởng cực lớn tới năng lượng tổng thể:
2.1 Nguyên tắc tổng quan
Dành cho những ai chưa biết thì giếng trời thuộc hành Mộc. Đây là cầu nối giữa Thiên và Địa ở trong mỗi căn biệt thự 3 tầng. Để phát huy được tối ưu tác dụng thì cần tuân thủ sự cân bằng:
- Mộc – Tạo ra dòng sinh khí.
- Thổ - Tạo ra sự ổn định nuôi Mộc.
- Thủy – Nuôi dưỡng Mộc kích hoạt vận may, tài lộc.
- Hỏa – Mang tới năng lượng và sự sosogn.
- Kim – Có thể cho thêm vào để tạo ra sự cân bằng.\
Có thể bạn quan tâm: Nhà biệt thự 3 tầng 100m2
2.2. Bố trí mặt bằng biệt thự 3 tầng có giếng trời ở vị trí trung tâm
Chuyên gia phong thủy đánh giá rất cao khi thiết kế mặt bằng biệt thự 3 tầng hiện đại có giếng trời sẽ được đặt ở chính giữa.
A. Lý giải cách bố trí
Vị trí trung tâm được coi là trái tim của công trình và là khởi nguồn của việc phân bổ năng lượng tới các khu vực trong căn biệt thự. Đặt công năng ở đây cũng giống cách gia chủ giúp sinh khí của trời đất được hấp thụ và lan tỏa đều ra khắp nơi, mang tới sự cân bằng và sức khỏe cho mọi thành viên.
Nếu lý giải theo kiến trúc thì vị trí trung tâm thường sẽ là nơi bị thiếu sáng và bí nhất trong căn biệt thự. Đặt giếng trời ở đây sẽ giải quyết triệt để vấn đề này, khiến hành lang được chiếu sáng, cầu thang cùng các không gian xung quanh.

Bí quyết bố trí mặt bằng biệt thự 3 tầng có giếng trời tối ưu
B. Lưu ý khi đặt giếng ở vị trí trung tâm
Chủ đầu tư cần lưu ý việc giữ gìn sạch sẽ khu vực này. Tránh để bừa bộn để dòng khí được lưu thông tốt nhất. Bên cạnh đó trong phong thủy Thổ khắc Thủy và có thể xuất hiện xung đột năng lượng. Nếu muôn có yếu tố nước trong công trình thì cần đặt lệch về các hướng tốt và cần có sự tư vấn rõ ràng của chuyên gia. KTS Angcovat gợi ý về một tiểu cảnh khô sẽ là sự lựa chọn an toàn và hài hòa.
C. Bố trí giếng trời ở vị trí khác
Bên cạnh việc đặt ở chính giữa mặt bằng biệt thự 3 tầng thì chủ đầu tư cũng có thể đặt giếng ở các khu vực có hướng tốt như Sinh khí, Diên niên, Thiên Y để kích hoạt được nguồn năng lượng này. Tránh các vị trí sau:
- Hướng bắc.
- Không đặt giếng trời ở ngay phía trên bếp.
- Không đặt giếng ở trên phòng thờ
- Không đặt trực tiếp trên giường ngủ, bàn làm việc.
3. Gợi ý về cách bố trí mặt bằng biệt thự 3 tầng có giếng trời ở trung tâm
Nhằm giúp gia chủ dễ hình dung hơn thì ngay sau đây KTS Angcovat sẽ chia sẻ về phương án điển hình thường được sử dụng trong mặt bằng biệt thự 3 tầng có giếng trời:
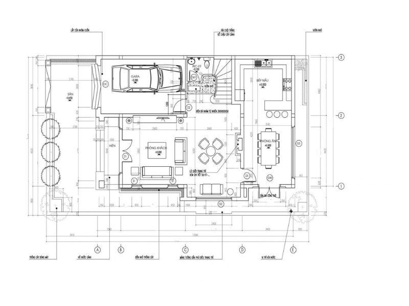
3.1. Khu vực tầng 1
- Phân chia quỹ đất: Phía trước có thể làm gara và sảnh chính. Phía sau là khu vực phòng khách, khu vực bếp ăn và phòng ngủ nhỏ (Nếu muốn).
- Cầu thang và giếng trời: Đặt ở chính giữa căn biệt thự. Cầu thang gia chủ có thể sử dụng dạng bay hoặc dạng xương cá ôm lấy 1 phần bên hông giếng trời. Không gian bên dưới giếng có thể thiết kế tiểu cảnh khô hoặc hồ cá nhỏ.
- Phòng khách: Bố trí theo kiểu không gian mở, có vách kính lớn nhìn ra sân.
- Phòng bếp và ăn: Nằm đối diện phòng khách qua khu vực giếng trời. Bàn ăn được đặt ở vị trí có thể ngắm được cả tiểu cảnh giếng trời và khu vực sân sau, tạo nên một không gian thư thái.
3.2. Khu vực tầng 2 trong mặt bằng biệt thự 3 tầng có giếng trời
- Sảnh tầng và phòng SHC: Sảnh thang rộng, nhận được ánh sáng trực tiếp từ giếng trời. Đây là nơi gia chủ có thể bố trí một không gian SHC cho cả gia đình ngồi quây quần bên nhau, đọc sách hay xem phim.
- Phòng ngủ master: Là phòng ngủ của gia chủ có ban công riêng, phòng thay đồ và WC.
- 2 phòng ngủ nhỏ: Bố trí ở phía sau, có cửa sổ nhìn ra sân sau. Hành lang dẫn vào hai phòng ngủ này được chiếu sáng hoàn toàn bởi giếng trời, tránh gợi cảm giác bí bách, tù túng.

Gợi ý về cách bố trí mặt bằng biệt thự 3 tầng có thêm giếng trời
3.3. Khu vực tầng 3
- Sảnh tầng: Được chiếu sáng nhờ giếng trời.
- Phòng thờ: Đặt ở vị trí trang trọng nhất phía trước, tách biệt hoàn toàn với các không gian giải trí.
- Phòng làm việc: Cần không gian yên tĩnh.
- Phòng giặt và sân phơi: Được bố trí gần nhau.
- Sân thượng: Đây là nơi mà gia chủ có thể làm một khu vườn nhỏ, quầy bar ngài trời và cũng là nơi tổ chức các buổi tiệc BBQ.
4. Vài mẫu mặt bằng biệt thự 3 tầng có giếng trời được đông đảo gia chủ yêu thích trong năm 2025
Dưới đây là một số mẫu biệt thự 3 tầng có giếng trời được Angcovat tổng hợp lại và gửi tới chủ đầu tư:

Nhà hàng 3 tầng 300m2 có giếng trời
Công năng bao gồm:
- Tầng 1: Cổng chính, sân trước, hành lang, phòng ăn, phòng pizza, WC
- Tầng 2: Phòng ăn, sảnh tầng, WC, thông tầng.
- Tầng 3: Khu vực bếp, kho lạnh, kho đông, kho khô, phòng nghỉ nhân viên, bàn Vip 1, bàn Vip 2, WC

Biệt thự 3 tầng 160m2 có giếng trời
- Tầng 1: sân trước 23m2; tiền sảnh 5m2; phòng khách 37m2; sảnh trung tâm 37m2; phòng bếp 22m2; phòng ăn 24m2; wc1: 3m2; phòng ngủ 1: 16,5m2; wc2: 3,6m2, giếng trời.
- Tầng 2: sảnh thang 8,6m2; phòng SHC 32m2; phòng ngủ 2: 15,5m2; phòng ngủ 3: 15,5m2; wc3: 4m2; wc4: 4m2; phòng ngủ 4: 14m2; ban công 4,2m2; phòng ngủ 5: 18,1m1; ban công 3,1m2
- Tầng 3: sảnh thang 8,6m2; phòng kho 9m2; phòng thờ 18m2; sân chơi 23m2; sân chơi phơi 73m2
Xem thêm: Thiết kế mẫu biệt thự 3 tầng mặt tiền 12m hình chữ L hiện đại ở Chương Mỹ - Hà Nội

Biệt thự 3 tầng 8x20m hiện đại 5 phòng ngủ
- Tầng 1: sân trước 23m2; tiền sảnh 5m2; phòng khách 37m2; sảnh trung tâm 37m2; phòng bếp 22m2; phòng ăn 24m2; wc1: 3m2; phòng ngủ 1: 16,5m2; wc2: 3,6m2
- Tầng 2: sảnh thang 8,6m2; phòng SHC 32m2; phòng ngủ 2: 15,5m2; phòng ngủ 3: 15,5m2; wc3: 4m2; wc4: 4m2; phòng ngủ 4: 14m2; ban công 4,2m2; phòng ngủ 5: 18,1m1; ban công 3,1m2
- Tầng 3: sảnh thang 8,6m2; phòng kho 9m2; phòng thờ 18m2; sân chơi 23m2; sân chơi phơi 73m2

Biệt thự 3 tầng có tầng hầm và giếng trời
- Tầng 1: Sảnh tầng: 6,5m2; sảnh thang: 19,5m2; phòng khách và ăn 40,5m2; kho 5,2m2; wc 7,2m2; phòng thay đồ 10,7m2; wc 6,4m2; phòng ngủ 1: 32m2
- Tầng 2: sảnh tầng 6,5m2; sảnh thang 19,5m2; phòng ngủ 2: 42,3m2; ban công: 10,2m2; wc: 12,6m2; phòng ngủ 3: 18,6m2; ban công: 3,8m2; wc: 10,2m2; phòng thay đồ 7,2m2
- Tầng 3: Sảnh tầng: 6,5m2; sảnh thang: 19,5m2; phòng ngủ 4: 19,8m2; ban công 10,2m2; phòng thay đồ 9,1m2; wc 6m2; phòng kho 2,8m2; phòng ngủ 5: 10m2; wc 2,7m2; phòng tập gym 44m2; ban công 10,2m2

Nhà biệt thự 3 tầng 100m2 có giếng trời

Công trình biệt thự 3 tầng hiện đại có giếng trời
Không nên bỏ lỡ: Mẫu biệt thự 3 tầng có bể bơi đẹp

Mặt bằng biệt thự 3 tầng có giếng trời phong cách tân cổ

Biệt thự 3 tầng sang trọng và đẳng cấp

Mặt bằng biệt thự 3 tầng có giếng trời độc đáo

Kiến trúc biệt thự 3 tâng tân cổ điển sang trọng
5. Kết luận
Thiết kế mặt bằng biệt thự 3 tầng có giếng trời là yếu tố cân bằng giữa công năng, thẩm mỹ và năng lượng. Giếng trời không chỉ là một giải pháp kiến trúc, mà còn là một yếu tố phong thủy có khả năng thay đổi hoàn toàn chất lượng không gian sống và vận khí của gia chủ. Qua bài viết của Angcovat, mong rằng bạn đã có thêm ý tưởng sống trong tương lai của mình. Nếu có nhu cầu thiết kế hoặc thi công, vui lòng liên hệ: 0988.030.680.
Gửi yêu cầu tư vấn
Khách hàng vui lòng gọi điện vào hotline, Gửi yêu cầu tư vấn, Comment yêu cầu tư vấn dưới mỗi bài viết. Chúng tôi sẽ xử lý và trả lời yêu cầu tư vấn khách hàng trong 8h làm việc.
CÔNG TY CỔ PHẦN KIẾN TRÚC VÀ ĐẦU TƯ XÂY DỰNG ANG
Trụ sở: 211 - Khương Trung - Thanh Xuân - Hà Nội
Văn phòng: Số 137 Nguyễn Xiển - Thanh Xuân - Hà Nội.
Chi nhánh HCM: KDC Thới An, phường Thới An ,quận 12, TPHCM.
Chi nhánh Đà Nẵng: 268-270 đường 30/4, Quận Hải Châu, TP Đà Nẵng.
Hotline: 0988030680 - Tel: 02466622256 - Email: angcovat.vn@gmail.com

Bình luận