Chi phí xây nhà 2 tầng 6x15m hết bao nhiêu? Khám phá vẻ đẹp ngoại thất công trình
https://angcovat.vn/biet-thu/biet-thu-2-tang/5095-chi-phi-xay-nha-2-tang-6x15m-het-bao-nhieu-kham-pha-ve-dep-ngoai-that-cong-trinh.html#sigProId6b68094670
Sở hữu 90m2 là một lợi thế tuyệt vời để thiết kế cho mình một không gian sống ấm áp, rộng rãi cho gia đình từ 3-4 người. Bên cạnh đó mặt tiền 6m cũng được xem là kích thước vàng cho phép KTS tha hồ bố trí công năng và tạo mặt tiền đẹp mắt. Tuy nhiên vấn đề đáng chú ý nhất lúc này lại là: “Chi phí xây nhà 2 tầng 6x15m”. Vậy làm thế nào để dự trù ngân sách chính xác nhất, tránh tình trạng phát sinh vượt khả năng chi trả? Bài viết sau đây của Angcovat sẽ chia sẻ cái nhìn tổng quan thông qua mẫu nhà 2 tầng của anh Vinh ở Hưng Yên.
1. Thông tin mẫu nhà 2 tầng 6x15m2 của anh Vinh ở Hưng Yên
|
BT2402426 |
|
2 tầng |
|
Anh Vinh |
|
Hưng Yên |
|
200m2 |
|
Kiến trúc sư Angcovat |
|
2026 |
|
1.7 tỷ VNĐ |
|
Diện tích sử dụng 90m2/sàn - Thông số công năng: + Tầng 1: Phòng khách 25m2, phòng bếp + ăn 21.5m2, wc 4.3m2, phòng ngủ 12m2, hành lang 4.3m2. + Tầng 2: Phòng ngủ 15.7m2, wc 4.5m2, phòng ngủ 13.7m2, wc 4.3m2, sảnh tầng 13m2, phòng ngủ 16.7m2. |
2. Điều gì khiến anh Vĩnh lựa chọn mẫu nhà 2 tầng 6x15m?
Trước khi đi tìm hiểu chi phí xây nhà 2 tầng 6x15m thì cần xét tới các ưu điểm của mẫu công trình đáng số này:
- Tối ưu không gian sống: Mặt tiền 6m rộng hơn đáng kể so với các mẫu nhà ống thông thường. Điều này giúp ngôi nhà dễ dàng đón ánh sáng tự nhiên, lưu thông không khí tốt hơn và tạo cảm giác bề thế, sang trọng cho mặt tiền.
- Bố trí công năng linh hoạt: Chiều sâu 15m không quá dài, tránh được tình trạng nhà bị tối ở khúc giữa (khu vực cầu thang). Diện tích này hoàn toàn có thể bố trí từ 3 đến 4 phòng ngủ, đáp ứng nhu cầu của gia đình 2-3 thế hệ.
- Chi phí xây dựng hợp lý: So với các mẫu biệt thự hay nhà 3, 4 tầng, việc xây dựng nhà 2 tầng 6x15m2 giúp tiết kiệm đáng kể chi phí phần móng và kết cấu chịu lực, thời gian thi công cũng được rút ngắn.
Chi phí xây nhà 2 tầng 6x15m tại Hưng Yên
Xem thêm: Chi phí làm nhà mái Nhật 100m2 2 tầng
3. Chia sẻ cách tính chi phí xây nhà 2 tầng 6x15m chuẩn xác
Dưới đây là cách tính mà các nhà thầu hay áp dụng khi xác định chi phí xây nhà 2 tầng 6x15m:
Phần móng:
- Móng đơn: Tính 20% - 30% diện tích sàn
- Móng băng: Tính 50% diện tích sàn.
- Móng cọc: Tính 30% - 40% diện tích sàn.
Phần thân (Các tầng):
- Tầng trệt (Tầng 1): Tính 100% diện tích.
- Lầu 1 (Tầng 2): Tính 100% diện tích.
Phần mái:
- Mái tôn: Tính 30% diện tích mái.
- Mái bằng (Bê tông cốt thép - BTCT): Tính 50% diện tích mái.
- Mái ngói kèo sắt: Tính 70% diện tích mái
- Mái bê tông dán ngói: Tính 100% diện tích mái.
Theo thông tin thì nhà anh Vinh ở Hưng Yên có diện tích 90m2/ sàn, sử dụng móng cọc và hệ mái bằng. Lúc này:
- Diện tích móng cọc: 90m2 x 30% = 27 m2
- Diện tích Tầng 1: 90m2 x 100% = 90 m2
- Diện tích Tầng 2: 90m2 x 100% = 90 m2
- Diện tích Mái bằng BTCT: 90m2 x 50% = 45 m2
=>Tổng diện tích: 27 + 90 + 90 + 45 = 252 m2.
Hiện nay đơn giá trên thị trường chia làm 2 gói:
- Đơn giá xây dựng phần thô và nhân công hoàn thiện: 500.000 VNĐ - 5.000.000 VNĐ/m2.
- Đơn giá xây nhà trọn gói: 6.000.000 VNĐ - 10.000.000 VNĐ/m2.
Áp dụng công thức
Chi phí xây nhà 2 tầng 6x15m = Tổng diện tích xây dựng x Đơn giá = 252 m2 x 7.000.000 VNĐ = 1.7614.600.000 VNĐ
Không gian sống nhà 2 tầng sang trọng
Khám phá thêm: Mẫu thiết kế nhà biệt thự 2 tầng 100m2 mái thái hiện đại
4. Phân tích vẻ đẹp ngoại thất công trình và cách bố trí mặt bằng công năng nhà 2 tầng 6x15m
Với mặt tiền 6m thì phong cách hiện đại là thứ được anh Vĩnh lựa chọn.
4.1. Vẻ đẹp ngoại thất công trình
Thoạt nhìn phối cảnh KTS đã sử dụng các mảng khối vuông vắn, bất đối xứng tạo sự năng động, trẻ trung. Khối ban công tầng 2 được thiết kế đua ra phía trước bằng với sảnh tầng 1 để tăng diện tích sử dụng và tạo điểm nhấn che nắng cho tầng trệt. Tông màu chủ đạo ở đây được lựa chọn là trắng sứ kết hợp với xám ghi và nâu gỗ. Đây là những gam màu trung tính, không bị lỗi thời theo thời gian và tạo cảm giác không gian rộng mở hơn.
Đối với vật liệu để tối ưu chi phí xây nhà 2 tầng 6x15m KTS đã sử dụng các loại vật liệu đơn giản. Tối ưu hóa khả năng đón sáng bằng hệ thống cửa sổ, cửa chính làm từ nhôm Xingfa kết hợp kính cường lực. Khu vực mặt tiền tầng 2 có sử dụng thêm các lam giả gỗ màu nâu giúp mặt tiền thêm phần ấm cúng, sang trọng.
Phong cách thiết kế hiện đại trong mẫu nhà 2 tầng mái bằng
Với mặt tiền 6m cũng cho phép KTS Angcovat thoải mái bố trí thêm hệ thống bồn hoa, cây cảnh ở ban công lầu 1 và khu vực cổng sân trước giúp làm mềm các khối bê tông thô cứng và mang thiên nhiên vào không gian sống nhà anh Vinh. Cuối cùng khu vực cổng và tường rào cũng được thiết kế đồng bộ với nhà, cổng sắt được phun sơn tĩnh điện kết hợp với tường bê tông tạo ra sự kiên cố và an toàn.
4.2. Hình ảnh thi công thực tế
Để quá trình xây dựng diễn ra được suôn sẻ thì anh Vinh đã tìm hiểu rõ về quy trình thi công. Dưới đây là từng giai đoạn thực tế:
- Thi công phần móng: Giai đoạn này quyết định sự bền vững của cả công trình.
- Thi công phần thân: Đây là giai đoạn ngôi nhà bắt đầu hình thành hình khối rõ ràng . Tiến độ bao gồm: lắp dựng cốt thép, cốt pha cột, đổ bê tông cột; xây tường bao, tường ngăn, thi công cốt pha,..
- Thi công phần hoàn thiện: Các công việc bao gồm: tô trát tường trong ngoài; chạy đường ống điện nước âm tường; cán nền, ốp lát gạch,..
Mặt bằng hiện trạng thi công nhà 2 tầng 6x15m
4.3. Phân tích mặt bằng công năng
Việc phân bổ mặt bằng cũng là một trong các yếu tố chính ảnh hưởng tới chi phí xây nhà 2 tầng 6x15m.
Có thể bạn quan tâm: Nhà 8x15m 2 tầng mái Nhật
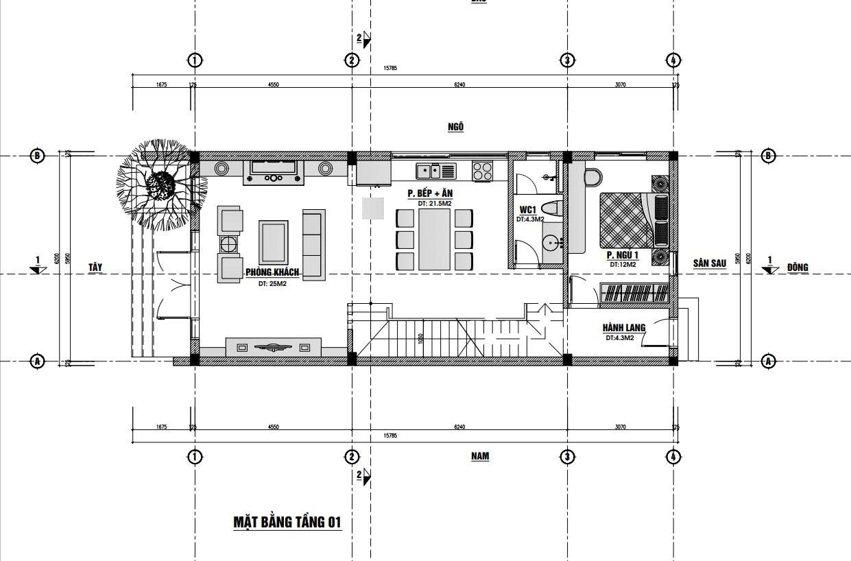
Công năng mặt bằng tầng 1:
- Phân sân trước: Diện tích đủ để anh Vinh để xe cho cả gia đình, trồng thêm một ít cây xanh hoặc làm tiểu cảnh.
- Phòng khách: Bước qua sảnh chính sẽ là không gian phòng khách rộng rãi với mặt tiền 6m thì gia chủ hoàn toàn có thể bố trí được một bộ sofa rộng, kệ tivi,..
- Cầu thang và giếng trời: Cầu thang được đặt giữa nhà để chia đôi không gian. Muốn tối ưu diện tích, KTS đã bố trí thêm một WC chung nhỏ gọn ngay dưới gầm cầu thang.
- Phòng bếp + bàn ăn: Bếp được thiết kế hình chữ L với bộ bàn ghế đặt ở giữa.
- Phòng ngủ: Dành cho ông bà lớn tuổi hoặc trẻ nhỏ, hạn chế việc leo cầu thang lên tầng 2.
- Sâu sau: Đây là khu vực gia chủ có thể làm phòng phơi đồ, máy giặt,..
Mặt bằng tầng 1 công trình nhà 2 tầng 6x15m2
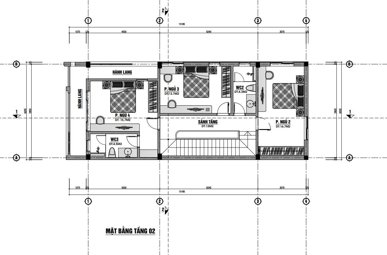
Công năng mặt bằng tầng 2: Phòng ngủ 15.7m2, wc 4.5m2, phòng ngủ 13.7m2, wc 4.3m2, sảnh tầng 13m2, phòng ngủ 16.7m2.
- Phòng ngủ master: Nằm ở phía trước nhà, hướng ra ban công mặt tiền. Đây là phòng dành cho vợ chồng anh ĩnh được tích hợp thêm cả vệ sinh khép kín bên trong, có tủ quần áo âm tường và khu vực bàn trang điểm làm việc. Hệ cửa kính giúp căn phòng ngập tràn ánh sáng.
- Phòng ngủ con: Được đặt ở phần nửa sau căn nhà có đầy đủ đồ công năng, đồ nội thất.
- WC chung: Đặt cạnh cầu thang, phục vụ nhu cầu sinh hoạt cho 2 phòng ngủ bé.
Mặt bằng tầng 2 công trình nhà 2 tầng 6x15m2
Lời kết.
Việc tính toán chi phí xây nhà 2 tầng 6x15m khá đơn giản nếu bạn nắm được rõ công thức tính diện tích, mặt bằng và giá vật tư. Với ngân sách dao động khoảng 1.5 tỷ thì bạn hoàn toàn có thể sở hữu cho mình tổ ấm 90m2 hiện đại với đầy đủ tiện nghi. Liên hệ ngay cho Angcovat để sớm được tư vấn một công trình hoàn mỹ nhé.
Gửi yêu cầu tư vấn
Khách hàng vui lòng gọi điện vào hotline, Gửi yêu cầu tư vấn, Comment yêu cầu tư vấn dưới mỗi bài viết. Chúng tôi sẽ xử lý và trả lời yêu cầu tư vấn khách hàng trong 8h làm việc.
CÔNG TY CỔ PHẦN KIẾN TRÚC VÀ ĐẦU TƯ XÂY DỰNG ANG
Trụ sở: 211 - Khương Trung - Thanh Xuân - Hà Nội
Văn phòng: Số 137 Nguyễn Xiển - Thanh Xuân - Hà Nội.
Chi nhánh HCM: KDC Thới An, phường Thới An ,quận 12, TPHCM.
Chi nhánh Đà Nẵng: 268-270 đường 30/4, Quận Hải Châu, TP Đà Nẵng.
Hotline: 0988030680 - Tel: 02466622256 - Email: angcovat.vn@gmail.com

Bình luận