Thiết kế nhà hàng sân vườn đẹp phong cách Hội An mộc mạc và giàu cảm xúc BT111225
https://angcovat.vn/biet-thu/biet-thu-nha-vuon-1-tang/4990-thiet-ke-nha-hang-san-vuon-dep-phong-cach-hoi-an-bt111225.html#sigProId4ec080cf70
Thông tin chung về dự án thiết kế nhà hàng sân vườn đẹp phong cách Hội An
|
BT111225 |
|
1 tầng |
|
Bà Ánh - công ty Cổ phần Nông nghiệp LEBON |
|
Hội An |
|
1000M2 |
|
Kiến trúc sư Angcovat |
|
2025 |
|
- Thiết kế khu lò Pizza quy mô 1,5 tầng - Thiết kế không gian kết nối - Thiết kế nhà bếp mới quy mô 1 tầng |

Khung ảnh hài hòa giữa kiến trúc cổ kính và thiên nhiên xanh mát trong thiết kế nhà hàng sân vườn đẹp phong cách Hội An

Cổng chào thiết kế mộc mạc thể hiện lời chào đón nhẹ nhàng dẫn lối thực khách bước vào không gian ấm cúng bên trong nhà hàng

Lựa chon vật liệu mộc mạc, thân thuộc hài hòa với kiến trúc cổ kính tổng thể

Lối đi kết nối liền mạch các không gian nhà hàng đan xen tiểu cảnh đẹp mắt

Sử dụng hệ mái bằng kính trong suốt giúp tối ưu ánh sáng, tạo sự thoáng đãng

Không gian ăn uống ngoài trời thiết kế mở, giúp tăng sự kết nối với cảnh quan xung quanh

Vật liệu lựa chọn chất liệu gỗ, hài hòa với kiến trúc cổ kính tổng thể

Thiết kế ao sen vừa tạo điểm nhấn sinh động lại mang đến cảm giác thư giãn, thoải mái cho các khách hàng

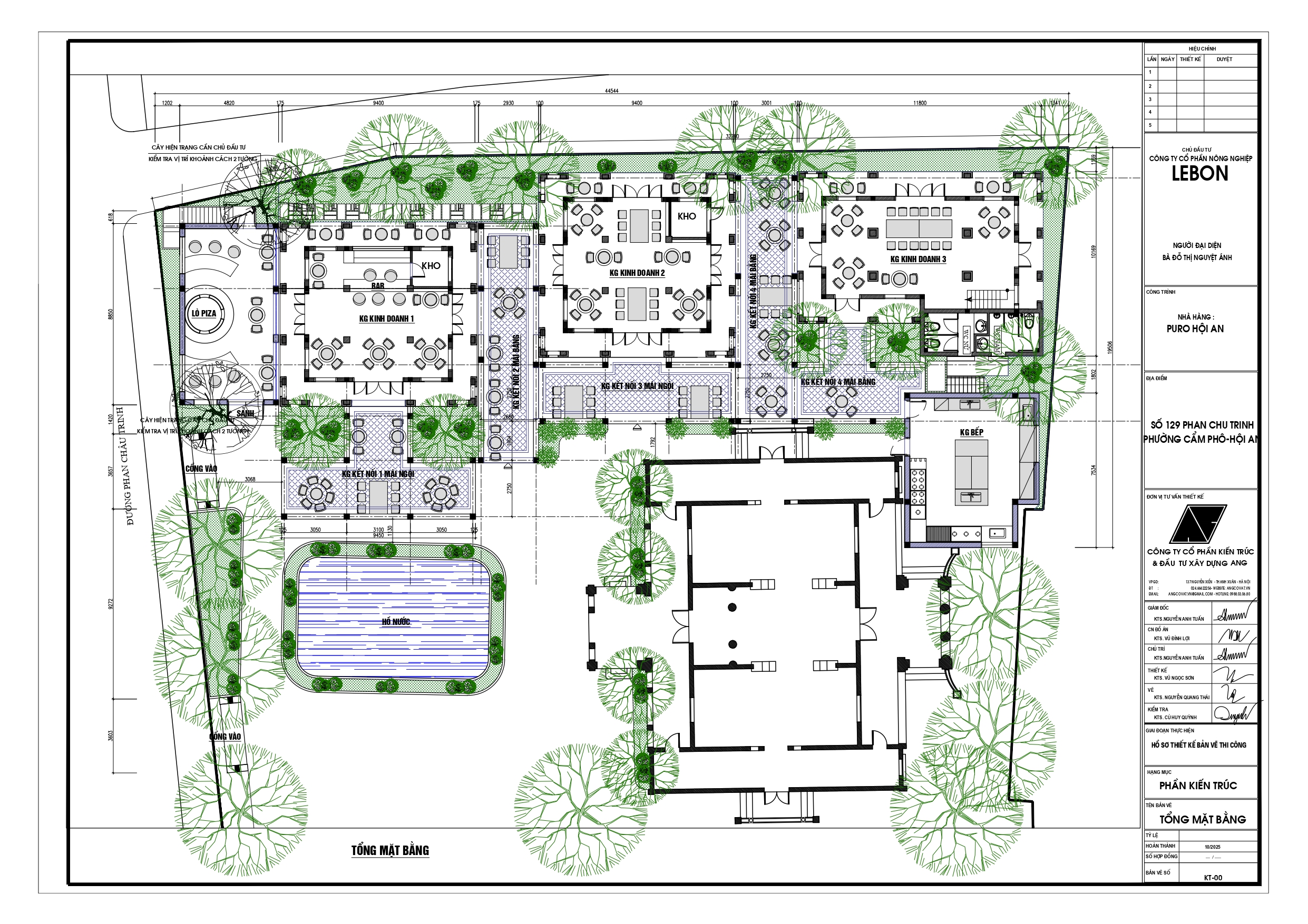
Tổng mặt bằng nhà hàng sân vườn đẹp phong cách Hội An bố trí khoa học
Gửi yêu cầu tư vấn
Khách hàng vui lòng gọi điện vào hotline, Gửi yêu cầu tư vấn, Comment yêu cầu tư vấn dưới mỗi bài viết. Chúng tôi sẽ xử lý và trả lời yêu cầu tư vấn khách hàng trong 8h làm việc.
CÔNG TY CỔ PHẦN KIẾN TRÚC VÀ ĐẦU TƯ XÂY DỰNG ANG
Trụ sở: 211 - Khương Trung - Thanh Xuân - Hà Nội
Văn phòng: Số 137 Nguyễn Xiển - Thanh Xuân - Hà Nội.
Chi nhánh HCM: KDC Thới An, phường Thới An ,quận 12, TPHCM.
Chi nhánh Đà Nẵng: 268-270 đường 30/4, Quận Hải Châu, TP Đà Nẵng.
Hotline: 0988030680 - Tel: 02466622256 - Email: angcovat.vn@gmail.com

Bình luận