Cập nhật mới nhất 2026: "Xây nhà 2 tầng 4 phòng ngủ bao nhiêu tiền?" BT301225
https://angcovat.vn/biet-thu/biet-thu-2-tang/5004-cap-nhat-moi-nhat-2026-xay-nha-2-tang-4-phong-ngu-bao-nhieu-tien-bt301225.html#sigProId83eaf4c5e8
“Xây nhà 2 tầng 4 phòng ngủ bao nhiêu tiền?” là câu hỏi được rất nhiều gia chủ quan tâm khi có ý định xây nhà cho gia đình đông thành viên. Với diện tích 110m2/sàn, mẫu nhà 2 tầng mang đến lợi thế lớn trong việc tổ chức mặt bằng khoa học, phân chia công năng rõ ràng, mở ra không gian sinh hoạt vừa tiện nghi, riêng tư mà vẫn đảm bảo tính thông thoáng.
Trên thực tế, chi phí xây nhà 2 tầng 4 phòng ngủ không cố định mà phụ thuộc vào nhiều yếu tố như phong cách kiến trúc, vật liệu sử dụng, vị trí xây dựng và mức độ hoàn thiện. Trong bài viết dưới đây, chúng tôi sẽ giới thiệu cách dự toán ngân sách xây dựng cụ thể, dễ hiểu, từ đó giúp bạn sớm tìm ra được giải pháp thiết kế phù hợp với nhu cầu và tài chính của gia đình.
Thông tin chung về thiết kế nhà ở 2 tầng hiện đại mái nhật 4 phòng ngủ
|
BT301225 |
|
2 tầng |
|
Ông Hoàng Văn Long |
|
xã Cồn Thoi - Kim Sơn - Ninh Bình (nay là xã Bình Minh) |
|
9m |
|
12m |
|
350m2 |
|
Kiến trúc sư Angcovat |
|
2025 |
|
Giao động 1,5 - 1,7 tỷ đồng |
|
- Diện tích sử dụng 110m2/sàn Bao gồm: +) Tầng 1: Phòng khách 29m2; Bếp + ăn 19.5m2; Phòng ngủ 1 14.2m2; WC1 4m2; Tiền sảnh 5,6m2. +) Tầng 2: Phòng ngủ 2 14.2m2; Phòng ngủ 3 15.3m2; Phòng ngủ 4 23m2; WC2 4m2; WC3 5.5m2. |
Các hạng mục chi phí cần quan tâm khi xác định “Xây nhà 2 tầng 4 phòng ngủ bao nhiêu tiền”
Việc tính toán chi phí xây nhà chi tiết là yếu tố then chốt hỗ trợ gia chủ kiểm soát tốt nguồn tiền, hạn chế tối đa các khoản phát sinh, đồng thời đảm bảo tiến độ thi công diễn ra thuận lợi và nhanh chóng.
Đối với mẫu nhà 2 tầng 110m2, tổng chi phí đầu tư sẽ có sự chênh lệch tùy theo mức độ hoàn thiện công trình. Cụ thể:
- Thi công phần thô nhà 2 tầng 4 phòng ngủ (nhân công + vật tư thô):
Đơn giá tham khảo 2.600.000 - 3.000.000 VNĐ/m2 => tương đương tổng chi phí khoảng 850 - 900 triệu đồng. - Thi công trọn gói nhà 2 tầng 4 phòng ngủ (chìa khóa trao tay):
Đơn giá tham khảo 4.800.000 - 6.000.000 VNĐ/m2 => tương đương tổng chi phí khoảng 1,5 - 1,7 tỷ đồng.
Sau đây chúng tôi sẽ liệt kê chi tiết từng hạng mục chi phí xây nhà 2 tầng:

Giải đáp "Xây nhà 2 tầng 4 phòng ngủ bao nhiêu tiền?"
1. Báo giá thiết kế xây nhà 2 tầng
|
120.000đ/m2 sàn |
|
120.000đ/m2 sàn |
|
150.000đ/m2 sàn |
* Ưu đãi thiết kế đặc biệt tại Angcovat
- Công trình có diện tích > 500m²: Giảm 10% so với báo giá.
- Thiết kế từ 2 công trình trở lên: Giảm 10%.
- Giá trị hợp đồng tối thiểu: 16.000.000đ/công trình
- Miễn phí 100%:
- Quy hoạch định hướng cảnh quan sân vườn.
- Hồ sơ thiết kế cổng và hàng rào.
2. Vật liệu phần thô
|
Vật liệu |
Khối lượng ước tính |
Ghi chú |
|
Xi măng |
~ 380 - 420 bao |
Bao gồm móng, cột - dầm - sàn, xây & tô hoàn thiện |
|
Cát xây + cát tô |
~ 120 - 135 m3 |
Cát vàng + cát mịn, đã tính hao hụt |
|
Đá 1×2 |
~ 95 - 105 m3 |
Đổ móng, dầm, cột, sàn 2 tầng |
|
Thép cây Φ6 – Φ20 |
~ 24 - 27 tấn |
Kết cấu BTCT tiêu chuẩn |
|
Gạch xây |
~ 48.000 - 55.000 viên |
Tường bao + tường ngăn dày 110 & 220 |
|
Mái Nhật (kèo + ngói) |
~ 130 - 145 m2 |
Tính theo độ dốc mái Nhật 30 - 35° |
3. Vật tư hoàn thiện
|
Vật tư hoàn thiện |
Khối lượng ước tính |
Ghi chú |
|
Gạch lát nền + ốp WC |
~ 240 - 260 m2 |
Lát toàn bộ sàn + ốp tường 3 WC cao 1,8 - 2,4m |
|
Gạch chân đế |
~ 22 - 26 m2 |
Ốp cao 0.6 - 0.8m quanh nhà |
|
Sơn nội - ngoại thất |
~ 850 - 950 m2 |
Đã tính trần, tường trong nhà và mặt ngoài |
|
Trần thạch cao |
~ 170 - 190 m2 |
Trần phòng khách, bếp, phòng ngủ (không tính WC) |
|
Cửa đi + cửa sổ (nhôm kính Xingfa) |
~ 42 - 50 m2 |
Bao gồm cửa trong phòng, cửa ban công, cửa sổ |
|
Cửa chính bằng gỗ lim |
~ 3.5 - 4.0 m |
Lựa chọn cửa gỗ lim Nam Phi |
|
Cầu thang (bậc + lan can) |
1 bộ |
Khoảng 18 - 20 bậc, lan can kính hoặc inox |
|
Thiết bị vệ sinh (3 WC) |
3 bộ |
Bồn cầu, lavabo, sen tắm, phụ kiện |
|
Thiết bị điện (dây, ổ cắm, đèn…) |
Trọn gói |
Theo tiêu chuẩn nhà ở dân dụng |
4. Chi phí khác
|
Chi phí khác (mẫu nhà 2 tầng 4 phòng ngủ) |
Dự toán chi phí |
Ghi chú |
|
Giấy phép xây dựng |
10 - 15 triệu |
Tùy từng địa phương và quy mô xây dựng |
|
Nội thất |
100 - 150 triệu ( cơ bản) 200 - 300 triệu (cao cấp) |
Tùy vào mức độ tài chính để gia chủ lựa chọn phân khúc nội thất phù hợp. Nội thất bao gồm: sofa, giường, kệ, tủ bếp, đèn chùm, rèm cửa, vách ngăn,... |
|
Cảnh quan sân vườn, cổng, hàng rào |
100 - 200 triệu |
Bao gồm: sân lát gạch, tiểu cảnh, hồ cá, giàn hoa pergola, lán để xe, cổng sắt nghệ thuật.... |
|
Chi phí phát sinh |
80 - 150 triệu (3 - 5%) |
Vận chuyển ngõ nhỏ, biến động vật tư và chi phí nhân công theo thị trường,... |
Lập bảng tính chi phí xây nhà 2 tầng 4 phòng ngủ 110m2 theo vật liệu
|
Hạng mục |
Khối lượng / Diện tích |
Đơn giá (VNĐ/m2) |
Thành tiền (VNĐ) |
|
1. Móng và nền |
55 m2 |
2.800.000 - 3.000.000 |
154.000.000 - 165.000.000 |
|
2. Khung, sàn, tường (2 tầng 4 phòng ngủ) |
220 m2 |
2.500.000 - 3.000.000 |
550.000.000 - 660.000.000 |
|
3. Cầu thang + lan can |
2 tầng |
28.000.000 - 30.000.000 |
56.000.000 - 60.000.000 |
|
4. Mái Nhật (vì kèo lợp ngói) |
130 m2 |
2.000.000 - 2.300.000 |
260.000.000 - 299.000.000 |
|
5. Hệ thống điện |
220 m2 |
400.000 - 450.000 |
88.000.000 - 99.000.000 |
|
6. Hệ thống nước |
220 m2 |
400.000 - 450.000 |
88.000.000 - 99.000.000 |
|
7. Cửa đi + cửa sổ (nhôm kính) |
15 m2 |
2.100.000 - 2.600.000 |
31.500.000 - 39.000.000 |
|
8. Sơn nội, ngoại thất |
220 m2 |
480.000 - 530.000 |
105.600.000 - 116.600.000 |
|
9. Lát sàn (gạch, đá) |
220 m2 |
230.000 - 280.000 |
50.600.000 - 61.600.000 |
|
10. Thiết bị vệ sinh (3 phòng) |
3 bộ |
7.500.000 - 8.000.000 |
22.500.000 - 24.000.000 |
|
11. Tủ bếp + nội thất cơ bản |
Trọn gói |
35.000.000 - 40.000.000 |
35.000.000 - 40.000.000 |
|
12. Dự phòng phát sinh |
3 - 5 % | - | 50.000.000 - 100.000.000 |
|
Tổng cộng |
1.490.200.000 - 1.763.200.000 VNĐ |
||
Dựa trên bảng thống kê trên, gia chủ đã có cơ sở rõ ràng để giải đáp thắc mắc “Xây nhà 2 tầng 4 phòng ngủ hết bao nhiêu tiền?”.
Tổng dự toán: Chi phí xây nhà 2 tầng 4 phòng ngủ diện tích sàn ~ 110/m2 giao động 1.490.200.000 - 1.763.200.000 VNĐ (đã bao gồm nội thất và dự phòng phát sinh).
Khám phá hình ảnh 3D thiết kế mẫu nhà 2 tầng mái Nhật 4 phòng ngủ
Mẫu nhà 2 tầng mái Nhật 4 phòng ngủ gây ấn tượng mạnh mẽ nhờ bố cục hài hòa, tỷ lệ cân đối và cách xử lý mặt tiền tinh tế. Không chạy theo sự cầu kỳ hay phô trương, ngôi nhà toát lên nét thanh lịch rất riêng - nơi vẻ đẹp được tạo dựng từ sự chừng mực, tinh giản và chiều sâu thẩm mỹ. Chính sự tiết chế khéo léo trong kiến trúc ấy đã làm nên giá trị sang trọng bền vững, đáp ứng nhu cầu về một không gian sống tiện nghi, ổn định và trường tồn theo thời gian cho gia chủ hiện đại.
Bố cục chữ L ấn tượng
Thiết kế nhà 2 tầng 4 phòng ngủ hiện đại lựa chọn bố cục chữ L không chỉ có công dụng về thẩm mỹ mà còn phát huy khả năng tối ưu công năng và đón sáng, thông gió hiệu quả. Khác với những mẫu nhà khối hộp đơn thuần, hình dáng chữ L tạo nên chiều sâu thị giác nhờ khoảng lùi kiến trúc phía sau, mở ra “không gian sáng tạo” để kiến trúc sư linh hoạt phối hợp vật liệu, màu sắc và các mảng đặc - rỗng một cách tinh tế.
Theo hình khối này, các khu vực sinh hoạt được tổ chức khoa học, phân tách hợp lý giữa không gian chung và riêng, đảm bảo sự thuận tiện trong sinh hoạt hàng ngày mà vẫn giữ được tính riêng tư cần thiết. Đồng thời, phần diện tích trống có thể tận dụng làm sân chơi, bố trí tiểu cảnh, chỗ đỗ xe, giúp nâng cao trải nghiệm sống tiện nghi cho gia đình.
Ngoài ra, với cấu trúc đua - thụt đặc trưng, thiết kế còn hỗ trợ tối đa quá trình thu hút ánh sáng và lưu thông không khí tự nhiên, giữ cho không gian trong nhà luôn thông thoáng, dễ chịu, tạo cảm giác thư giãn và thoải mái cho gia chủ trong mọi sinh hoạt thường ngày.

Sử dụng hệ mái Nhật vừa tăng sự cao ráo, uyển chuyển vừa phát huy công năng thoát nước, chống nóng hiệu quả
Dấu ấn hiện đại trong từng đường nét
Ngôn ngữ hiện đại đặc trưng trong mẫu nhà 2 tầng 4 phòng ngủ được tác giả thể hiện khéo léo thông qua các đường nét mạch lạc, hình khối rõ ràng và tỷ lệ kiến trúc cân đối. Thiết kế lược bỏ các chi tiết trang trí cầu kỳ, tập trung vào những mảng tường phẳng khỏe khoắn, tạo nên tổng thể kiến trúc rõ ràng, mạch lạc. Nhờ cách phối hợp linh hoạt các mảng màu sắc và vật liệu tương phản nhẹ nhàng giúp ngôi nhà tạo được chiều sâu về thẩm mỹ, không hề có cảm giác đơn điệu của các khối hình vuông vức mà ngược lại còn toát lên nét đẹp nổi bật và hiện đại.
Ban công được thiết kế đua rộng, mở ra không gian thoáng đãng, tối ưu khả năng đón ánh sáng và gió trời tự nhiên, mang lại cảm giác thư thái, dễ chịu. Hệ giàn hoa pergola mềm mại buông rủ phía dưới ban công không chỉ tăng giá trị thẩm mỹ mà còn tạo nên góc thư giãn lý tưởng, nơi các thành viên có thể dừng chân ngắm cảnh và tận hưởng bầu không khí trong lành, mát mẻ.
Khu vực sảnh hiên được kiến trúc sư khéo léo tạo hình vòm, mang đến nét đẹp uyển chuyển nhẹ nhàng cho tổng thể khối nhà. Đây được xem là khoảng đệm chuyển tiếp tinh tế giữa không gian nội thất và cảnh quan bên ngoài, vừa tăng sự kết nối với thiên nhiên, vừa tôn lên vẻ bề thế của mặt tiền, góp phần hoàn thiện diện mạo kiến trúc hài hòa và sang trọng.

Kiến trúc hiện đại pha chút truyền thống Á Đông mang đến vẻ đẹp sang trọng, thu hút
Thiết kế mái Nhật thanh thoát, bền đẹp
Thiết kế sử dụng hệ mái Nhật với độ dốc vừa phải giúp ngôi nhà giảm bớt cảm giác trống trải, đồng thời mang đến tổng thể kiến trúc cân đối và hài hòa hơn. Những lớp ngói lượn sóng được xếp chồng ngay ngắn, đều đặn, tạo nên nhịp điệu kiến trúc nhẹ nhàng, vừa tôn lên vẻ bề thế, sang trọng, mà vẫn giữ được sự thanh thoát, tinh tế cần có.
Với cấu trúc chóp nhọn và độ thoải tỏa đều về các hướng, mái Nhật giúp thoát nước mưa nhanh, hạn chế tình trạng ẩm mốc, rêu phong, bảo vệ công trình bền bỉ theo thời gian. Đồng thời độ cao của mái tạo ra lớp đệm không khí cách nhiệt hiệu quả, góp phần giữ cho không gian bên trong luôn thoáng mát, dễ chịu.
Chính nhờ hệ mái Nhật được thiết kế hợp lý mà mẫu nhà 2 tầng 4 phòng ngủ 110m2 phong cách hiện đại được hoàn thiện trọn vẹn, đáp ứng hài hòa cả yếu tố thẩm mỹ lẫn công năng sử dụng.

Mẫu nhà 2 tầng mái Nhật 4 phòng ngủ kết hợp gam màu trung tính nhẹ nhàng nhưng tinh tế
Kết hợp linh hoạt các vật liệu hoàn thiện
Vật liệu sử dụng trong mẫu nhà 2 tầng 4 phòng ngủ được lựa chọn theo tiêu chí đơn giản - hiệu quả - tối ưu chi phí.
- Chất liệu kính xingfa áp dụng đồng bộ cho hệ thống cửa đi, cửa sổ giúp tối ưu khả năng lấy sáng và thông gió tự nhiên, đồng thời mở rộng tầm nhìn, mang lại cảm giác không gian rộng rãi và thoáng đãng hơn cho ngôi nhà.
- Cửa chính lựa chọn thiết kế vật liệu gỗ Nam Phi nguyên khối vừa làm tăng sự bề thế, nổi bật cho mặt tiền lại hạn chế tác động gay gắt của nắng chiếu, đảm bảo không gian sinh hoạt bên trong luôn mát mẻ, dễ chịu.
- Phần lan can ban công và giàn hoa pergola sử dụng sắt sơn tĩnh điện với thiết kế gọn gàng, tinh tế, không chỉ phù hợp với kiến trúc hiện đại mà còn đảm bảo độ bền cao khi sử dụng ngoài trời.
- Khu vực chân đế ngôi nhà được ốp đá tự nhiên toàn bộ, vừa có tác dụng bảo vệ công trình khỏi bụi bẩn, ẩm ướt, vừa gia tăng cảm giác chắc chắn, vững chãi cho tổng thể kiến trúc.
Chỉ từ những vật liệu phổ biến, dễ dàng tìm kiếm trên thị trường mà KTS đã áp dụng hiệu quả vào mẫu nhà 2 tầng mái Nhật 4 phòng ngủ, vừa đáp ứng nét đẹp thẩm mỹ sang trọng vừa phù hợp với túi tiền của nhiều gia đình hiện nay.

Thiết kế nhà 2 tầng chữ L tận dụng được khoảng diện tích làm sân chơi
Bảng màu trung tính tươi sáng, hài hòa
Hướng tới giá trị sử dụng bền vững và thẩm mỹ lâu dài, mẫu nhà 2 tầng 4 phòng ngủ ưu tiên lựa chọn bảng màu trung tính với các gam trắng - xanh ghi - đen làm chủ đạo. Sự phối hợp màu sắc này mang đến cảm giác nhẹ nhàng, tinh tế, đồng thời tạo nên vẻ đẹp sang trọng, hiện đại mà không lo bị lỗi thời theo thời gian.
Tông trắng tinh khôi đóng vai trò làm nền, giúp ngôi nhà trông luôn nổi bật và sáng sủa, trong khi sắc xanh và đen được sử dụng như điểm nhấn trang trí, tạo nên sự tương phản thị giác và giúp tôn lên các đường nét thiết kế của kiến trúc hiện đại.
Từng màu sắc đều đảm nhiệm chức năng thẩm mỹ riêng, góp phần hoàn thiện diện mạo sang trọng, trẻ trung và phù hợp xu thế của mẫu nhà 2 tầng mái Nhật 110m2.
Bản vẽ thiết kế nhà 2 tầng 4 phòng ngủ bố trí khoa học
Với công năng 4 phòng ngủ, phương án thiết kế được triển khai theo hướng phân bổ không gian thông minh trên 2 tầng, đảm bảo sự mạch lạc trong sinh hoạt và tối ưu trải nghiệm sử dụng hằng ngày. Mỗi khu vực chức năng đều được tính toán kỹ lưỡng về vị trí, diện tích và mối liên hệ không gian, nhằm đáp ứng đầy đủ nhu cầu sử dụng, mang đến không gian sinh hoạt tiện nghi, riêng tư và thông thoáng.
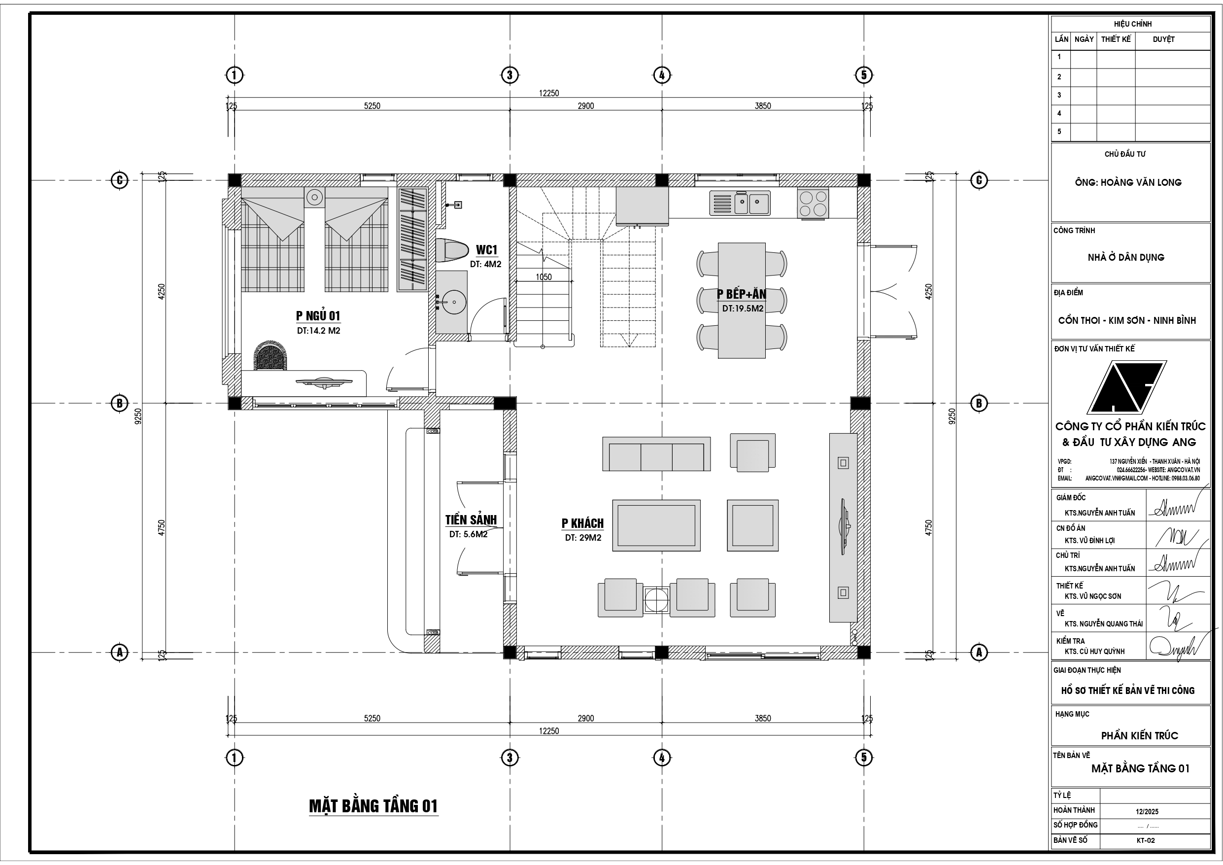
Công năng tầng 1
Mặt bằng tầng 1 của mẫu nhà 2 tầng 4 phòng ngủ bao gồm: Phòng khách 29m2; Bếp + ăn 19.5m2; Phòng ngủ 1 14.2m2; WC1 4m2; Tiền sảnh 5,6m2.
Tại đây, thiết kế ưu tiên bố trí các phòng chức năng cơ bản nhằm tạo nên không gian sinh hoạt chung kết nối liền mạch, thuận tiện cho gia chủ.
- Phòng khách: vị trí trung tâm, tiếp giáp với tiền sảnh tạo không gian đón tiếp khách trang trọng và lịch sự.
- Bếp + ăn: Thiết kế liên thông trực tiếp mang đến cảm giác rộng rãi và thoáng đãng, bố trí cửa phụ ra sân sau gia tăng tính tiện nghi cho quá trình sinh hoạt hàng ngày.
- Phòng ngủ 1: Phù hợp làm phòng ngủ cho ông bà hoặc khách ghé thăm, vị trí tầng trệt hỗ trợ quá trình đi lại được thuận tiện và dễ dàng hơn.
- WC chung: Bố trí cạnh cầu thang, vừa tối ưu diện tích vừa kín đáo, riêng tư.

Mặt bằng công năng tầng 1
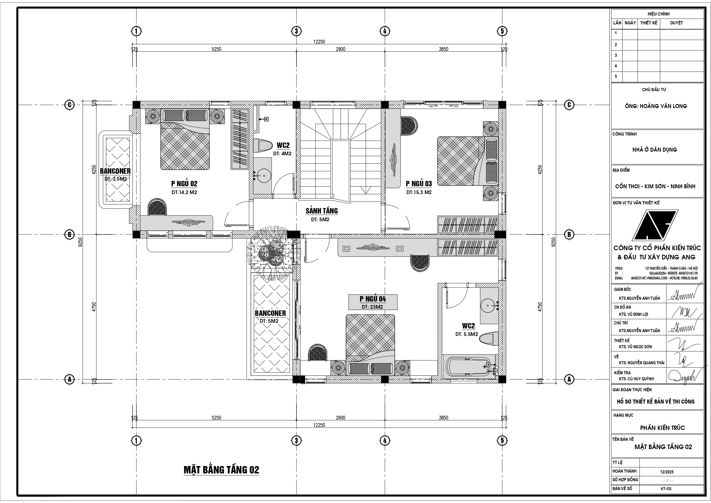
Công năng tầng 2
Mặt bằng tầng 2 bao gồm: Phòng ngủ 2 14.2m2; Phòng ngủ 3 15.3m2; Phòng ngủ 4 23m2; WC2 4m2; WC3 5.5m2.
Không gian tầng 2 tập trung dành cho các phòng ngủ còn lại của gia đình, mang đến không gian nghỉ ngơi riêng tư, yên tĩnh và tách biệt với hoạt động sinh hoạt ồn ào ở tầng trệt.
- Phòng ngủ 2: vị trí phía ngoài, không gian rộng mở với ban công riêng giúp ánh sáng và gió trời dễ dàng bước vào từng ngóc ngách trong phòng.
- Phòng ngủ 3: Lùi vào phía trong, phù hợp là không gian ngủ nghỉ và học tập yên tĩnh của các con.
- Phòng ngủ 4: Có diện tích lớn nhất, đóng vai trò là phòng ngủ master của bố mẹ. Không gian có WC khép kín riêng tư và ban công rộng rãi, tối ưu ánh sáng và thông gió hiệu quả, mang lại cảm giác thoáng đãng và thư giãn cho gia chủ.

Mặt bằng công năng tầng 2
Bài viết trên đây chúng tôi đã giúp bạn giải đáp chi tiết thắc mắc “Xây nhà 2 tầng 4 phòng ngủ bao nhiêu tiền?” cũng như giới thiệu đến bạn mẫu nhà 2 tầng hiện đại mái Nhật sang trọng, tiện nghi và có giá trị sử dụng bền vững theo thời gian.
Đừng ngần ngại liên hệ với chúng tôi qua Hotline: 0988 030 680 để được hỗ trợ tư vấn miễn phí nhé!
Gửi yêu cầu tư vấn
Khách hàng vui lòng gọi điện vào hotline, Gửi yêu cầu tư vấn, Comment yêu cầu tư vấn dưới mỗi bài viết. Chúng tôi sẽ xử lý và trả lời yêu cầu tư vấn khách hàng trong 8h làm việc.
CÔNG TY CỔ PHẦN KIẾN TRÚC VÀ ĐẦU TƯ XÂY DỰNG ANG
Trụ sở: 211 - Khương Trung - Thanh Xuân - Hà Nội
Văn phòng: Số 137 Nguyễn Xiển - Thanh Xuân - Hà Nội.
Chi nhánh HCM: KDC Thới An, phường Thới An ,quận 12, TPHCM.
Chi nhánh Đà Nẵng: 268-270 đường 30/4, Quận Hải Châu, TP Đà Nẵng.
Hotline: 0988030680 - Tel: 02466622256 - Email: angcovat.vn@gmail.com

Bình luận