Thiết kế mẫu nhà mái Nhật 2 tầng hiện đại 120m2 dẫn đầu xu hướng BT130226
https://angcovat.vn/biet-thu/biet-thu-2-tang/5042-thiet-ke-mau-nha-mai-nhat-2-tang-hien-dai-120m2-dan-dau-xu-huong-bt130226.html#sigProId4866cf2791
Giữa nhịp sống hiện đại, một ngôi nhà hoàn hảo không chỉ là nơi ở mà còn là không gian nghỉ ngơi và tái tạo năng lượng cho cả gia đình. Mẫu nhà mái Nhật 2 tầng hiện đại 120m2 chính là lựa chọn tiêu biểu mang đến cảm giác thoải mái, nhẹ nhàng nhờ thiết kế tinh gọn, công năng hài hòa cùng không gian mở đón gió và nắng tự nhiên. Trên diện tích 120m2 sàn cùng kết cấu 2 tầng, mẫu nhà phân bổ mặt bằng một cách hợp lý nhằm đảm bảo sự rộng rãi, tiện nghi và hài hòa thẩm mỹ. Cùng với đó, cách kết hợp hệ mái Nhật cùng kiến trúc hiện đại đầy tinh tế đã làm nên sức hút nổi bật và diện mạo ấn tượng cho công trình. Ngay sau đây hãy cùng Angcovat tìm hiểu chi tiết thông tin về mẫu nhà này nhé!
1. Khái quát thông tin về mẫu nhà mái Nhật 2 tầng hiện đại 120m2
|
BT130226 |
|
2 tầng |
|
Ông Nguyễn Bá Minh |
|
Thôn Đồng Văn - Xã An Phú - Huyện Mỹ Đức - TP Hà nội |
|
14m |
|
10m |
|
300m2 |
|
Kiến trúc sư Angcovat |
|
2026 |
|
|
|
- Diện tích sử dụng 120m2/sàn - Thông số công năng:
+Tầng 2: Phòng ngủ 3 17.5m2, phòng ngủ 2 16m2, ban công 3.2m2, ban công 3.7m2, ban công 6m2, sân chơi 20m2, phòng ngủ 4 17m2, SHC 16.5m2, wc 4.2m2, wc 4m2. |
Báo giá chi phí xây nhà mái Nhật 2 tầng hiện đại 120m2 trọn gói mới nhất 2026
Chi phí xây dựng luôn là vấn đề được các gia chủ đặc biệt quan tâm khi tìm hiểu về mẫu nhà mái Nhật 2 tầng hiện đại 120m2. Trên thực tế, đơn giá thi công có thể thay đổi theo từng thời điểm do biến động giá vật liệu, nhân công và thị trường xây dựng. Vì vậy, việc cập nhật dự toán theo mặt bằng giá mới là điều cần thiết để chủ động kế hoạch tài chính. Ngay sau đây, chúng tôi sẽ hướng dẫn bạn cách tính chi phí xây nhà mái Nhật 2 tầng hiện đại theo đơn giá cập nhật năm 2026.
Công thức tính:
Tổng chi phí = Tổng diện tích x Đơn giá/m2
- Đơn giá thi công nhà 2 tầng hiện hành năm 2026:
- Đơn giá phần thô + nhân công: 3 - 3,8 triệu/m2.
- Đơn giá thi công trọn gói: 6 - 7,5 triệu/m2.
- Xác định tổng diện tích xây dựng thực tế:
- Diện tích phần móng = 50% x DT sàn = 60m2
- Diện tích tầng 1 = Diện tích tầng 2 = 120m2
- Diện tích mái Nhật = 70% x DT sàn = 84m2
=> Tổng diện tích = 60 + 120 + 120 + 84 = 384m2
- Chi phí xây dựng:
- Chi phí xây nhà mái Nhật 2 tầng hiện đại 120m2 phần thô = 384m2 x 3 - 3,8 triệu/m2 ~ 1,15 - 1,45 tỷ đồng.
- Chi phí xây nhà mái Nhật 2 tầng hiện đại 120m2 trọn gói (chìa khóa trao tay) = 384m2 x 6 - 7,5 triệu/m2 ~ 2,3 - 2,88 tỷ đồng.
Cập nhật bảng chi phí thi công nhà mái Nhật 2 tầng hiện đại 120m2 năm 2026
|
Hạng mục |
Khối lượng / Diện tích |
Đơn giá (VNĐ) |
Thành tiền (VNĐ) |
|
1. Móng (móng băng cơ bản) |
120m² x 50% |
3.000.000 |
180.000.000 |
|
2. Khung, sàn, tường (2 tầng) |
240m² |
3.600.000 |
864.000.000 |
|
3. Cầu thang, lan can |
1 bộ |
35.000.000 |
35.000.000 |
|
4. Hệ mái Nhật (BTCT + lợp ngói) |
120m² |
1.500.000 |
180.000.000 |
|
5. Hệ thống điện |
240m² |
180.000 |
43.200.000 |
|
6. Hệ thống nước |
240m² |
170.000 |
40.800.000 |
|
7. Cửa đi, cửa sổ (nhôm kính) |
25m² |
2.500.000 |
62.500.000 |
|
8. Sơn nội, ngoại thất |
400m² |
350.000 |
140.000.000 |
|
9. Lát sàn (gạch, đá) |
240m² |
250.000 |
60.000.000 |
|
10. Thiết bị vệ sinh (3 WC) |
3 bộ |
9.000.000 |
27.000.000 |
|
11. Tủ bếp + nội thất cơ bản |
Trọn gói |
100.000.000 |
100.000.000 |
|
12. Gạch hoa gió trang trí |
150 viên |
35.000 |
5.250.000 |
|
13. Lam chắn gỗ trang trí mặt tiền |
15m² |
1.200.000 |
18.000.000 |
|
14. Chi phí thiết kế, hồ sơ xin phép |
Trọn gói |
30.000.000 |
30.000.000 |
|
15. Nhân công & vận chuyển |
Trọn gói |
120.000.000 |
120.000.000 |
|
16. Dự phòng phát sinh (5%) |
5% tổng chi phí |
Tính sau |
88.500.000 |
|
Tổng chi phí xây nhà mái Nhật 2 tầng hiện đại 120m2 năm 2026 dự kiến: ~ 1.993.250.000 VNĐ (bao gồm cả nội thất cơ bản và dự phòng phát sinh). |
|||
Quá trình lên ý tưởng thiết kế mẫu nhà mái Nhật 2 tầng hiện đại 120m2

Kiến trúc ngoại thất nhà phố 2 tầng mái nhật
Mẫu nhà mái Nhật 2 tầng hiện đại 120m2 được hình thành từ mong muốn kiến tạo một không gian sống tiện nghi, thẩm mỹ và bền vững theo thời gian. Đây không chỉ là bài toán về diện tích hay chi phí, mà còn là hành trình hiện thực hóa ước mơ về một tổ ấm khang trang, phù hợp với phong cách sống của gia chủ.
Trong buổi gặp gỡ và trao đổi trực tiếp tại văn phòng 137B Nguyễn Xiển, anh Nguyễn Bá Minh đã chia sẻ mong muốn xây dựng một ngôi nhà 2 tầng hiện đại trên mảnh đất 120m2 tại Mỹ Đức – Hà Nội. Anh đặc biệt đề cao sự trẻ trung trong kiến trúc, không gian mở rộng rãi và khả năng tận dụng tối đa ánh sáng, gió tự nhiên để mang lại cảm giác thông thoáng, dễ chịu cho cả gia đình.
Từ những định hướng rõ ràng đó, đội ngũ KTS Angcovat đã tiến hành khảo sát khu đất, phân tích hiện trạng và đề xuất phương án thiết kế phù hợp. Bản vẽ phác thảo được xây dựng dựa trên các tiêu chí cốt lõi:
- Kiến trúc theo ngôn ngữ hiện đại chủ đạo, hình khối khỏe khoắn và năng động.
- Tối ưu ánh sáng, thông gió tự nhiên thông qua hệ cửa kính lớn và cách tổ chức không gian khoa học.
- Kết hợp hệ mái Nhật nhằm tăng sự thanh thoát, cân đối và nâng cao giá trị thẩm mỹ tổng thể.
Ngay khi nhận được phương án thiết kế, anh Minh không giấu được sự xúc động. Những ý tưởng từng ấp ủ trong suy nghĩ nay đã được thể hiện rõ ràng qua từng đường nét kiến trúc, từng mảng khối và cách bố trí công năng hợp lý. Đó cũng chính là động lực để đội ngũ kiến trúc sư tiếp tục hoàn thiện hồ sơ kỹ thuật chi tiết, đảm bảo công trình khi thi công sẽ giữ trọn vẹn tinh thần thiết kế ban đầu.
>>> Mời các bạn đọc thêm: Tổng hợp hàng trăm mẫu nhà mái Nhật 2 tầng đẹp, bắt kịp xu hướng xây dựng.
Phối cảnh ngoại thất ấn tượng của mẫu nhà mái Nhật 2 tầng 120m2 hiện đại

Nhà biệt thự 2 tầng đẳng cấp tại Hà Nội
Ngôn ngữ kiến trúc hiện đại đặc trưng
Thiết kế nhà mái Nhật 2 tầng 120m2 lựa chọn phong cách hiện đại làm định hướng chủ đạo trong toàn bộ ngôn ngữ kiến trúc. Những chi tiết cầu kỳ, rườm rà được tinh giản tối đa, thay vào đó là hệ hình khối vuông vắn, đường nét mạnh mẽ và bố cục mạch lạc, tạo nên diện mạo trẻ trung, khỏe khoắn và đầy phóng khoáng.
Các khối kiến trúc không được sắp đặt theo một trật tự cứng nhắc mà được kiến trúc sư xử lý linh hoạt với các mảng đua – thụt hợp lý. Cách tổ chức hình khối này giúp công trình có chiều sâu thị giác rõ rệt, đồng thời hạn chế sự đơn điệu thường thấy ở những thiết kế hình hộp truyền thống.
Phần mặt tiền được phân chia cân đối giữa các mảng đặc và rỗng, vừa tăng tính thẩm mỹ vừa hỗ trợ quá trình lưu thông không khí tự nhiên. Lối thiết kế mở với hệ cửa kính lớn, ban công thoáng và khoảng đệm hợp lý giúp không gian bên trong luôn tràn ngập ánh sáng, mang lại cảm giác rộng rãi và dễ chịu cho toàn bộ ngôi nhà.
>>> Tham khảo thêm các mẫu nhà biệt thự 2 tầng 120m2 vừa đẹp vừa chuẩn công năng tiện nghi.
Sử dụng hệ mái Nhật thanh thoát, tinh tế
Hệ mái Nhật được xem là chi tiết tạo dấu ấn đặc trưng cho mẫu nhà mái Nhật 2 tầng hiện đại 120m2. Phần mái có độ dốc vừa phải, đỉnh mái cao nhẹ và các mặt mái thoải đều về bốn phía, mang đến sự cân xứng và hài hòa cho tổng thể công trình. Nhờ tỷ lệ mái được tính toán kỹ lưỡng, ngôi nhà không chỉ trở nên cao ráo, bề thế hơn mà còn giữ được nét thanh lịch, tinh tế đúng với tinh thần kiến trúc hiện đại.
Sự kết hợp giữa thân nhà vuông vắn và hệ mái dốc nhẹ giúp công trình tránh được cảm giác khô cứng, đồng thời tăng chiều cao thị giác một cách tự nhiên.
Không dừng lại ở giá trị thẩm mỹ, mái Nhật còn phát huy tối đa công năng sử dụng. Kết cấu mái giúp nước mưa được thoát nhanh chóng, hạn chế tình trạng thấm dột, ẩm mốc hay rêu phong bám trên bề mặt tường. Khoảng đua mái rộng còn tạo lớp che chắn tự nhiên cho mặt tiền, bảo vệ hệ cửa và tường nhà khỏi tác động trực tiếp của nắng mưa, giúp đảm bảo tính thẩm mỹ lâu bền cho công trình.
Khoảng không giữa mái và trần nhà tạo nên lớp đệm không khí, hỗ trợ cách nhiệt và chống nóng hiệu quả. Nhờ vậy, không gian sinh hoạt bên trong luôn duy trì được sự thông thoáng, mát mẻ vào mùa hè và ấm áp vào mùa đông, góp phần nâng cao chất lượng sống cho gia đình.

Nhà đẹp 2 tầng mái Nhật gam màu trắng
Ứng dụng vật liệu hoàn thiện đa dạng và linh hoạt
Vật liệu hoàn thiện đóng vai trò quan trọng trong việc định hình thẩm mỹ và đảm bảo độ bền vững cho mẫu nhà mái Nhật 2 tầng hiện đại 120m2. Sự kết hợp hài hòa giữa các chất liệu cao cấp không chỉ nâng tầm diện mạo công trình mà còn gia tăng giá trị sử dụng lâu dài.
Tại khu vực mặt tiền, xen kẽ các mảng tường bê tông sơn trắng chủ đạo, kiến trúc sư khéo léo ốp gạch granite vân đá màu xám cao cấp để tạo điểm nhấn sang trọng và hiện đại. Lớp vật liệu này không chỉ giúp tổng thể thêm phần tinh tế mà còn phát huy hiệu quả trong việc hạn chế tác động gay gắt của nắng chiều, đồng thời chống bám bẩn và giảm ảnh hưởng của mưa hắt.
Cửa chính được chế tác từ gỗ tự nhiên nguyên khối, mang đến cảm giác bề thế và đẳng cấp cho khu vực tiền sảnh. Trong khi đó, toàn bộ hệ cửa sổ và cửa phụ sử dụng nhôm kính Xingfa cao cấp, góp phần mở rộng tầm nhìn, tăng khả năng lấy sáng và lưu thông không khí. Giải pháp này giúp không gian nội thất luôn thông thoáng, tiết kiệm năng lượng và tạo sự kết nối hài hòa với cảnh quan bên ngoài.
Ở tầng hai, các khoảng lam gỗ được bố trí linh hoạt, vừa tạo hiệu ứng thẩm mỹ ấn tượng vừa đóng vai trò che nắng hiệu quả cho không gian bên trong. Hệ lan can kính cường lực trong suốt được sử dụng đồng bộ, mang lại cảm giác nhẹ nhàng, thanh thoát và không làm cản trở tầm nhìn.
Đặc biệt, tại mặt tiền phụ, kiến trúc sư lựa chọn gạch bông gió cho các khoảng đua ở sảnh hiên tầng một và tầng hai. Chi tiết này không chỉ tăng tính thông gió tự nhiên mà còn tạo nét phá cách độc đáo, giúp công trình tránh được sự đơn điệu, nhàm chán ở các vật liệu thường thấy trong mẫu kiến trúc hiện đại thông thường.
Phần chân đế ngôi nhà được ốp đá sần toàn bộ, tạo cảm giác vững chãi và kiên cố, đồng thời bảo vệ tường khỏi tác động của độ ẩm và va chạm trong quá trình sử dụng. Tổng thể vật liệu được phối hợp có chủ đích, góp phần hoàn thiện vẻ đẹp hiện đại, sang trọng và bền vững theo thời gian cho công trình.
>>> Đừng bỏ lỡ: Nhà 2 tầng 4 phòng ngủ 120m2 mái nhật tân cổ điển đẹp, sang trọng vạn người mê.
Không gian sống nhà đẹp 2 tầng mái Nhật
Bảng màu trung tính tươi sáng, trẻ trung
Gam màu trung tính hiện đại được lựa chọn làm chủ đạo cho mẫu nhà mái Nhật 2 tầng hiện đại 120m2, mang đến diện mạo thanh lịch, trẻ trung nhưng vẫn giữ được chiều sâu thẩm mỹ. Sự phối hợp màu sắc được tính toán kỹ lưỡng nhằm tạo nên tổng thể hài hòa và bền vững theo thời gian.
Tông xám của gạch ốp mặt tiền mang lại cảm giác nhã nhặn, sang trọng và có chiều sâu nhờ sự biến chuyển linh hoạt giữa các sắc độ đậm – nhạt. Những mảng tường sơn trắng đóng vai trò làm nền, giúp phân tách rõ ràng các khối kiến trúc, đồng thời tăng hiệu ứng thị giác, khiến công trình trở nên sáng sủa và rộng rãi hơn.
Sắc nâu ấm của cửa gỗ, lam chắn và trần hiên được đưa vào như một điểm cân bằng tinh tế. Gam màu này không chỉ làm dịu bớt sự lạnh của tông xám mà còn tạo cảm giác ấm áp, gần gũi cho tổng thể ngôi nhà. Bên cạnh đó, các chi tiết khung nhôm sơn đen tạo nên đường viền sắc nét, giúp công trình thêm phần hiện đại và nổi bật.
Hệ mái Nhật sử dụng tông xanh than trầm vừa đủ, không quá phô trương nhưng đủ để tạo điểm nhấn rõ nét trên nền màu sáng của thân nhà. Sự kết hợp giữa các gam màu trung tính giúp cho mẫu nhà mái Nhật 2 tầng 120m2 hiện đại luôn giữ được vẻ đẹp tinh tế, sang trọng và không bị lỗi thời theo xu hướng kiến trúc.
Mặt bằng công năng mẫu nhà mái Nhật 2 tầng hiện đại 120m2
Dựa trên nhu cầu sinh hoạt thực tế của gia chủ cùng đặc điểm khu đất, mặt bằng mẫu nhà mái Nhật 2 tầng hiện đại 120m2 được bố trí khoa học, đảm bảo sự tiện nghi trong sử dụng, đồng thời duy trì độ thông thoáng và tính riêng tư cần thiết cho từng không gian.

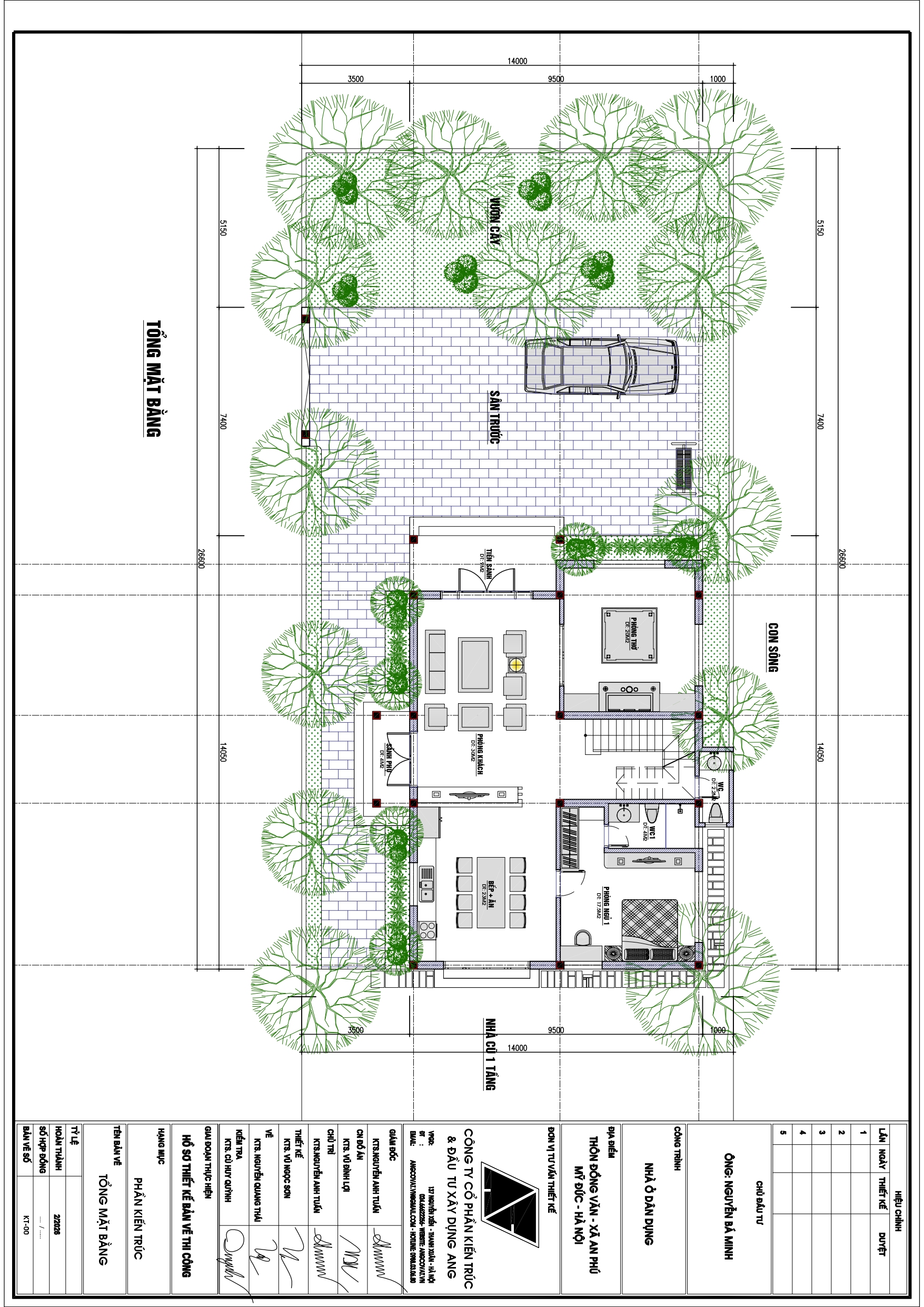
Tổng mặt bằng mẫu nhà mái Nhật 2 tầng hiện đại 120m2
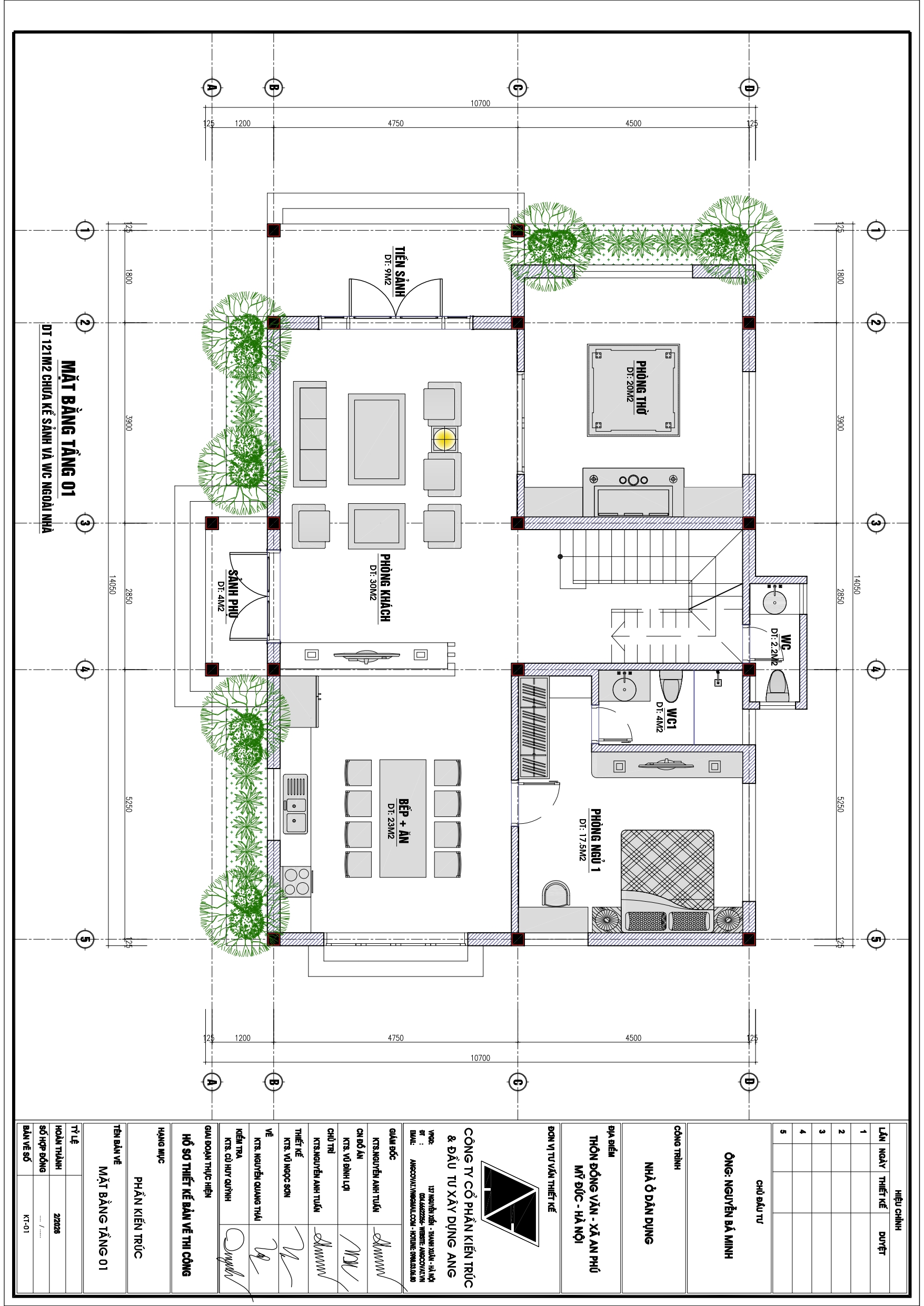
Công năng tầng 1
Tại vị trí trung tâm là phòng khách – không gian đón tiếp được thiết kế rộng rãi, thông thoáng với hai tiền sảnh lớn. Cách bố trí này không chỉ tạo nên vẻ bề thế, sang trọng cho mặt tiền mà còn giúp mở rộng tầm nhìn, tăng cường ánh sáng tự nhiên và lưu thông không khí hiệu quả.
Liền kề phòng khách là khu vực bếp và phòng ăn, được phân tách bằng vách ngăn nhẹ nhằm tạo sự kết nối nhưng vẫn đảm bảo tính thẩm mỹ. Thiết kế này giúp không gian luôn thông thoáng, hạn chế cảm giác bí bách. Lối đi ra sảnh phụ được bố trí hợp lý, thuận tiện cho quá trình sinh hoạt và di chuyển hàng ngày.
Phía góc trái mặt tiền là phòng thờ – vị trí trang trọng và hợp phong thủy. Đây là không gian thờ tự thiêng liêng của gia đình, vừa thuận tiện cho việc chăm sóc ban thờ, vừa thể hiện sự tôn nghiêm và lòng thành kính.
Ngăn cách khu vực phòng thờ qua cầu thang là phòng ngủ master được thiết kế rộng rãi, tích hợp nhà vệ sinh riêng và đầy đủ tiện nghi, mang đến sự riêng tư và thoải mái cho gia chủ.
Nhà vệ sinh chung tầng 1 được kiến trúc sư khéo léo bố trí phía sau cầu thang, đảm bảo sự kín đáo, đồng thời tối ưu diện tích sử dụng.

Công năng tầng 1
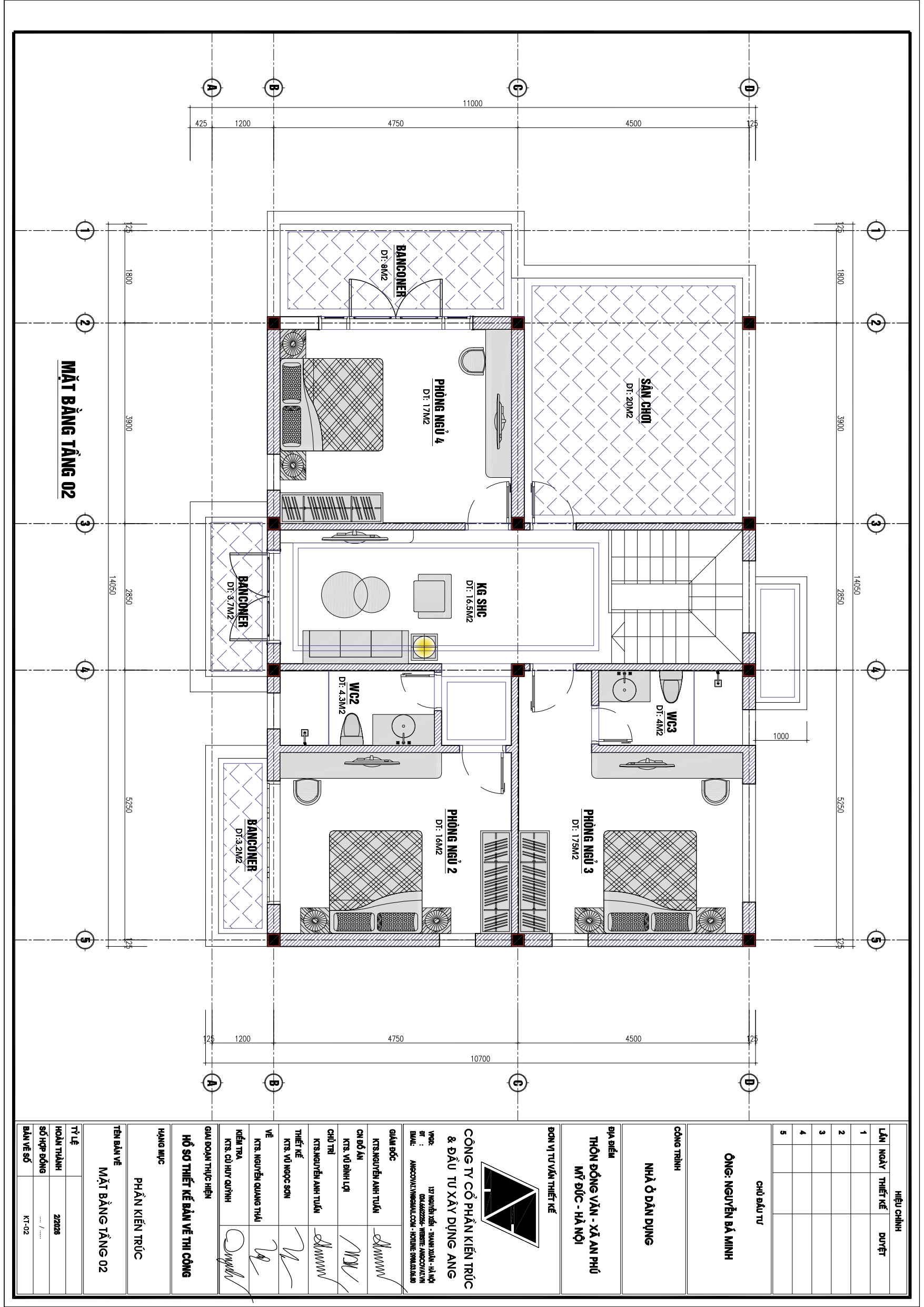
Công năng tầng 2
Không gian tầng 2 được sắp xếp gồm 3 phòng ngủ, đáp ứng đầy đủ nhu cầu nghỉ ngơi cho các thành viên.
- Phòng ngủ số 3 có diện tích lớn hơn, có WC khép kín thuận tiện
- Phòng ngủ 4 nằm phía trước, tiếp giáp trực tiếp ban công. Vị trí lợi thế giúp không gian luôn đón được nhiều ánh sáng tự nhiên.
- Phòng ngủ 2 bố trí phía sau, riêng tư và yên tĩnh hơn.
Khu sinh hoạt chung đặt tại vị trí trung tâm tầng 2, đóng vai trò là nơi kết nối các thành viên, tạo không gian quây quần, trò chuyện ấm cúng.
Bên ngoài là sân chơi rộng rãi, có thể tận dụng làm nơi thư giãn, trồng cây xanh hoặc tổ chức các hoạt động ngoài trời cho gia đình.

Công năng tầng 2
>>> Tham khảo: Ấn tượng với các mẫu nhà biệt thự 2 tầng đẹp dẫn đầu xu thế xây dựng năm 2026.
Kết bài:
Mẫu nhà mái Nhật 2 tầng hiện đại 120m2 là sự kết hợp hài hòa giữa kiến trúc phóng khoáng, mạnh mẽ đầy cảm hứng cùng lối bố trí công năng tư duy linh hoạt mang đến không gian sống thẩm mỹ và bền vững cho mọi gia đình. Nếu bạn đang tìm kiếm một phương án thiết kế tương tự, đừng ngần ngại liên hệ ngay Hotline: 0988 030 680 để được các KTS trực tiếp tư vấn nhé!
Gửi yêu cầu tư vấn
Khách hàng vui lòng gọi điện vào hotline, Gửi yêu cầu tư vấn, Comment yêu cầu tư vấn dưới mỗi bài viết. Chúng tôi sẽ xử lý và trả lời yêu cầu tư vấn khách hàng trong 8h làm việc.
CÔNG TY CỔ PHẦN KIẾN TRÚC VÀ ĐẦU TƯ XÂY DỰNG ANG
Trụ sở: 211 - Khương Trung - Thanh Xuân - Hà Nội
Văn phòng: Số 137 Nguyễn Xiển - Thanh Xuân - Hà Nội.
Chi nhánh HCM: KDC Thới An, phường Thới An ,quận 12, TPHCM.
Chi nhánh Đà Nẵng: 268-270 đường 30/4, Quận Hải Châu, TP Đà Nẵng.
Hotline: 0988030680 - Tel: 02466622256 - Email: angcovat.vn@gmail.com

Bình luận