Thiết kế biệt thự 2 tầng mái bằng hiện đại 9x13m – Giải pháp không gian sống đẳng cấp và tối ưu chi phí BT3240326
https://angcovat.vn/biet-thu/biet-thu-2-tang/5070-thiet-ke-biet-thu-2-tang-mai-bang-hien-dai-9x13m-giai-phap-khong-gian-song-dang-cap-va-toi-uu-chi-phi-bt3240326.html#sigProIda5095d52f9
Thiết kế biệt thự 2 tầng mái bằng hiện đại đang trở thành xu hướng nổi bật trong những năm gần đây, đặc biệt tại các khu vực nông thôn và ven đô. Không còn những chi tiết cầu kỳ, phức tạp, kiến trúc hiện đại hướng đến sự tối giản, tinh tế nhưng vẫn đảm bảo công năng và tính thẩm mỹ vượt thời gian.
Công trình biệt thự 2 tầng mái bằng diện tích 9x13m do kiến trúc Angcovat thực hiện là một minh chứng rõ nét cho tư duy thiết kế hiện đại – nơi hình khối, vật liệu và không gian sống được kết hợp một cách hài hòa và đầy tính toán.
Công trình nhà 2 tầng mái bằng hiện đại của gia đình ông Dương Lý Hùng tại Phúc Thọ – Hà Nội được thiết kế trên diện tích 9x13m, mang đến không gian sống tiện nghi, thoáng đãng và phù hợp với nhu cầu sinh hoạt của gia đình nhiều thế hệ. Dưới đây là bảng phân tích chi tiết diện tích các phòng và đánh giá tổng thể về tính khoa học, tiện nghi cũng như yếu tố phong thủy trong thiết kế.
Chúng tôi không chỉ thiết kế một ngôi nhà, mà kiến tạo không gian sống mang dấu ấn riêng của gia chủ: Thiết kế biệt thự 2 tầng
Tổng quan công trình biệt thự 2 tầng mái bằng hiện đại 9x13m
|
BT3240326 |
|
2 tầng |
|
Ông Dương Lý Hùng |
|
Phúc Thọ - Hà Nội |
|
13m |
|
9m |
|
120m2 |
|
Kiến trúc sư Angcovat |
|
2026 |
|
Để biết thông tin chi tiết chuẩn xác về kinh phí xây nhà thời điểm hiện tại, quý vị vui lòng liên hệ trực tiếp KTS 0988-030-680 |
|
- Diện tích sử dụng 110m2/sàn - Thông số công năng: + Tầng 1: Phòng khách rộng + bếp ăn liên thông + phòng ngủ + WC |
Mẫu thiết kế biệt thự 2 tầng mái bằng hiện đại được xây dựng với diện tích 9x13m mỗi sàn, phù hợp với nhu cầu sinh hoạt của gia đình 4–6 người. Công trình mang phong cách hiện đại đặc trưng với hình khối rõ ràng, đường nét dứt khoát và không gian mở.
Ngôi nhà được đặt trong khuôn viên đất rộng, có khoảng sân phía trước và xung quanh tạo độ thoáng, giúp công trình “thở” và kết nối với thiên nhiên. Đây cũng là xu hướng thiết kế được nhiều gia đình Việt ưu tiên lựa chọn hiện nay.

Hình khối kiến trúc – Tinh thần hiện đại thể hiện qua từng đường nét
Điểm thu hút đầu tiên của mẫu thiết kế biệt thự 2 tầng mái bằng hiện đại chính là hình khối kiến trúc.
Toàn bộ công trình được tạo nên từ các khối vuông vức, mạnh mẽ, bố cục theo nguyên tắc phi đối xứng. Các mảng khối được xử lý đua ra – thụt vào hợp lý tạo chiều sâu không gian, tránh cảm giác đơn điệu thường thấy ở nhà mái bằng.
Các khối ban công, mái đua ngang và hệ lam che nắng được bố trí có chủ đích, vừa tăng tính thẩm mỹ, vừa cải thiện khả năng chống nắng, chống nóng cho công trình.
Chính sự tiết chế trong chi tiết trang trí, tập trung vào tỷ lệ và hình khối đã tạo nên vẻ đẹp hiện đại, sang trọng và không bị lỗi thời theo thời gian.
Thiết kế mái bằng – Đơn giản nhưng hiệu quả
Mái bằng trong công trình không chỉ là giải pháp kết cấu mà còn là yếu tố tạo nên phong cách kiến trúc.
Ưu điểm của mái bằng:
Kết cấu bê tông cốt thép chắc chắn, bền vững
Khả năng chống chịu thời tiết tốt
Dễ dàng tận dụng làm sân thượng, khu trồng cây hoặc không gian thư giãn
Chi phí thi công thấp hơn so với mái dốc
Ngoài ra, mái bằng giúp tổng thể công trình gọn gàng, phù hợp với xu hướng kiến trúc hiện đại tối giản.

Màu sắc kiến trúc – Tối giản nhưng đầy chiều sâu
Mẫu thiết kế biệt thự 2 tầng mái bằng hiện đại sử dụng bảng màu trung tính, mang lại cảm giác sang trọng và tinh tế.
Màu trắng chủ đạo giúp mở rộng không gian, tạo cảm giác sạch sẽ và thoáng đãng
Màu xám ghi và đen được sử dụng để tạo điểm nhấn cho các mảng khối
Màu nâu gỗ xuất hiện ở các chi tiết trang trí giúp cân bằng tổng thể, mang lại sự ấm áp
Sự phối hợp màu sắc này không chỉ làm nổi bật hình khối kiến trúc mà còn giúp công trình hài hòa với cảnh quan xung quanh.
Vật liệu sử dụng – Hiện đại và tối ưu chi phí
Công trình sử dụng các vật liệu phổ biến nhưng được lựa chọn kỹ lưỡng để đảm bảo tính thẩm mỹ và độ bền lâu dài.
Tường ngoài sử dụng sơn ngoại thất cao cấp kết hợp ốp đá trang trí tại các vị trí nhấn
Hệ cửa sử dụng nhôm kính giúp tối ưu ánh sáng tự nhiên và tăng khả năng thông gió
Lan can ban công bằng kính cường lực tạo cảm giác nhẹ nhàng, mở rộng không gian
Các chi tiết giả gỗ hoặc lam gỗ được sử dụng để tăng tính thẩm mỹ
Việc sử dụng vật liệu hiện đại giúp công trình không chỉ đẹp mà còn tiết kiệm chi phí bảo trì về lâu dài.
Không gian công năng – Tối ưu cho gia đình Việt

Với diện tích 9x13m mỗi sàn, công trình được bố trí công năng khoa học.
Tầng 1 gồm phòng khách rộng, bếp và phòng ăn liên thông, một phòng ngủ và khu vệ sinh chung
Tầng 2 bố trí 2–3 phòng ngủ, phòng sinh hoạt chung và ban công
Không gian được thiết kế mở, kết nối linh hoạt giữa các khu vực, tạo cảm giác rộng rãi và thoáng mát. Đây là xu hướng thiết kế phổ biến trong các mẫu biệt thự hiện đại hiện nay.
Không gian ngoại thất – Sự kết nối giữa kiến trúc và thiên nhiên
Một trong những điểm đáng giá của công trình là cách xử lý không gian bên ngoài.
Khoảng sân trước rộng rãi vừa là nơi đỗ xe vừa là không gian sinh hoạt ngoài trời
Cây xanh được bố trí xung quanh giúp điều hòa không khí
Ban công và sân thượng có thể tận dụng làm khu thư giãn
Không gian xanh đóng vai trò quan trọng trong việc nâng cao chất lượng sống, mang lại cảm giác thư thái và gần gũi thiên nhiên.
Chi phí xây dựng biệt thự 2 tầng mái bằng hiện đại 9x13m
Theo cách tính phổ biến hiện nay, tổng chi phí xây dựng được xác định dựa trên diện tích và đơn giá thi công.
| Hạng mục | Diện tích tính | Đơn giá (VNĐ/m²) | Thành tiền (VNĐ) |
|---|---|---|---|
| Móng (40–50%) | 120 x 50% = 60m² | 3.200.000 | 192.000.000 |
| Tầng 1 | 120m² | 5.500.000 | 660.000.000 |
| Tầng 2 | 120m² | 5.500.000 | 660.000.000 |
| Mái bằng (30%) | 120 x 30% = 36m² | 3.000.000 | 108.000.000 |
| Tổng chi phí | ~1.620.000.000 VNĐ |
Mức chi phí này thuộc phân khúc hợp lý, phù hợp với nhiều gia đình muốn sở hữu một không gian sống hiện đại, tiện nghi.
Vì sao nên chọn thiết kế biệt thự 2 tầng mái bằng hiện đại
Thiết kế biệt thự 2 tầng mái bằng hiện đại mang lại nhiều lợi ích rõ rệt.
Phù hợp xu hướng kiến trúc hiện đại
Tối ưu chi phí xây dựng
Thi công nhanh, kết cấu đơn giản
Dễ dàng mở rộng và cải tạo trong tương lai
Thẩm mỹ bền vững theo thời gian
Đây là lựa chọn lý tưởng cho những gia đình yêu thích sự đơn giản, tinh tế nhưng vẫn đảm bảo công năng và giá trị sử dụng lâu dài.

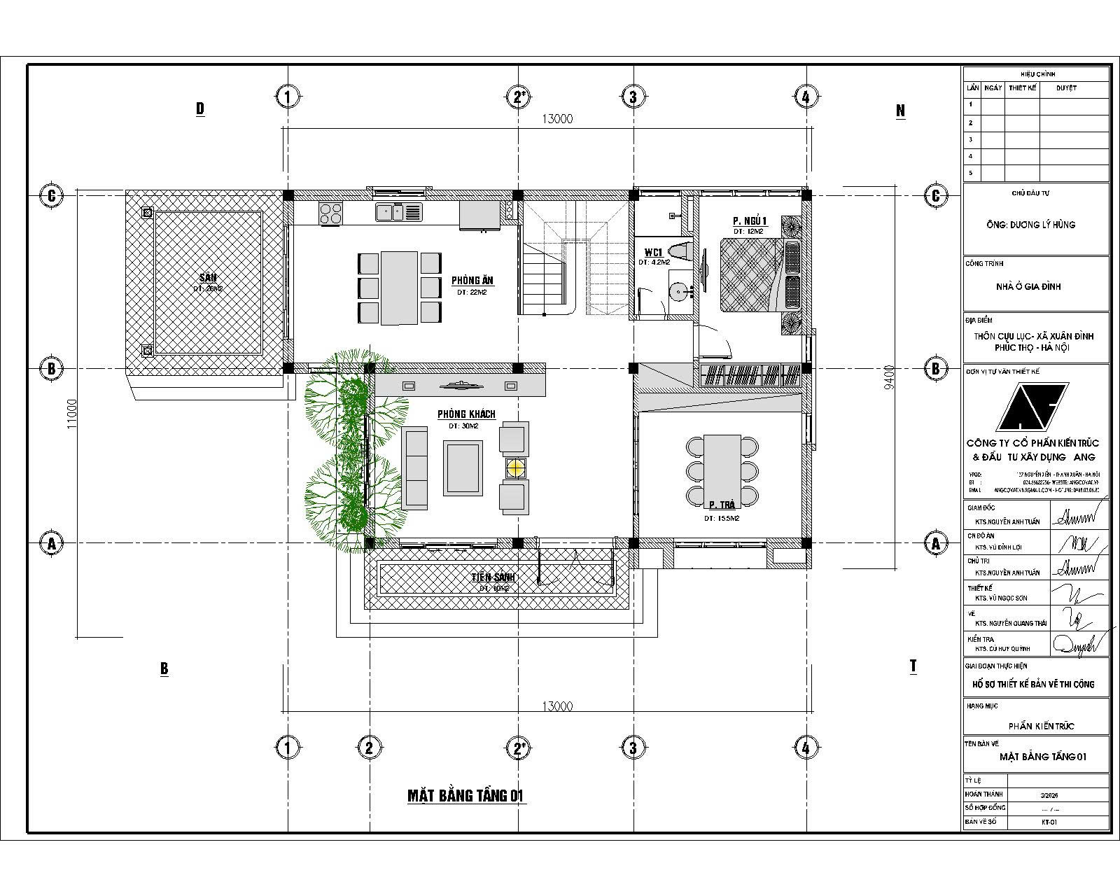
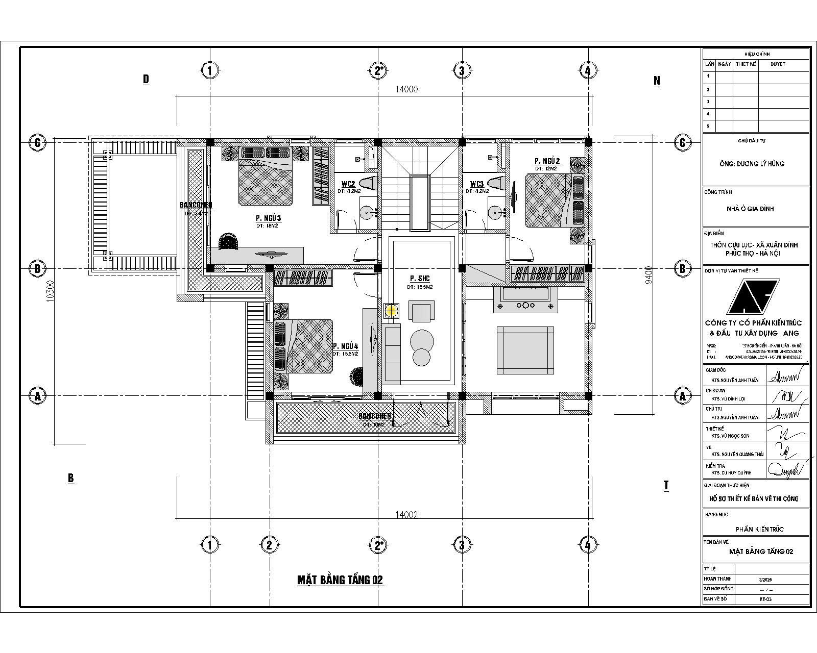
Bản vẽ mặt bằng công năng nhà biệt thự 2 tầng mái bằng hiện đại 9x13m 4 phòng ngủ tiện nghi, chuẩn khoa học và phong thủy
| Không gian | Diện tích (m2) | Ghi chú |
|---|---|---|
| Sảnh chính | ~8m2 | Kết nối trực tiếp với phòng khách |
| Phòng khách | 30m2 | Không gian trung tâm, rộng rãi |
| Phòng ăn + bếp | 22m2 | Liên thông, tiện di chuyển |
| Phòng trà | 15.5m2 | Không gian thư giãn riêng |
| Phòng ngủ 1 (tầng 1) | 18m2 | Thuận tiện cho người lớn tuổi |
| WC 1 | 4.2m2 | Dùng chung tầng 1 |
| Phòng sinh hoạt chung | 15.5m2 | Không gian kết nối gia đình |
| Phòng ngủ 2 | 18m2 | Có cửa sổ thoáng |
| Phòng ngủ 3 | 18m2 | Gần ban công |
| Phòng ngủ 4 | 15.5m2 | Diện tích hợp lý |
| WC 2 | 4.2m2 | Dùng chung tầng 2 |
| WC 3 | 4.2m2 | Phục vụ riêng khu ngủ |
| Ban công | ~10m2 | Tăng thông thoáng, lấy sáng |
Mặt bằng công năng của mẫu nhà 2 tầng mái bằng 9x13m được tổ chức rất logic, đảm bảo sự phân chia rõ ràng giữa không gian sinh hoạt chung và không gian nghỉ ngơi riêng tư. Tầng 1 được bố trí các khu vực chính như phòng khách, bếp ăn và một phòng ngủ, giúp thuận tiện cho sinh hoạt hàng ngày, đặc biệt phù hợp với gia đình có người cao tuổi.
Không gian phòng khách được đặt ngay sau sảnh chính, tạo sự trang trọng và thuận tiện khi đón tiếp khách. Khu bếp và phòng ăn bố trí phía sau, liên thông với phòng khách giúp tối ưu diện tích và tăng sự kết nối giữa các thành viên. Phòng ngủ tầng 1 được bố trí kín đáo, đảm bảo sự yên tĩnh cần thiết.
Tầng 2 tập trung vào không gian nghỉ ngơi với 3 phòng ngủ và phòng sinh hoạt chung. Cách bố trí này tạo sự riêng tư nhưng vẫn có không gian kết nối chung cho cả gia đình. Các phòng ngủ đều có cửa sổ hoặc ban công, đảm bảo thông gió và ánh sáng tự nhiên.
Hệ thống giao thông trong nhà được tổ chức gọn gàng với cầu thang đặt ở vị trí trung tâm, giúp di chuyển thuận tiện và tiết kiệm diện tích.
Phân tích tính tiện nghi của không gian sống trong cách bố trí mặt bằng nhà 2 tầng 4 phòng ngủ 9x13m

Thiết kế đề cao sự tiện nghi với đầy đủ công năng cho gia đình từ 4–6 thành viên. Không gian phòng khách rộng 30m2 mang lại cảm giác thoải mái, sang trọng. Khu bếp ăn 22m2 đủ rộng để bố trí nội thất hiện đại và thuận tiện cho sinh hoạt gia đình.
Việc bố trí thêm phòng trà riêng là điểm cộng lớn, giúp gia chủ có không gian thư giãn, tiếp khách thân mật hoặc nghỉ ngơi. Phòng sinh hoạt chung ở tầng 2 đóng vai trò là nơi gắn kết các thành viên, tăng tính tương tác trong gia đình.
Các phòng ngủ có diện tích hợp lý từ 15.5m2 đến 18m2, đảm bảo sự thoải mái khi sử dụng. Hệ thống 3 nhà vệ sinh được bố trí hợp lý, tránh tình trạng quá tải vào giờ cao điểm.
Ban công rộng và hệ cửa kính lớn giúp không gian luôn thông thoáng, tận dụng tối đa ánh sáng tự nhiên, giảm tiêu thụ điện năng và mang lại cảm giác dễ chịu.

Phân tích yếu tố phong thủy trong thiết kế biệt thự 2 tầng mái bằng 9x13m
Về phong thủy, mặt bằng được bố trí theo nguyên tắc “tọa hung hướng cát”, đảm bảo sự hài hòa và cân bằng năng lượng trong không gian sống. Phòng khách đặt gần cửa chính giúp thu hút tài lộc và vượng khí cho gia đình.
Khu bếp được bố trí tách biệt tương đối với phòng khách nhưng vẫn đảm bảo sự liên kết, phù hợp với nguyên tắc “tọa hung hướng cát” trong phong thủy bếp, giúp giữ lửa cho gia đình và mang lại sự ấm no.
Phòng ngủ được đặt ở các vị trí yên tĩnh, tránh đối diện trực tiếp với cửa ra vào hoặc nhà vệ sinh, đảm bảo giấc ngủ và sức khỏe cho các thành viên. Các phòng đều có cửa sổ giúp lưu thông không khí, tránh tích tụ khí xấu.
Cầu thang đặt ở vị trí trung tâm nhưng không đối diện cửa chính, giúp luồng khí lưu thông hài hòa giữa các tầng. Ban công và cây xanh phía trước nhà đóng vai trò điều hòa sinh khí, mang lại sự cân bằng và thư thái cho không gian sống.
Tổng thể, thiết kế không chỉ đáp ứng yêu cầu thẩm mỹ mà còn đảm bảo yếu tố phong thủy, mang lại tài lộc, sức khỏe và sự thịnh vượng cho gia chủ.
Thiết kế biệt thự 2 tầng mái bằng hiện đại không chỉ là một giải pháp kiến trúc, mà còn là cách thể hiện phong cách sống của gia chủ. Với diện tích 9x13m, công trình hoàn toàn đáp ứng được nhu cầu sinh hoạt, đồng thời mang lại một không gian sống tiện nghi, thoáng đãng và đầy cảm hứng.
Nếu bạn đang tìm kiếm một mẫu nhà vừa đẹp, vừa hiện đại, vừa tối ưu chi phí thì đây chính là lựa chọn đáng để cân nhắc.
Mỗi công trình là một dấu ấn riêng biệt, được kiến tạo từ sự thấu hiểu và kinh nghiệm.
Hãy để đội ngũ kiến trúc sư đồng hành cùng quý khách trong hành trình tạo nên không gian sống đẳng cấp và bền vững.
Hotline tư vấn: 0988 030 680
Mời quý vị cùng nhìn lại các thiết kế của kiến trúc Angcovat trong suốt hơn 20 năm trong nghề: Thiết kế biệt thự đẹp
Gửi yêu cầu tư vấn
Khách hàng vui lòng gọi điện vào hotline, Gửi yêu cầu tư vấn, Comment yêu cầu tư vấn dưới mỗi bài viết. Chúng tôi sẽ xử lý và trả lời yêu cầu tư vấn khách hàng trong 8h làm việc.
CÔNG TY CỔ PHẦN KIẾN TRÚC VÀ ĐẦU TƯ XÂY DỰNG ANG
Trụ sở: 211 - Khương Trung - Thanh Xuân - Hà Nội
Văn phòng: Số 137 Nguyễn Xiển - Thanh Xuân - Hà Nội.
Chi nhánh HCM: KDC Thới An, phường Thới An ,quận 12, TPHCM.
Chi nhánh Đà Nẵng: 268-270 đường 30/4, Quận Hải Châu, TP Đà Nẵng.
Hotline: 0988030680 - Tel: 02466622256 - Email: angcovat.vn@gmail.com

Bình luận