Vẻ đẹp tinh tế của mẫu nhà vuông 2 tầng 10x10m đẹp ở nông thôn BT250326
https://angcovat.vn/biet-thu/biet-thu-2-tang/5071-ve-dep-tinh-te-cua-mau-nha-vuong-2-tang-10x10m-dep-o-nong-thon-bt250326.html#sigProId6c149e24fa
Trong quan niệm kiến trúc truyền thống và phong thủy của người Việt thì các công trình có dáng vẻ vuôn vắn sẽ luôn được yêu tiên hàng đầu. Bởi hình vuông tượng trưng cho đất mang ý nghĩa của sự trọn vẹn. Bởi vậy mà mẫu nhà vuông 2 tầng 10x10m đẹp ở nông thôn đang trở thành xu hướng mới được đông đảo gia chủ yêu thích trong khoảng thời gian gần đây. Với lợi thế về mặt quỹ đất rộng, 100m2/ sàn thì KTS có thể dễ dàng bố trí mặt bằng công năng khoa học. Cùng Angcovat đi sâu vào phân tích từng chi tiết trong siêu phẩm nhà ông Phúc ngay sau đây nhé.
1. Thông tin cơ bản về mẫu nhà vuông 2 tầng 10x10m đẹp ở nông thôn BT250326
|
BT250326 |
|
2 tầng |
|
Ông Phúc |
|
Thiên Lộc - Hà Nội |
|
300m2 |
|
Kiến trúc sư Angcovat |
|
2026 |
|
Liên hệ KTS tư vấn chi phí thi công 0988 030 680 |
|
Diện tích sử dụng 110m2/sàn - Thông số công năng: Tầng 1: Tiền sảnh 7.5m2, phòng khách + phòng thờ 28m2, phòng bếp + phòng ăn 15.6m2, wc 4.3m2, phòng ngủ 13.2m2. Tầng 2: Phòng ngủ 13.4m2, sân phơi 9m2, phòng ngủ 15.4m2, sảnh tầng , wc 4.3m2, sân chơi 21m2, phòng ngủ 13.2m2, ban công 2.5m2. |
2. Yêu cầu tới từ gia chủ và cách giải quyết của KTS về mẫu nhà vuông 2 tầng 10x10m đẹp ở nông thôn
2.1. Yêu cầu của ông Phúc về mẫu nhà
Khi tìm tới đội ngũ KTS thì chủ đầu tư đã đặt ra một số yêu cầu như sau:
- Ông Phúc mong muốn ngôi nhà của mình vuông vắn 10x10m, thiết kế không quá cầu kỳ nhưng vẫn cần đảm bảo được sự sang trọng.
- Yêu thích phong cách hiện đại, có thể pha thêm chút tân cổ với hệ mái Nhật.
- Yêu cầu mẫu nhà vuông 2 tầng 10x10m đẹp ở nông thôn cần có nhiều cửa sổ và ban công rộng để đón nắng và gió, cảnh quan sân vườn cũng được quy hoạch đồng bộ với cổng và tường rào.
- Phục vụ đầy đủ yêu cầu về mặt công năng, có 4 phòng ngủ trong đó 1 phòng ở khu vực tầng 1 cho người già. Không gian phòng bếp và phòng khách cũng cần rộng rãi.
2.2. Giải pháp từ KTS Angcovat
Dựa trên các yêu cầu khắt khe của ông Phúc, KTS Tuấn đã tới trực tiếp công trình để khảo sát và đưa ra thiết kế tối ưu nhất:
- Lựa chọn thiết kế nhà đẹp sử dụng hệ mái Nhật với độ dốc vừa phải có khả năng che nắng che mưa vô cùng tốt, phù hợp với khí hậu Việt Nam. Ngôi nhà được thiết kế lùi về phía sau chừa một khoảng đất rộng phía trước để làm sân.
- Không sử dụng toàn bộ là cửa gỗ để bỏ đi cảm giác nặng nề mà kết hợp sử dụng cả cửa kính xingfa để tối ưu ánh sáng.
- Sử dụng gam màu trắng làm chủ đạo, màu xanh than của hệ mái. Cách phối màu này tạo ra cảm giác thanh lịch cho mẫu nhà vuông 2 tầng 10x10m đẹp ở nông thôn không lo lỗi mốt.
3. Phân tích phối cảnh mẫu nhà vuông 2 tầng 10x10m đẹp ở nông thôn
Để thấy được toàn bộ vẻ đẹp của công trình, ngay sau đây hãy cùng Angcovat đi phân tích qua từng hình ảnh chân thực:
3.1. Góc nhìn trực diện công trình
Cảm nhận đầu tiên mà bất kỳ ai nhìn vào công trình đều sẽ là cảm giác bề thế và vững chãi.
- Với kích thước mặt tiền 10m thì khôi nhà được thiết kế cân đối. Không có quá nhiều phào chỉ hoa văn rườm rà tới từ lối kiến trúc Tân cổ mà thay vào đó là các mảng tường phẳng, hình khối vuông vắn.
- Điểm nhấn vẫn là cột trụ hình vuông có diện tích khá lớn chạy từ phân chân móng tới hệ ban công tầng 2. Phần chân cột và bậc tam cấp đều được ốp đá cao cấp tối màu giúp chủ đầu tư dễ dàng vệ sinh vào những ngày thời tiết xấu. Bên cạnh đó cũng mang lại cảm giác chắc chắn.
- Ngôi nhà được KTS Angcovat khoác lên mình chiếc áo màu trắng chủ đạo. Đây được coi là gam màu chưa bao giờ lỗi mốt theo thời gian sử dụng. Nổi bật trên nền trắng là hệ mái Nhật màu xanh than vô cùng sang trọng, tạo ra sự tương phản rõ ràng về mặt thị giác.
- Cửa chính được chủ đầu tư lựa chọn gỗ tự nhiên màu trầm. Điều này sẽ phần nào thể hiện đẳng cấp của gia đình ông Phúc. Trong khi đó toàn bộ hệ cửa sổ đều được đan xen là kính xingfa giúp mặt tiền không bị cứng nhắc, trở nên nhẹ nhàng và tối ưu ánh sáng.
Góc nhìn toàn cảnh công trình nhà 2 tầng
3.2. Sử dụng vật liệu thông minh trong mẫu nhà vuông 2 tầng 10x10m đẹp ở nông thôn
Ở phối cảnh 3D thứ 2 này thì sẽ tập trung cho người nhìn thấy rõ được chi tiết phần mặt tiền khi đứng ở góc sân.
- Sử dụng gạch ốp trang trí tài tình: Nhìn vào các mảng tường thì bạn sẽ thấy được KTS rất kỹ trong việc sử dụng gạch ốp màu xám nâu làm điểm nhấn. Loại vật liệu này không chỉ tạm hiệu ứng nhám mà còn giúp mặt tiền có thêm chiều sâu, giúp bảo vệ tường khỏi rêu mốc, nứt nẻ dưới sự tác động của thời tiết xấu.
- Hệ cửa sổ thông minh: Như đã chia sẻ thì toàn bộ hệ cửa sổ đều là xingfa bản rộng. Phần bên trên mỗi cửa đều có thêm hệ mái che nhỏ đua ra giúp ngăn chặn nước mưa hắt vào bên trong.
- Yếu tố thiên nhiên đan xen: Chân tường bao quanh mặt tiền đều có bồn hoa. Điều này giúp không gian sống của gia chủ mềm mại, bỏ qua các khối bê tông cứng nhắc mang tới sinh khí tươi mát cho toàn bộ công trình.
Xem thêm: Bản vẽ nhà 2 tầng 9x12m 4 phòng ngủ mái Thái
Kiến trúc nhà 2 tầng mái bằng hiện đại
3.3. Mẫu nhà vuông 2 tầng 10x10m đẹp ở nông thôn sử dụng hệ mái Nhật
Từ phối cảnh cuối cùng này thì chúng ta sẽ cảm nhận được sự ấm áp và lãng mạn thông qua hệ đèn chiếu sáng. Đây là điểm ăn tiền cửa công trình thiết kế này với ánh đèn vàng ấm áp kết hợp cùng đèn âm trần chạy dọc viền mái khiến mẫu nhà vuông 2 tầng 10x10m đẹp ở nông thôn trở nên lung linh hơn về đêm.
Nếu xét từ góc nghiêng này thì có thể thấy rõ được độ dốc và cấu tạo của hệ mái Nhật. Mái không chỉ lợp trên cùng mà còn che phủ khu vực sảnh và cửa sổ tầng 1. Các lớp mái giật cấp đan xen nhau tạo ra sự nhịp nhàng và bề thế. Mái nhật có độ dốc vừa phải. vươn rộng ra 4 phía giúp tản nhiệt vô cùng hiệu quả.
Khu vực ban công tầng 2 rộng được thiết kế đua ra khá rộng. Lan can kính trong suốt giúp tầm nhìn không bị cản trở dù là bạn đang ở trong phòng. Đây sẽ là khu vực tuyệt vời để gia chủ thư giãn sau một ngày dài làm việc mệt mỏi.
Không gian sống xa hoa và tinh tế của chủ đầu tư
3.4 Hệ thống sân vườn và cảnh quan
Một công trình đẹp tất nhiên không thể bỏ qua yếu tố sân vườn và cổng rào.
- Khuôn viên sân vườn được lát gạch chống trơn màu xám nhạt ăn nhập với toàn bộ công trình. Xung quanh các chân tường và góc sân đều được ông Phúc chừa ra diện tích để trồng thêm cây xanh.
- Cổng nhà được thiết kế rộng với mái che lợp ngói đồng bộ với hệ mái nhà. Tường rào được đan xen với các khung sắt thoáng, vừa đảm bảo tính thẩm mỹ, vừa giữ gìn được sự riêng tư.
Đừng bỏ qua: Nhà 8x15m 2 tầng mái Nhật
4. Phân tích mặt bằng công năng mẫu nhà vuông 2 tầng 10x10m đẹp ở nông thôn
Với diện tích 10x10m2 sẽ là lợi thế cực lớn giúp việc chia công năng trong căn nhà trở nên đơn giản. Dưới đây là cách bố trí thông minh tới từ các KTS Angcovat:
Tổng mặt bằng công năng mẫu nhà vuông 2 tầng 10x10m đẹp ở nông thôn
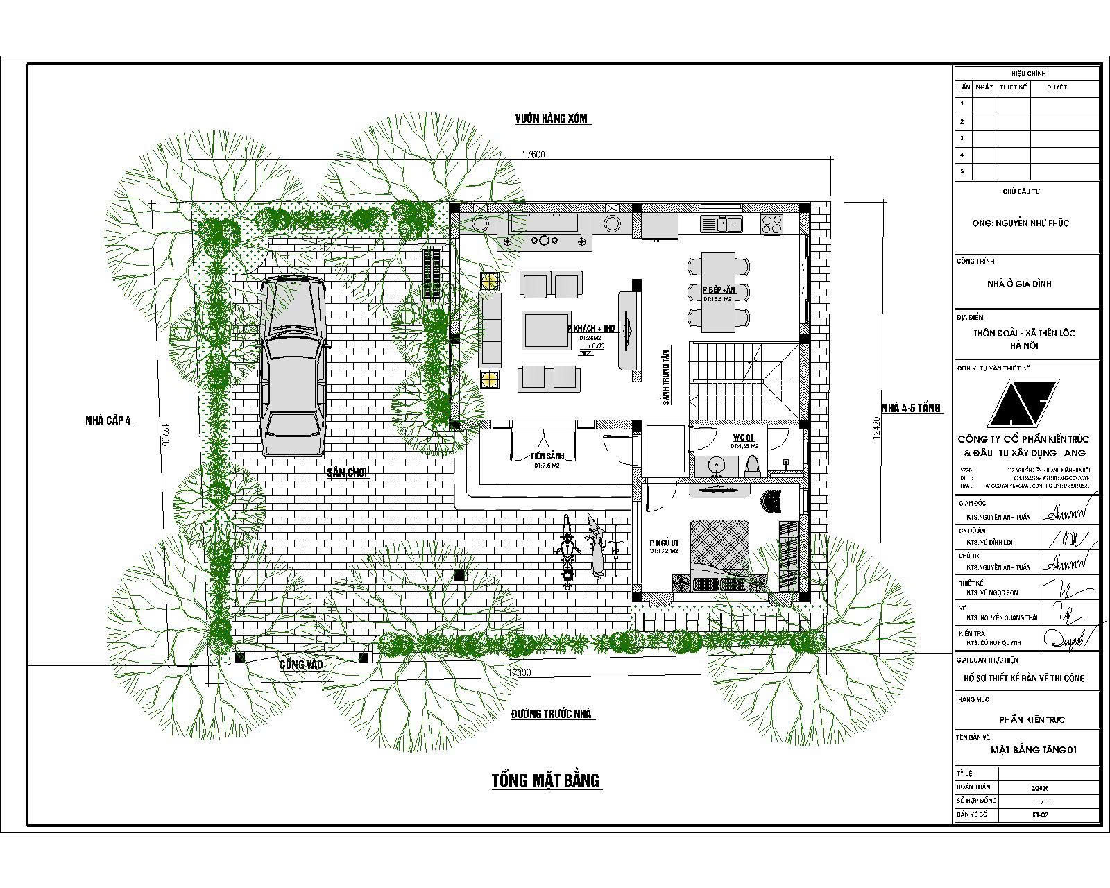
Không gian tầng 1:
Đi qua sảnh hiên chính sẽ là không gian tầng 1: Tiền sảnh 7.5m2, phòng khách + phòng thờ 28m2, phòng bếp + phòng ăn 15.6m2, wc 4.3m2, phòng ngủ 13.2m2.
- Phòng khách: Được đặt ở vị trí trung tâm hoặc lệch 1 bên cửa chính. Không gian vuông vắn giúp dễ dàng kê bộ bàn ghế cỡ lớn. Cửa sổ lớn giúp chủ đầu tư có thể ngắm nhìn cảnh quan sân vườn.
- Phòng bếp + Phòng ăn: Được bố trí liên thông với phòng khách. Bếp có sảnh phụ đi ra phía sau hoặc bên hông nhà. Điều này giúp việc di chuyển trở nên đơn giản hơn, đi chợ về sẽ không cần phải đi qua phòng khách.
- 1 phòng ngủ: Được đặt ở tầng 1 là giải pháp tốt cho các gia đình có người già hoặc trẻ nhỏ.
- WC: Được đặt kín đáo ngay dưới gầm cầu thang hoặc khu vực gần sảnh phụ, đảm bảo tính thẩm mỹ và tiện cho cả gia đình lẫn khách.
Mặt bằng tầng 1 nhà 2 tầng 100m2 sang trọng
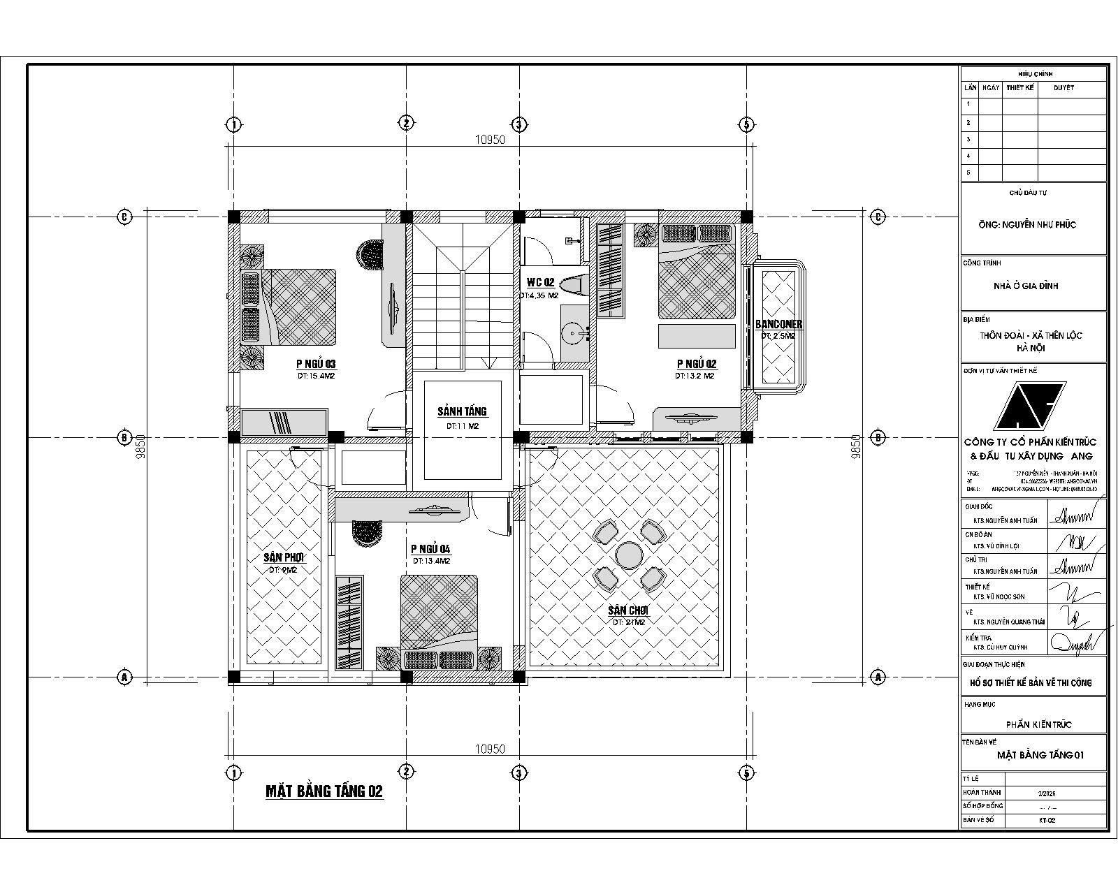
Không gian tầng 2:
Tầng 2 là không gian tập trung cho khu thờ cúng. Bao gồm: Phòng ngủ 13.4m2, sân phơi 9m2, phòng ngủ 15.4m2, sảnh tầng , wc 4.3m2, sân chơi 21m2, phòng ngủ 13.2m2, ban công 2.5m2.
- Phòng thờ: Nằm ở vị trí trang trọng hướng thẳng ra mặt tiền chính của công trình. Được kết nối trực tiếp với ban công phía trước giúp đảm bảo luôn thông thoáng, có ánh sáng tự nhiên.
- 3 phòng ngủ: Được thiết kế vào các góc còn lại của công trình. Cũng vì sở hữu diện tích 10x10m2 nên hầu như mỗi phòng đều có cửa sổ.
- Sân chơi: Nằm ở gó cuối của căn nhà, được thiết kế khuất phía sau để tránh làm giảm tính thẩm mỹ đồng thời cũng giúp đón nắng gió tốt để quần áo được khô ráo.
Có thể bạn quan tâm: Thiết kế nhà 2 tầng Indochine 120m2
Mặt bằng tầng 2 nhà 2 tầng 100m2 sang trọng
5. Lời kết
Mẫu nhà vuông 2 tầng 10x10m đẹp ở nông thôn không đơn giản là một nơi để ở mà còn là sự tinh tế của phong cách hiện đại hòa quyện cùng thiên nhiên. Diện tích vuông vắn mang lại phong thủy tốt cho gia chủ, hệ mái Nhật mang tới sự bền vững theo thời gian sử dụng. Nếu bạn cũng đang có ý định thiết kế hoặc thi công một không gian sống hoàn hảo như này, thì hãy liên hệ ngay cho chúng tôi thông qua hotline: 0988.030.680
Gửi yêu cầu tư vấn
Khách hàng vui lòng gọi điện vào hotline, Gửi yêu cầu tư vấn, Comment yêu cầu tư vấn dưới mỗi bài viết. Chúng tôi sẽ xử lý và trả lời yêu cầu tư vấn khách hàng trong 8h làm việc.
CÔNG TY CỔ PHẦN KIẾN TRÚC VÀ ĐẦU TƯ XÂY DỰNG ANG
Trụ sở: 211 - Khương Trung - Thanh Xuân - Hà Nội
Văn phòng: Số 137 Nguyễn Xiển - Thanh Xuân - Hà Nội.
Chi nhánh HCM: KDC Thới An, phường Thới An ,quận 12, TPHCM.
Chi nhánh Đà Nẵng: 268-270 đường 30/4, Quận Hải Châu, TP Đà Nẵng.
Hotline: 0988030680 - Tel: 02466622256 - Email: angcovat.vn@gmail.com

Bình luận