Thiết kế cải tạo ngoại thất nhà hàng theo phong cách địa trung hải BT271125
https://angcovat.vn/biet-thu/biet-thu-2-tang/4979-thiet-ke-cai-tao-ngoai-that-nha-hang-theo-phong-cach-dia-trung-hai-bt271125.html#sigProId5ff94fd947
Trong ngành ẩm thực, một mô hình kinh doanh nhà hàng hiệu quả không chỉ dừng ở chất lượng món ăn mà còn phải tạo ra trải nghiệm khó quên cho mỗi thực khách. Thiết kế nhà hàng phong cách địa trung hải chính là lựa chọn hoàn hảo, với kiến trúc tinh tế, màu sắc hài hòa, vật liệu tự nhiên, công trình mang đến không gian ẩm thực vừa đẹp về thị giác lại tràn ngập cảm xúc hoài niệm và truyền thống. Ngay sau đây, hãy cùng chúng tôi khám phá hành trình kiến tạo nên không gian nhà hàng Địa Trung Hải đầy bản sắc và ấn tượng ở Long An - nơi mỗi chi tiết đều kể câu chuyện riêng về ánh sáng, màu sắc và trải nghiệm.
Thông tin cơ bản về mẫu thiết kế nhà hàng 800m2 phong cách Địa Trung Hải
|
BT271125 |
|
2 tầng |
|
Bà Ánh - công ty Cổ phần Nông nghiệp LEBON |
|
Long An |
|
36m |
|
16m |
|
800m2 |
|
Kiến trúc sư Angcovat |
|
2025 |
|
|
|
|
Từ "ý tưởng” đến “thành hình” thiết kế nhà hàng phong cách địa trung hải
Sau thành công rực rỡ của dự án thiết kế nhà hàng phong cách indochine ở Đà Nẵng, chị Ánh lại tiếp tục tin tưởng và giao phó cho đội ngũ kiến trúc sư Angcovat dự án cải tạo nhà hàng ở Long An. Mang trong mình niềm say mê và nhiệt huyết, chị tin rằng để tạo nên một công trình không chỉ đẹp mà còn phải có hồn thực sự rất cần những đơn vị có tâm và có tầm - như Angcovat.
Về cơ bản, chúng tôi sẽ giữ nguyên hiện trạng công trình cũ, đồng thời thổi hồn qua các chi tiết đặc trưng của thiết kế nhà hàng phong cách địa trung hải - từ hệ mái ngói, kiến trúc vòm, sảnh hiên rộng, vật liệu gần gũi - tạo nên không gian ẩm thực vừa sang trọng, phóng khoáng lại có cảm giác dân giã, truyền thống.
Dự án lần này không chỉ là việc cải tạo ngoại thất mà còn là hành trình đưa cảm xúc và tinh thần Địa Trung Hải hòa quyện trong từng chi tiết kiến trúc.
>>> Mời quý vị tham khảo thêm: Tổng hợp các mẫu nhà biệt thự 3 tầng phong cách Địa Trung Hải đẹp, ấn tượng nhất.
Khám phá những nét đặc trưng trong thiết kế nhà hàng phong cách địa trung hải
Thiết kế nhà hàng phong cách địa trung hải được triển khai trên quy mô diện tích lớn lên tới 800m2 và 2 tầng mặt sàn mang đến không gian rộng rãi, thoáng đãng thuận tiện cho việc bố trí công năng và tạo kiểu kiến trúc. Những đặc điểm của phong cách này được KTS khéo léo phô diễn để vừa thể hiện đúng tinh thần kiến trúc lại phù hợp với mô hình kinh doanh nhà hàng. Chi tiết thiết kế được diễn tả cụ thể như sau:

Thiết kế nhà hàng 800m2 phong cách địa trung hải
1. Kiến trúc vòm tạo nét thanh thoát, mềm mại
Một trong những điểm nhìn thu hút và yếu tố làm nên chất Địa Trung Hải của thiết kế nhà hàng đó là kiến trúc vòm ở tiền sảnh, cửa chính. Những đường cong rộng được bo viền gỗ tỉ mỉ không chỉ mang đến nét đẹp duyên dáng, mềm mại còn tạo cảm giác mở rộng, dẫn lối thực khách vào không gian bên trong.
Ngoài ra, những ô sáng tròn cũng được xuất hiện đều đặn trên các phần áp mái vừa để tạo điểm nhấn kiến trúc lại hỗ trợ nguồn gió được lưu thông liên tục, đảm bảo không gian thoáng đãng, mát mẻ cho nhà hàng.

Tiền sảnh thiết kế kiến trúc vòm tạo sự bề thế, trang trọng cho không gian nhà hàng
2. Vật liệu gần gũi theo đúng tinh thần địa trung hải
Cách sử dụng vật liệu trong thiết kế nhà hàng phong cách địa trung hải mang đến sự mới lạ và tinh tế. Các KTS đã khéo léo phối hợp nhịp nhàng giữa những vật liệu xưa cũ như mái ngói, gỗ, đá tự nhiên cùng với những chất liệu mới như kính cường lực, kim loại tinh gọn tạo nên tổng thể hài hòa, cân bằng giữa giá trị truyền thống và hơi thở hiện đại.
Những mảng tường bê tông được tác giả lựa chọn sơn sắc vàng Hội An không chỉ không làm mất đi tinh thần kiến trúc ban đầu mà còn khơi gợi nên không gian bình yên, hoài niệm và nét đẹp trường tồn theo thời gian.
Phần công trình cũ, thiết kế sử dụng 2 vật liệu chính đó là gỗ ốp phía trên tầng 2 và gạch đá ốp dưới tầng 1.
- Gạch đá tự nhiên màu xám ghi có độ sần sùi nhẹ tạo kết cấu bề mặt mạnh mẽ và bền bỉ. Với đặc điểm độ bền cao, ít bị tác động bởi ngoại cảnh nên khi sử dụng ốp đá cho khu vực tầng 1 cũng rất hợp lý, vừa ngăn chặn khói bụi của đường quốc lộ lại tạo nên phần chân đế vững chắc cho ngôi nhà.
- Gỗ ốp tầng 2 và trần nhà lại mang đến tính đối lập đầy bổ trợ: những thanh gỗ chạy dọc tạo nên đường nét mềm mại, nhẹ nhàng, không thô ráp như đá nhưng vẫn vững chắc. Bề mặt gỗ được xử lý nhẵn bóng, sơn chống thấm và bảo vệ màu, giúp thích nghi tốt với môi trường ngoài trời, đồng thời tạo nên cảm giác ấm cúng, gần gũi.
Cách xử lý này vừa khéo léo che đi được các mảng tường cũ của công trình hiện trạng vừa mang đến diện mạo mới mẻ và hài hòa cho tổng thể.
Bên cạnh gỗ và đá, vật liệu kính hiện đại cũng được sử dụng một cách tinh tế trong thiết kế. Toàn bộ hệ thống cửa chính và cửa sổ được sử dụng hoàn toàn bằng chất liệu kính xingfa giúp mở rộng tầm nhìn cho khách hàng ngay cả khi ăn uống ở bên trong nhà hàng, đồng thời phát huy khả năng tối ưu ánh sáng và thông gió tự nhiên, đảm bảo không gian thưởng thức ẩm thực luôn sáng sủa, mát mẻ và thoáng đãng.
>>> Có thể bạn quan tâm: Kiến trúc địa trung hải là gì? Top các mẫu nhà phong cách địa trung hải được săn đón nhất hiện nay.

Sử dụng chất liệu mộc mạc, gần gũi khơi gợi cảm giác ấm cúng
3. Hệ mái ngói mộc mạc, truyền thống
Nhắc đến phong cách Địa Trung Hải thì nhất định không thể thiếu hình ảnh mái ngói mộc mạc đầy chất hoài niệm. Hệ mái ngói thiết kế giật cấp tạo nên độ cao thoáng và chiều sâu cho kiến trúc tổng thể. Phần mái đua rộng vươn ra phía trước đóng vai trò như một lớp “lá chắn” tự nhiên, giúp che nắng che mưa hiệu quả. Nhờ đó, không gian ăn uống ngoài trời luôn giữ được sự mát mẻ, dễ chịu - đúng theo tinh thần phóng khoáng của công trình ven biển.
Không chỉ đẹp về kiểu dáng, sắc nâu đất của viên ngói cũng góp phần làm nổi bật nên tính hoài cổ, giúp công trình hài hòa với chi tiết kiến trúc và cảnh quan xung quanh, mang đến cảm giác gần gũi, thân thuộc nhưng vẫn vô cùng cuốn hút.
>>> Tham khảo: Biệt thự 2 tầng Địa Trung Hải 120m2 - kiến tạo không gian sống đẳng cấp, chuẩn thượng lưu.
4. Thiết kế sảnh hiên rộng, thoáng đãng
Sảnh hiên được xem như phần đệm chuyển tiếp mềm mại giữa cảnh quan bên ngoài và nội thất bên trong. Với diện tích rộng và thiết kế thoáng mở, khu vực này không chỉ mang đến cảm giác chào đón nhẹ nhàng mà còn tạo tiền đề cho chủ đầu tư dễ dàng bố trí khu vực ăn uống ngoài trời, mang đến trải nghiệm ẩm thực đầy thư giãn và thoải mái cho mỗi khách hàng.
Thiết kế nhà hàng phong cách địa trung hải – kiến tạo cảm xúc, níu chân thực khách

Ngoại thất nhà hàng ốp đá tự nhiên tạo sự gai góc, ấn tượng theo đặc trưng kiến trúc địa trung hải
1. Dấu ấn ban đầu - tiền sảnh lớn, mặt tiền rộng, biển hiệu rõ ràng
Tận dụng triệt để lợi thế vị trí lô góc 2 mặt tiền, thiết kế nhà hàng phong cách địa trung hải tập trung kiến tạo dấu ấn đặc trưng của bản thân thông qua thiết kế khu vực tiền sảnh trung tâm rộng lớn. Thiết kế cao ráo, bề thế với kiến trúc vòm thanh thoát và mặt tiền ốp toàn bộ đá tự nhiên không chỉ mang đến cảm giác về một không gian nhà hàng sang trọng mà còn giúp thu hút sự chú ý của khách hàng ngay từ cái nhìn đầu tiên.
Biển hiệu “Puro” đặt ở vị trí cao ráo trên sảnh trung tâm hướng về 2 phía mặt đường, thiết kế gọn gàng, tinh tế thể hiện hình ảnh thương hiệu chuyên nghiệp nhưng vẫn dễ dàng nhận diện từ xa.
2. Thiết kế rộng mở - mang đến cảm giác thư giãn, thoải mái
Nhiều khách khi đến với nhà hàng không chỉ để thưởng thức bữa ăn mà còn tìm kiếm một không gian thư giãn, giải tỏa sau những ngày làm việc căng thẳng. Hiểu rõ nhu cầu này, thiết kế nhà hàng phong cách Địa Trung Hải đã khéo léo tạo ra những khoảng không gian “thở” hợp lý, mang đến cảm giác rộng rãi và dễ chịu.
Công trình vừa có nơi tĩnh cho những gia đình yêu thích sự riêng tư, yên tĩnh vừa có những khoảng mở thoáng đãng, kết nối trực tiếp với thiên nhiên giúp thực khách tận hưởng trọn vẹn trải nghiệm thư giãn, nhẹ nhàng đầy phóng khoáng.

Kết hợp các tone màu trầm ấm, dịu nhẹ mang đến không gian ẩm thực đầy hoài niệm
3. Ánh sáng - yếu tố kiến tạo cảm xúc
Ánh sáng là một trong những yếu tố then chốt làm nên không gian nhà hàng sống động và kiến tạo cảm xúc cho mỗi thực khách. Ở mẫu thiết kế này, KTS đã tận dụng tối đa ánh sáng tự nhiên thông qua việc sử dụng hệ thống cửa kính lớn, vòm cửa rộng, đảm bảo tính thoáng đãng và sáng sủa cho không gian, đồng thời tăng tính kết nối với thiên nhiên bên ngoài, tạo cảm xúc thoải mái và thư giãn cho khách hàng.
Bên cạnh ánh sáng tự nhiên, ánh sáng nhân tạo cũng được thiết kế vận dụng tinh tế từ đèn âm trần, đèn treo, đèn chiếu điểm, đèn chùm vừa làm nổi bật các chi tiết kiến trúc, màu sắc và vật liệu vừa tạo nên không gian ẩm thực lung linh, huyền ảo đầy lãng mạn.
Khi bước vào nhà hàng, thực khách như lạc vào một không gian riêng biệt, nơi nhịp sống hối hả bên ngoài dường như tan biến, chỉ còn lại sự thanh bình, ấm áp và những cảm giác hoài niệm nhẹ nhàng len lỏi trong từng chi tiết kiến trúc.

Thiết kế sảnh hiên rộng rãi vừa tạo sự thoáng đãng lại dễ dàng bố trí bàn ăn
Mặt bằng thiết kế nhà hàng phong cách địa trung hải tối ưu, nâng tầm trải nghiệm
Mặt bằng nhà hàng phong cách địa trung hải được KTS tính toán kỹ lưỡng nhằm khai thác triệt để không gian kinh doanh, tận dụng tối đa nguồn sáng, không khí và cảnh quan tự nhiên, đồng thời đảm bảo tính mạch lạc trong vận hành.
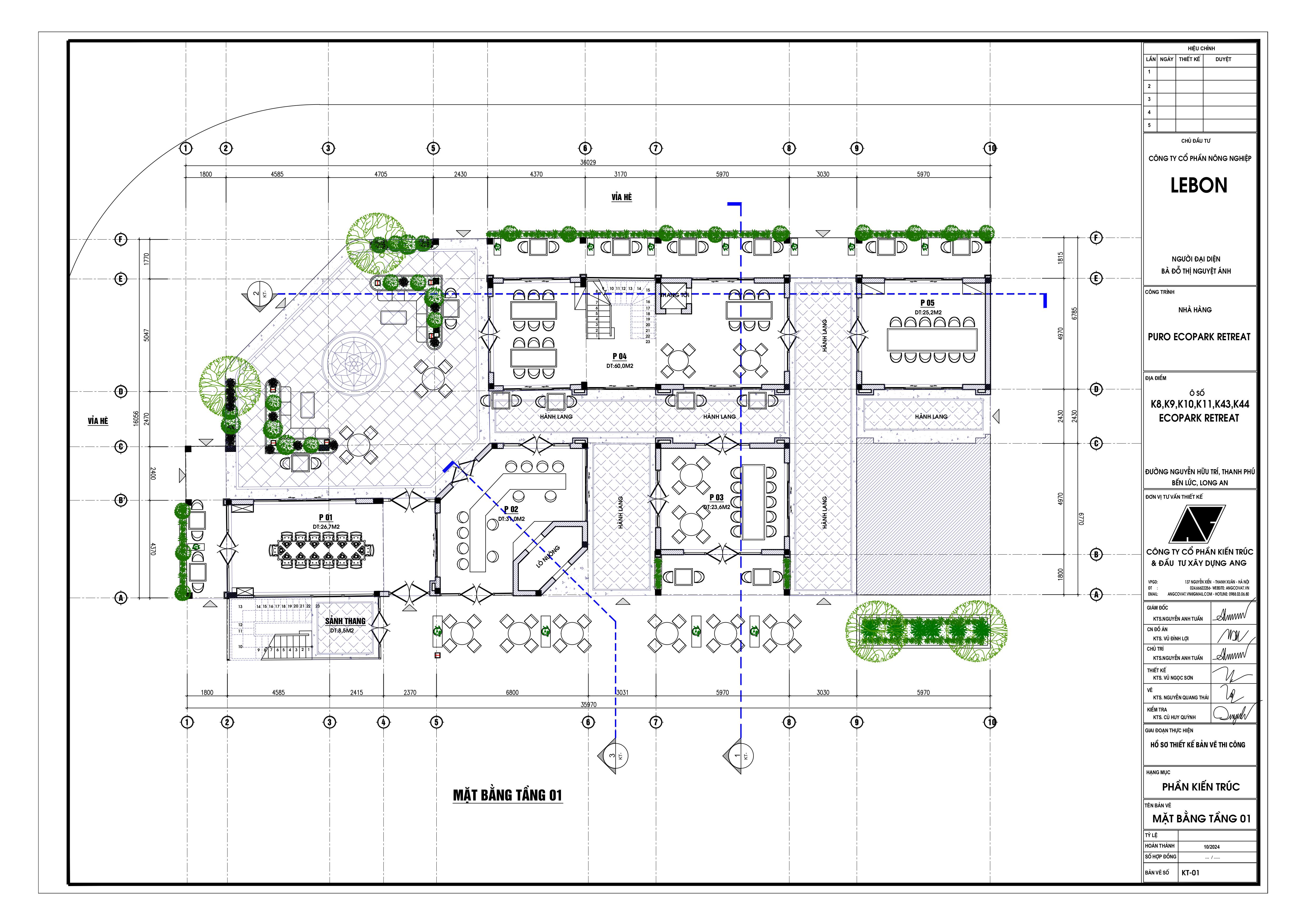
Mặt bằng công năng tầng 1
Mặt bằng tầng 1 của thiết kế nhà hàng phong cách địa trung hải là khu vực chính để phục vụ khách hàng.
- Từ vị trí tiền sảnh, thiết kế 2 băng ghế sofa dài dành cho khách hàng ngồi nghỉ chờ bàn hoặc đợi người nhà thanh toán. Mặc dù là chi tiết nhỏ nhưng chính những tiện ích tinh tế này lại để lại ấn tượng sâu sắc trong lòng khách hàng.
- Tại khu vực trung tâm là chi tiết lò nướng (ống khói) vừa là điểm kiến trúc đặc trưng vừa mang đến cảm giác ấm cúng, truyền thống cho không gian nhà hàng.
- Không gian bố trí đa dạng bàn ăn tùy theo số lượng người (bàn 2, 4, 6 hoặc bàn tập thể) đáp ứng nhu cầu sử dụng của nhiều đối tượng khách từ cặp đôi, nhóm bạn nhỏ, gia đình hoặc tập thể nhân viên cơ quan. Kích thước bàn ăn cũng được biến đổi linh hoạt để phù hợp với đặc điểm diện tích, hình dáng của từng không gian.
- Thiết kế có cả không gian ăn uống trong nhà và ngoài trời, giúp các thực khách có thêm nhiều sự lựa chọn tùy vào sở thích cá nhân.
- Với diện tích tương đối lớn, vậy nên KTS đã linh hoạt bố trí 2 vị trí cầu thang để đáp ứng nhu cầu sử dụng khi nhà hàng đông khách. Đồng thời, bố trí 1 chiếc thang máy bên cạnh thang bộ dẫn lên khu bếp ở tầng 2, thuận tiện cho quá trình phục vụ của nhân viên nhà hàng.

Mặt bằng công năng tầng 1
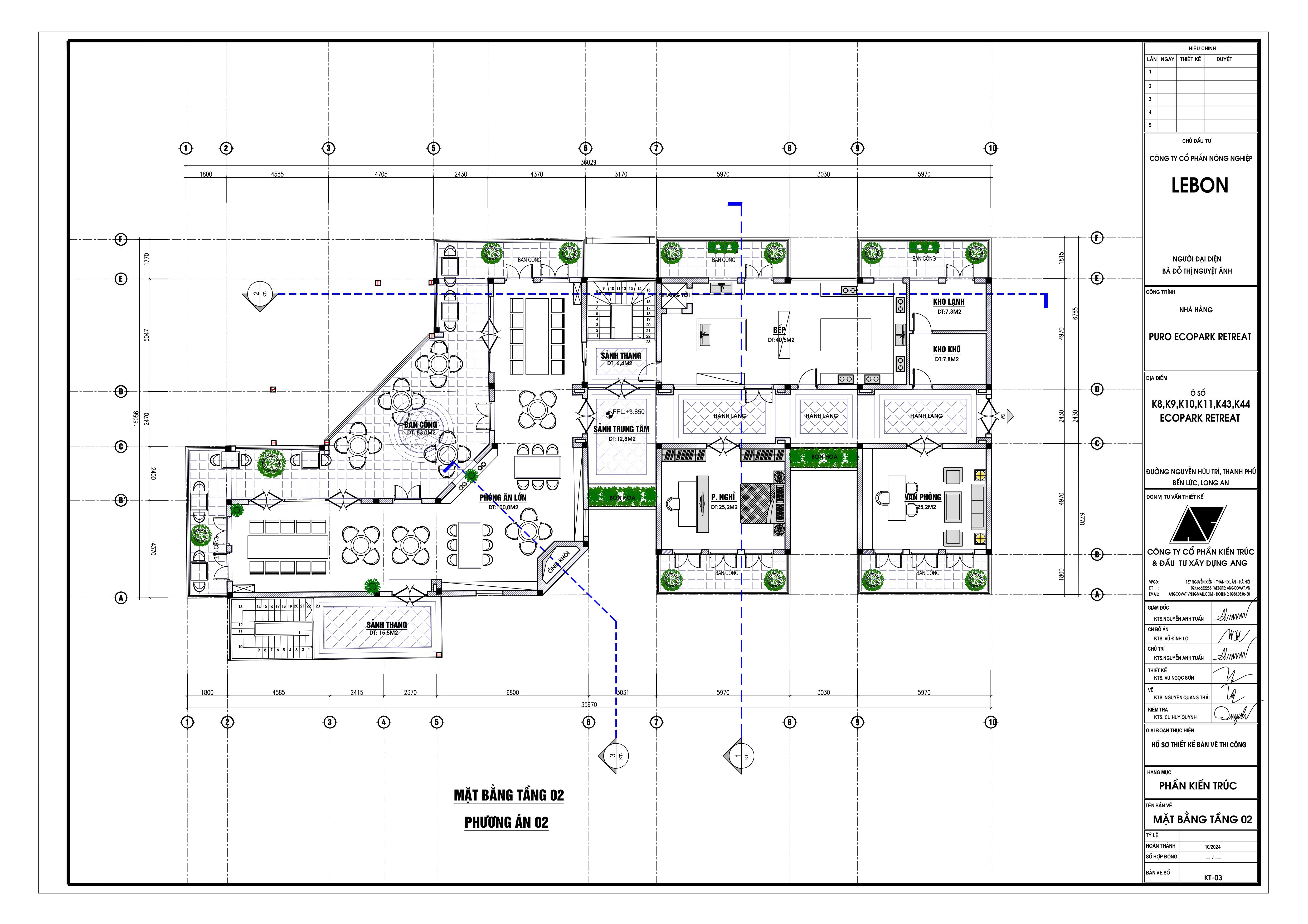
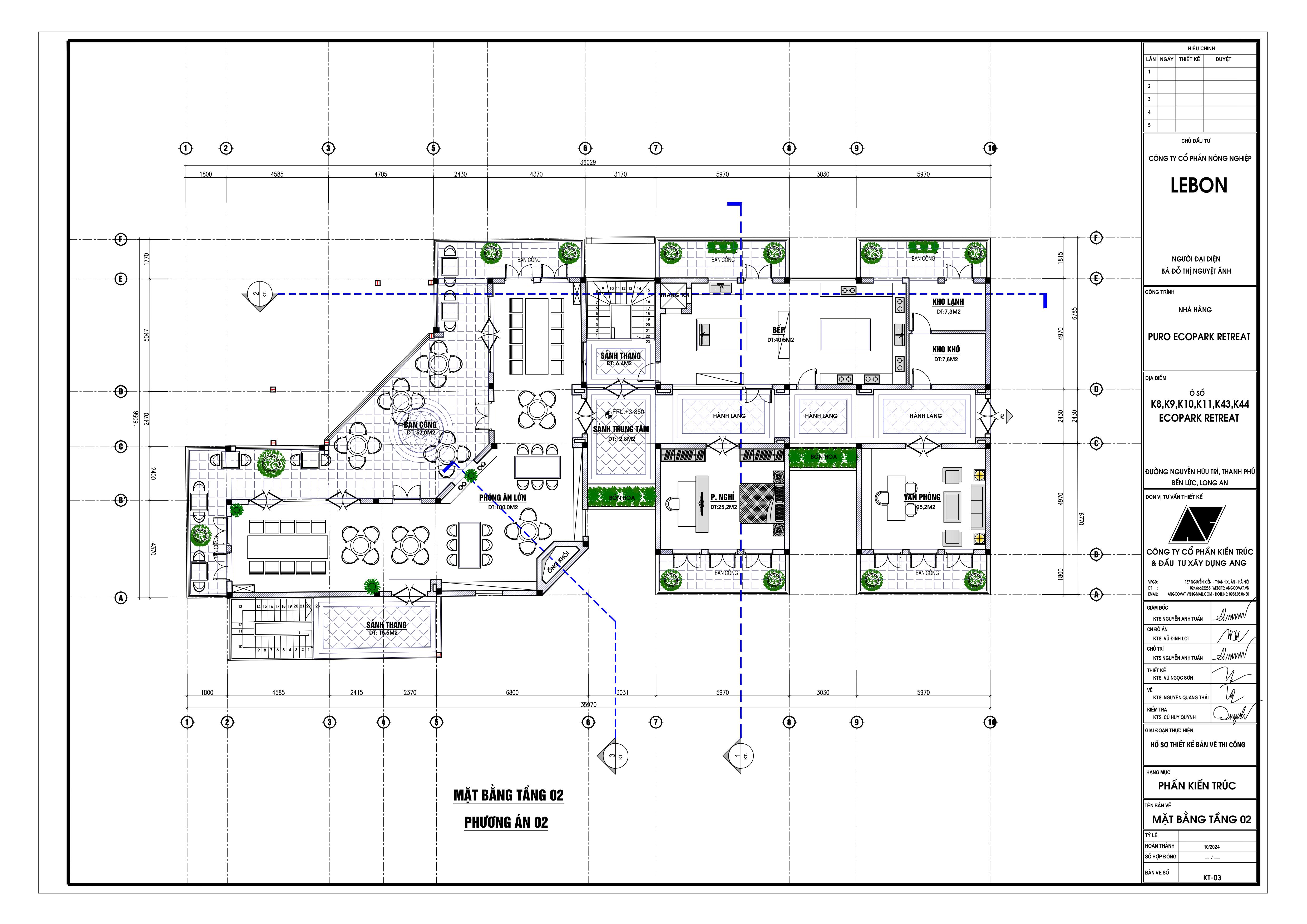
Mặt bằng công năng tầng 2
Khu vực tầng 2, thiết kế đã tận dụng tối đa diện tích ở khu vực ban công để bố trí bàn ăn ngoài trời và cũng có các không gian ăn uống trong nhà như khu vực tầng 1.
Phía bên phải tầng 2 được quy hoạch thành khu vực nội bộ của nhà hàng. Thiết kế có khu vực bếp rộng rãi, có ban công và cửa sổ giúp không gian luôn thông thoáng. 2 phòng kho lạnh và kho khô để bảo quản thực phẩm của nhà hàng. Đối diện là văn phòng làm việc của kế toán và giám đốc cùng 1 phòng nghỉ ngơi, thay đồ đảm bảo sự riêng tư và thuận lợi trong vận hành.

Mặt bằng công năng tầng 2
Thiết kế nhà hàng phong cách địa trung hải là lựa chọn kinh doanh vô cùng lý tưởng về không gian ẩm thực ấm áp, hoài niệm và giàu tính trải nghiệm. Mang trong mình những đặc trưng kiến trúc đậm tinh thần vùng biển phóng khoáng, mô hình này giúp chủ đầu tư tạo nên dấu ấn riêng biệt trong mắt khách hàng, từ đó giúp công việc kinh doanh được tiến triển thuận lợi. Để được hỗ trợ thêm thông tin về bản vẽ thiết kế và báo giá chi tiết, hãy liên hệ với chúng tôi qua Hotline: 0988 030 680.
Gửi yêu cầu tư vấn
Khách hàng vui lòng gọi điện vào hotline, Gửi yêu cầu tư vấn, Comment yêu cầu tư vấn dưới mỗi bài viết. Chúng tôi sẽ xử lý và trả lời yêu cầu tư vấn khách hàng trong 8h làm việc.
CÔNG TY CỔ PHẦN KIẾN TRÚC VÀ ĐẦU TƯ XÂY DỰNG ANG
Trụ sở: 211 - Khương Trung - Thanh Xuân - Hà Nội
Văn phòng: Số 137 Nguyễn Xiển - Thanh Xuân - Hà Nội.
Chi nhánh HCM: KDC Thới An, phường Thới An ,quận 12, TPHCM.
Chi nhánh Đà Nẵng: 268-270 đường 30/4, Quận Hải Châu, TP Đà Nẵng.
Hotline: 0988030680 - Tel: 02466622256 - Email: angcovat.vn@gmail.com

Bình luận