Biệt thự nhà vườn 2 tầng Địa Trung Hải - Công năng 4 ngủ khoa học BT030226
https://angcovat.vn/biet-thu/biet-thu-2-tang/5033-biet-thu-nha-vuon-2-tang-dia-trung-hai-cong-nang-4-ngu-khoa-hoc-bt030226.html#sigProId9066e74304
Trong các lối kiến trúc ngày nay thì các mẫu biệt thự nhà vườn 2 tầng địa trung hải vẫn luôn được coi là vị thế độc tôn bởi vẻ đẹp tinh tế, lãng mạn, hào phóng và tính kết nối với thiên nhiên. Không quá cầu kỳ như cổ điển Pháp hay cứng nhắc như phong cách hiện đại. Kiến trúc Địa Trung Hải mang tới cảm giác yên bình, thư thái giống như đang nghỉ dưỡng ở một khu resort ven biển. Bài viết sau đây của Angcovat sẽ giới thiệu tới bạn đầy đủ các thông tin về mẫu biệt thự tuyệt đẹp của gia đình ông Thanh – Minh chứng hoàn hảo cho lối kiến trúc tuyệt đẹp.
1. Thông tin cơ bản về mẫu biệt thự nhà vườn 2 tầng địa trung hải BT030626
|
BT030626 |
|
2 tầng |
|
Ông Thanh |
|
Thôn Đầu Cầu – Xã Lạng Giang – Tỉnh Bắc Ninh |
|
350m2 |
|
Kiến trúc sư Angcovat |
|
2026 |
|
Liên hệ KTS tư vấn chi phí thi công 0988 030 680 |
|
Diện tích sử dụng 110m2/sàn - Thông số công năng: Tầng 1: Tiền sảnh 12.5m2, phòng khách 26.5m2, sảnh phụ 8m2, phòng bếp + ăn 24.5m2, Wc 6.1m2, phòng thờ 20m2, phòng ngủ 16m2. Tầng 2: Phòng ngủ 3 13.15m2, SHC 12m2, Ban công 1.8m2, phòng ngủ 4 18m2, ban công 4.5m2, wc2 6.1m2, sảnh tầng 5m2, sân chơi 11.5m2, phòng ngủ 2 16m2. |
2. Mong muốn của chủ đầu tư và ý tưởng thiết kế biệt thự nhà vườn 2 tầng địa trung hải
2.1. Mong muốn của gia chủ
Với mảnh đất rộng 350m2 tại Lạng Giang, ông Thanh đưa ra yêu cầu cho đội ngũ KTS Angcovat:
- Căn nhà cần có không gian mở, thông thoáng và tận dụng được ánh sáng tự nhiên và gió trời.
- Yêu thích sự sang trọng nhưng không quá phô trương, cần có nét mềm mại, gần gũi.
- Có 4 phòng ngủ và có phòng thờ trang trọng ở khu vực tầng 1 cùng các khoảng không gian ngoài trời để thư giãn.
- Có thêm khoảng sân vườn.
Xem thêm: Thiết kế nhà 2 tầng Indochine 120m2

Kiến trúc biệt thự đẹp 2 tầng mái Nhật
2.2. Giải pháp của kiến trúc sư
Sau khi lắng nghe ý kiến từ chủ đầu tư, KTS đã tư vấn phương án biệt thự nhà vườn 2 tầng địa trung hải. Cụ thể:
- Bố trí kiểu hình khối chữ L để tối ưu công năng diện tích sàn.
- Hệ mái ngói địa trung hải và các chi tiết vòm cong sẽ giúp công trình trở nên mềm mại, loại bỏ đi sự thô cứng của bê tông mang tới vẻ đẹp thanh lịch.
- Hệ cửa lớn và ban công rộng giúp xóa nhòa ranh giới giữa không gian trong và ngoài vườn.
3. Phân tích vẻ đẹp ngoại thất biệt thự nhà vườn 2 tầng địa trung hải
Để làm rõ hơn về vẻ đẹp của mẫu biệt thự nhà vườn 2 tầng địa trung hải thì ngay sau đây hãy cùng theo dõi kỹ phối cảnh của công trình qua từng hình ảnh:
3.1. Tổng thể hình khối và màu sắc
Ngay từ cái nhìn đầu tiên thì công trình đã hiện lên trước mắt bạn với dáng vẻ bề thế, thanh thoát.
- Màu sắc chủ đạo: KTS sử dụng tông màu kem làm nền tảng. Trong lối kiến trúc Địa Trung Hải thì màu trắng không chỉ đơn giản giúp phản xạ ánh nắng mặt trời mà còn làm nổi bật màu xanh của cây cối và màu đỏ của hệ mái ngói. Bên cạnh đó ở trên nền tưởng trắng còn điểm xuyết thêm một số đường viền, gờ phào màu nâu gỗ, tạo ra sự ấm áp, cân bằng vẻ đẹp thị giác.
- Hệ thống cửa vòm: Đây được coi là linh hồn của lối kiến trúc Địa Trung Hải. Bạn có thể thấy các ô cửa sổ ở tầng 2 và cửa đi phụ đều được thiết kế với dạng vòm cong mềm mại. Chi tiết này cũng giúp căn nhà trở nên duyên dáng, nghệ thuật hơn hẳn so với các khung cửa vuông vức.
Đừng bỏ qua: Biệt thự vườn 2 tầng mái nhật 130m2

Mẫu biệt thự nhà vườn 2 tầng địa trung hải đẹp sang trọng
3.2. Vật liệu hoàn thiện trong biệt thự nhà vườn 2 tầng địa trung hải
Nhìn chung KTS Angcovat vẫn tập trung vào các loại vật liệu mộc mạc, đơn giản.
- Hệ cửa: Toàn bộ công trình đều được dùng hệ thống cửa gỗ tự nhiên để tạo sự sang trọng và đẳng cấp. Bên cạnh đó là hệ kính xingfa vân gỗ cao cấp cho các ô cửa sổ. Kính có khả năng giúp lấy sáng tối đa, cho phép gia chủ ngồi trong nhà nhưng vẫn có thể ngắm nhìn được cảnh sắc sân vườn xung quanh.
- Lan can sắt: Thay vì sử dụng các con tiện bê tông nặng, KTS đã chọn làm lan can sắt tĩnh điện màu đen mềm mại. Sự tương phản giữa 2 hệ màu đen và trắng đã tạo ra nét chấm phá hiện đại, thanh lịch.
- Chân đường ốp đá: Phần chân đế công trình được ốp đá màu ghi xám/ đen. Điều này không đơn giản làm cho toàn bộ công trình trở nên vững chắc mà còn giúp bảo vệ tường khỏi rêu mốc, bụi bẩn.

Phối cảnh ngoại thất công trình biệt thự 2 tầng tinh tế
3.3. Không gian thư giãn – Cảnh quan sân vườn
Từ góc nhìn trên cao thì càng thể hiện rõ sự tài tình trong cách quy hoạch của các KTS.
- Hệ lam gỗ ở khu vực tầng 2: Tại khu vực tầng 2 thì có một hệ lam gỗ được thiết kế đua ra. Đây là nơi mà chủ đầu tư có thể trồng các loại dây leo như hoa giấy, hoa hồng tạo ra một khoảng xanh tươi mát. Phía dưới có thể đặt thêm một bộ bàn ghế uống trà để chill chill mỗi khi chiều về.
- Ban công rộng: Toàn bộ phần ban công được thiết kế bao quanh mặt tiền giúp gia tăng diện tích sử dụng, đồng thời đóng vai trò như một mái hiên che nắng mưa cho toàn bộ tầng 1.
Có thể bạn quan tâm: Nhà mái bằng 2 tầng ở nông thôn
3.4. Hệ mái ngói - Dấu ấn đặc trưng của nhà mái ngói Địa Trung Hải
Có thể nói trong mẫu biệt thự nhà vườn 2 tầng địa trung hải thì dấu ấn đặc trưng nhất cho lối kiến trúc này nằm ở phần hệ mái. Không giống mái ngói thái hay ngói nhật có độ dốc tỏa ra các hướng, ở mái ngói Địa trung hải có các đặc điểm nổi bật như:
- Độ dốc thấp: Mái có độ dốc tháp hơn so với lối kiến trúc truyền thống. Phần hiên đua ra khá rộng vừa đủ để thoát nước mưa nhanh chóng.
- Màu sắc ngói và chất liệu: Sử dụng loại ngói sóng lớn màu nâu đỏ là đặc điểm dễ thấy ở kiến trúc Địa trung hải. Qua đó thể hiện sự mộc mạc, hoài cổ và cực kỳ nổi bật giữa bầu trời xanh.

Góc nhìn toàn cảnh căn biệt thự 2 tầng địa trung hải
4. Phân tích mặt bằng công năng biệt thự nhà vườn 2 tầng địa trung hải
Sau khi bàn giao hồ sơ, chủ đầu tư vô cùng hài lòng không chỉ với vẻ đẹp ngoại thất của căn biệt thự nhà vườn 2 tầng địa trung hải mà vô cùng ưng ý cách bố trí công năng khoa học:
4.1. Bản vẽ quy hoạch
Ở bản vẽ tổng mặt bằng quy hoạch này có thể thấy được ngôi nhà được lùi về phía sau tâm đất, tạo ra một khoảng sân trước vô cùng rộng để có chỗ làm nơi để xe hoặc vui chơi cho trẻ nhỏ. Hệ thống cây xanh được bố trí bao quanh tường rào ở các góc nhà khiến công trình luôn tràn ngập sắc xanh. Bên cạnh đó việc di chuyển cũng trở nên thuận tiện hơn với lối đi được lát đá dạo quanh vườn.

Tổng mặt bằng công trình biệt thự 2 tầng địa trung hải
4.2. Mặt bằng công năng nhà tầng 1 và tầng 2
Công năng mặt bằng tầng 1 gồm: Tiền sảnh 12.5m2, phòng khách 26.5m2, sảnh phụ 8m2, phòng bếp + ăn 24.5m2, Wc 6.1m2, phòng thờ 20m2, phòng ngủ 16m2.
- Khu vực phòng khách: Được đặt ngay ở sảnh chính lối đi vào, liên thông trực tiếp với các khu vực khác tạo cảm giác thông thoáng.
- Khu vực phòng thờ: Điều đặc biệt ở mẫu biệt thự nhà vườn 2 tầng địa trung hải này chính là khu vực phòng thờ được đặt trang trọng ngay tầng 1, cạnh phòng khách và hướng ra phía mặt tiền. Điều này vô cùng thuận tiện cho việc thờ cúng, nhất là các gia đình có người già.
- Khu vực bếp + ăn” Nằm sâu bên trong và có cửa đi thông ra sân vườn. Thiết kế này giúp mùi thức ăn không thể lan ra các khu vực khác trong nhà.
- Khu vực phòng ngủ: Dành cho khách hoặc người già/ trẻ nhỏ. Đặt ở nơi yên tĩnh và có vệ sinh ngay bên cạnh.

Mặt bằng khu vực tầng 1 căn biệt thự 2 tầng
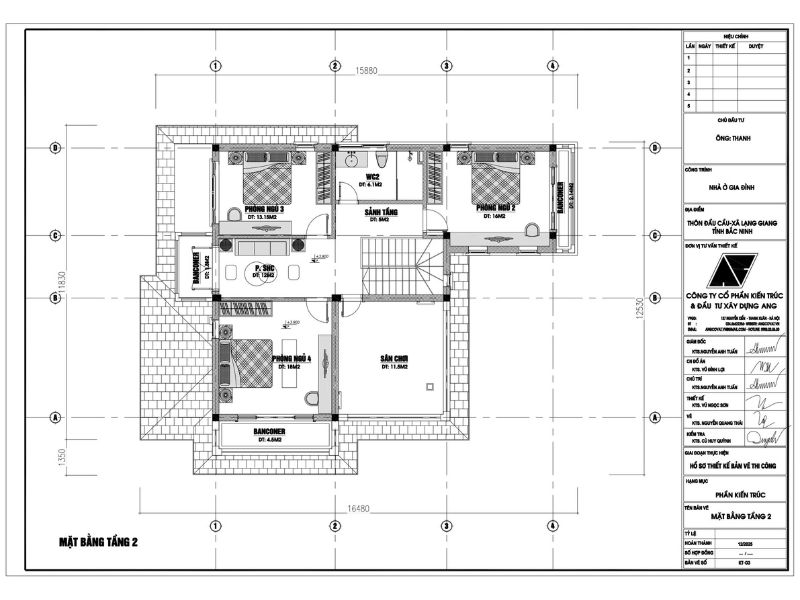
Công năng mặt bằng tầng 2 gồm: Phòng ngủ 3 13.15m2, SHC 12m2, Ban công 1.8m2, phòng ngủ 4 18m2, ban công 4.5m2, wc2 6.1m2, sảnh tầng 5m2, sân chơi 11.5m2, phòng ngủ 2 16m2.
- Khu vực phòng ngủ: Tầng 2 có bố trí thêm 3 phòng ngủ với diện tích từ 13-18m2. Các phòng đều có cửa sổ lớn với đầy đủ đồ nội thất.
- Phòng SHC: Nằm ở trung tâm nhà, đây là nơi mà các thành viên có thể gắn kết tình cảm với nhau.
- Sân chơi: Khu vực ngoài trời.
Mặt bằng khu vực tầng 2 căn biệt thự 2 tầng
5. Lời kết
Mẫu biệt thự nhà vườn 2 tầng địa trung hải của gia đình ông Thanh tại Bắc Ninh được xem là sự kết hợp tinh tế giữa lối sống truyền thống và phóng khoáng của kiến trúc phương Tây. Nếu bạn cũng đang sở hữu một quỹ đất tương tự và muốn có được không gian sống tuyệt vời như vậy, hãy liên hệ ngay với chúng tôi thông qua: 0988030680.
Gửi yêu cầu tư vấn
Khách hàng vui lòng gọi điện vào hotline, Gửi yêu cầu tư vấn, Comment yêu cầu tư vấn dưới mỗi bài viết. Chúng tôi sẽ xử lý và trả lời yêu cầu tư vấn khách hàng trong 8h làm việc.
CÔNG TY CỔ PHẦN KIẾN TRÚC VÀ ĐẦU TƯ XÂY DỰNG ANG
Trụ sở: 211 - Khương Trung - Thanh Xuân - Hà Nội
Văn phòng: Số 137 Nguyễn Xiển - Thanh Xuân - Hà Nội.
Chi nhánh HCM: KDC Thới An, phường Thới An ,quận 12, TPHCM.
Chi nhánh Đà Nẵng: 268-270 đường 30/4, Quận Hải Châu, TP Đà Nẵng.
Hotline: 0988030680 - Tel: 02466622256 - Email: angcovat.vn@gmail.com

Bình luận