Phương án thiết kế nhà hàng 3 tầng kiểu địa trung hải sang trọng tại Đà Nẵng BT091225
https://angcovat.vn/biet-thu/biet-thu-3-tang/4988-phuong-an-thiet-ke-nha-hang-3-tang-kieu-dia-trung-hai-sang-trong-tai-da-nang-bt091225.html#sigProIdb2047bc75b
Càng về cuối năm thì ngành F&B ngày càng có sự cạnh tranh khốc liệt. Cũng bởi vậy mà ngoài chất lượng đồ ăn thì không gian trải nghiệm được xem là yếu tố quan trọng giữ chân khách hàng. Thiết kế nhà hàng 3 tầng kiểu địa trung hải được KTS Angcovat chia sẻ dưới đây không chỉ đơn giản là một nơi để ăn uống mà còn là sự kiến tạo đẳng cấp ngay giữa lòng thành phố Đà Nẵng. Cùng theo dõi để nắm bắt được cách bố trí công năng khoa học ngay trong bài viết sau đây nhé
Xem thêm: Thiết kế nhà hàng 300m2 phong cách địa trung hải
1. Thông tin thiết kế nhà hàng 3 tầng kiểu địa trung hải BT091225
|
BT091225 |
|
3 tầng |
|
Bà Ánh |
|
Thửa đất C37, Tổ bản đồ KT02 phường An Hải Bắc, quận Sơn Trà, TP Đà Nẵng |
|
350m2 |
|
Kiến trúc sư Angcovat |
|
2025 |
|
Chi tiết tư vấn và báo giá xin mời liên hệ Kiến trúc sư: 0988.030.680 |
|
- Diện tích sàn: 300m2 +) Tầng 1: Hành lang 10m2, Phòng ăn 40.5m2, sảnh trung tâm 12.2m2, phòng ăn 23.5m2, WC 10m2, phòng Pizza + ăn 68m2, +) Tầng 2: Phòng ăn 50.5m2, sảnh tầng 12.2m2, phòng ăn 23.5m2, wc 10m2, phòng ăn 62m2, +) Tầng 3: Phòng ăn 41.5mm2, sảnh tầng 12.2m2, phòng LV 13.8m2, Kho đông 9m2, kho lạnh 7.2m2, kho khô 3.6m2, KG bếp 69.5m2. |
2. Yêu cầu thiết kế nhà hàng 3 tầng kiểu địa trung hải
Ngay từ buổi gặp mặt đầu tiên bà Ánh đã đặt vấn đề với các KTS Angcovat về việc muốn tận dụng tối đa lợi thế của lô đất có 2 mặt tiền. Phong cách kiến trúc chủ đầu tư mong muốn ở đây là Địa Trung Hải với ý định mang hơi thở của vùng biển Tây Ban Nha về Đà Nẵng. Công trình cần có sự phóng khoáng, lãng mạn nhưng hơn hết đảm bảo được sự sang trọng.
Qua những lần chia sẻ và trao đổi, Angcoavat đã chốt phương án thiết kế sơ bộ như sau:
- Công năng: Có 3 tầng.
- Điểm nhấn: Nằm ở hệ mái vòm đặc trưng của kiến trúc Địa Trung Hải.
- Không gian mở: Tận dụng tốt ảnh sáng tự nhiên và gió trời. Cần có sự kết nối cả khu vực trong và ngoài nhà hàng.
Các KTS Angcovat đã ngay lập tức lên phương án thiết kế nhà hàng 3 tầng kiểu địa trung hải và đưa ra những bản mẫu cho chủ đầu tư lựa chọn. Bà Ánh đã nhanh chóng lựa chọn được thiết kế mà mình hài lòng và cho đi vào thi công trong đầu năm 2026 sắp tới.
3. Dự toán chi phí thiết kế nhà hàng 3 tầng kiểu địa trung hải
Để xây dựng các công trình lớn như thiết kế nhà hàng 3 tầng kiểu địa trung hải trên đây thì chủ đầu tư cần có sự chuẩn bị kỹ càng về chi phí. Dưới đây là dự toán mà Angcovat đưa r:
Diện tích theo từng phần:
- Diện tích 3 tầng: 3 tầng x 350m2 = 1.050m2.
- Diện tích mái = 50% diện tích sàn = 175m2.
- Diện tích móng = 50% diện tích sàn = 175m2.
- Hệ mái bằng = 50% diện tích sàn = 175m2.
- Tổng diện tích xây dựng = 1575
Hiện nay có 2 gói báo giá thường được sử dụng:
- Gói xây thô có đơn giá từ 4.500.000 – 5.500.000 VNĐ/m2. Nếu tạm tính với mức giá là 5.000.000 VNĐ thì sẽ tốn khoảng 7 tỷ 875 triệu VNĐ.
- Gói chìa khóa trao tay có đơn giá khá cao từ 7.000.000 – 9.000.000 VNĐ/m2. Tạm tính với tổng diện tích là 1575m2 thì sẽ mất khoảng 12 tỷ 600 triệu VNĐ.
Lưu ý: Đây chỉ là con số mang tính chất tham khảo.

Phối cảnh ngoại thất thiết kế nhà hàng 3 tầng kiểu địa trung hải
4. Phối cảnh ngoại thất thiết kế nhà hàng 3 tầng kiểu địa trung hải
Nhìn vào phối cảnh 3D của mẫu thiết kế nhà hàng 3 tầng kiểu địa trung hải bạn sẽ cảm nhận được sự sang trọng và đẳng cấp của toàn bộ công trình:
4.1. Thiết kế nhà hàng 3 tầng kiểu địa trung hải – Màu sắc và vật liệu
Toàn bộ công trình thiết kế nhà hàng 3 tầng kiểu địa trung hải được sử dụng màu vàng kem đặc trưng. Đây không đơn giản là gam màu tượng trưng cho ánh nắng mà còn là sự thịnh vượng, mang tới cảm giác ấm áp. Cách kết hợp này không phải bất kỳ đơn vị nào cũng có thể làm được vì nó dựa trên kinh nghiệm lâu năm với 20 năm tuổi nghề của các KTS Angcovat.
Hệ mái ngói che ở khu vực ban công các tầng có màu đỏ của gạch tạo ra sự tương phản mạnh mẽ với nền bầu trời và sắc vàng tường. Chi tiết này lại góp phần cho khách hàng cảm giác mộc mạc, gần gũi kèm chút hoài cổ. Đặc biệt không làm mất đi tính sang trọng, KTS đã sử dụng triệt để hệ thống vòm cửa kính có kích thước lớn. Toàn bộ đều là khung nhôm xingfa đen giúp khách hàng có thể ngồi thưởng thức đồ ăn bên trong mà vẫn ngắm nhìn được cảnh sắc bên ngoài.
Cùng khám phá: Thiết kế nhà 7x15m 3 tầng

Vẻ đẹp ngoại thất nhà hàng 3 tầng tại Đà Nẵng
4.2. Kiến trúc khu vực tầng 1 trong thiết kế nhà hàng 3 tầng kiểu địa trung hải
Khu vực tầng 1 có thể thấy theo yêu cầu của bà Ánh được thiết kế lùi vào trong một khoảng để nhường chỗ cho sân vườn rộng lớn. Hệ thống trụ cột vuông vức được bố trí đan xen nhau đỡ lấy các vòm cong mềm mại tạo ra một hành lang đệm đẹp mắt. Đây cũng được xem là nét đặc trưng không thể thiếu trong mỗi công trình Địa Trung Hải giúp che nắng mưa hiêu quả mà vẫn đón gió tốt.
Khoảng sân vườn được chủ đầu tư đặt thêm bàn ghế, quy hoạch gọn gàng với các khóm hoa và đài phun nước đặt cạnh tiểu cảnh ở khu vực trung tâm. Nhờ vậy mà bất kỳ khách hàng nào khi ghé nơi đây cũng sẽ cảm nhận được sự thư thái ngay sau khi đặt chân qua cửa cổng.

Phối cảnh góc cao toàn bộ khu vực ngoại thất nhà hàng
4.3. Cách chi tiết vòm đặc trưng trong thiết kế nhà hàng 3 tầng kiểu địa trung hải ở tầng 2 và 3
Không khô cứng như ở tầng 1, nếu dõi mắt lên tầng 2 và tầng 3 bạn sẽ thấy được sự bay bổng qua những chi tiết:
- Ban công sắt mỹ thuật: Lan can được KTS sử dụng toàn bộ là hệ thống lan can sắt nghệ thuật, vừa tinh tế vừa khiến toàn bộ công trình trở nên thanh thoát, mềm mại hơn.
- Khoảng giật cấp: Khối nhà không xây thẳng tắp giống kiến trúc hiện đại mà được giật cấp tạo ra các khoảng sân thượng bạn công rộng. Đây sẽ là nơi đắt giá cho các bữa tiệc được tổ chức cho những khách hàng có mong muốn tổ chức tiệc ngoài trời, những buổi tối lãng mạn dưới ánh nến và ngắm nhìn toàn bộ cảnh sắc Đà Năng về đêm.
- Ống khói giả: Thêm một chi tiết rất thú vị được KTS Angcovat thêm vào thiết kế nhà hàng 3 tầng kiểu địa trung hải là tháp nhỏ mô phỏng ống khói lò sưởi ở ngay phần mái. Từ đó gợi cho người nhìn sự hoài niệm về các căn nhà cổ Châu Âu.
5. Phân tích cách bố trí công năng trong thiết kế nhà hàng 3 tầng kiểu địa trung hải
Dưới dây là cách bố trí công năng chi tiết ở khu vực các tầng trong thiết kế nhà hàng 3 tầng kiểu địa trung hải.
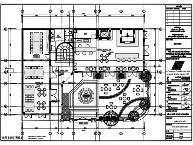
5.1. Mặt bằng tầng 1 - Thiết kế nhà hàng 3 tầng kiểu địa trung hải.
Công năng gồm: Hành lang 10m2, Phòng ăn 40.5m2, sảnh trung tâm 12.2m2, phòng ăn 23.5m2, WC 10m2, phòng Pizza + ăn 68m2.
Với diện tích 350m2 1 sàn thì tầng 1 được chia thành các khu vực như sau:
- Khu vực sân vườn ngoài trời: Được bố trí các bàn ăn đan xen hệ thống cây xanh. Điểm nhấn nằm ở chỗ thiết kế thêm lỗi đi lát đá uốn lượn dẫn vào khu vực sảnh chính.
- Sảnh trung tâm: Bước qua cửa chính là tới sảnh trung tâm, đây là nơi nhân viên tiếp đón khách. Bên phải là không gian phòng ăn và Pizza. Khu vực này thường sẽ được bố trí không gian mở để khách hàng có thể xem trực tiếp quá trình làm bánh, mang tới cảm giác vô cùng thú vị.
- Khu vực phòng ăn: Bao gồm các bàn dài dành cho gia đình.
- WC: Bố trí gọn gàng nằm ở góc khuất đảm bảo kín đáo.
Khám phá ngay: Thiết kế nhà rộng 6m dài 25m kết hợp kinh doanh trên đất thóp hậu

Mặt bằng tầng 1 nhà hàng 3 tầng kiến trúc Địa Trung Hải
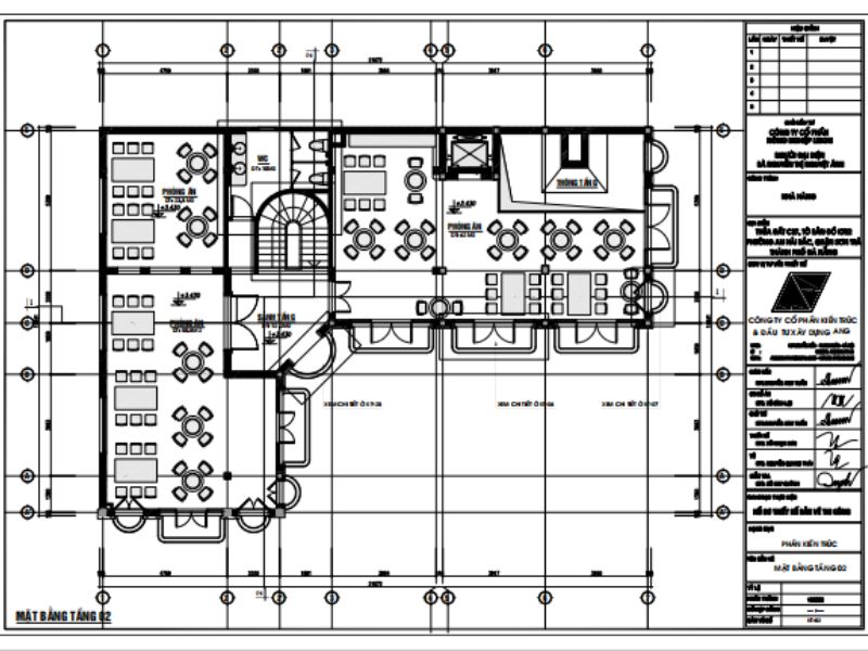
5.2. Mặt bằng tầng 2 - Thiết kế nhà hàng 3 tầng kiểu địa trung hải.
Công năng bao gồm: Phòng ăn 50.5m2, sảnh tầng 12.2m2, phòng ăn 23.5m2, wc 10m2, phòng ăn 62m2.
- Không gian ăn chung: Tầng 2 được thiết kế diện tích dành phần lớn cho không gian ăn uống trong nhà. Các bàn ăn được bố trí dọc theo các cửa sổ vòm lớn để tận dụng view bên ngoài nhà hàng.
- Sảnh tầng: KTS đã bố trí các khoảng thông tầng và sảnh thang rộng để có thể luân chuyển qua lại không khí, tránh mùi thức ăn làm ảnh hưởng trong quá trình khách dùng bữa.
- Hành lang chạy dài: Hệ thống hành lang được thiết kế gọn gàng giúp nhân viên di chuyển phục vụ nhanh chóng mà không làm ảnh hưởng tới việc khách hàng dùng bữa.

Mặt bằng tầng 2 nhà hàng 3 tầng kiến trúc Địa Trung Hải
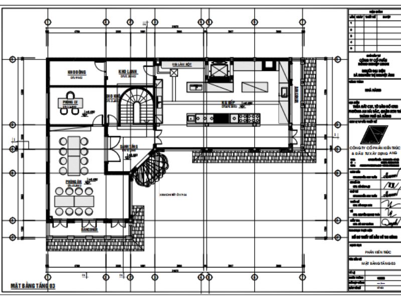
5.3. Mặt bằng tầng 3 - Thiết kế nhà hàng 3 tầng kiểu địa trung hải.
Công năng bao gồm: Phòng ăn 41.5mm2, sảnh tầng 12.2m2, phòng LV 13.8m2, Kho đông 9m2, kho lạnh 7.2m2, kho khô 3.6m2, KG bếp 69.5m2.
Điểm đặc biệt của cách bố trí này là bếp và kho sẽ được đặt trên tầng cao nhất.
- Khu Bếp: Xu hướng hiện đại ngày nay là thiết kế bếp ở tầng cao nhất của công trình. Điều này giúp mùi thức ăn theo hệ thống hút mùi bay thẳng lên mái mà không cần đi qua bất kỳ khu vực nào.
- Kho: Được phân loại rõ ràng giúp đảm bảo việc bảo quản thực phầm.
- Phòng LV: Tách biệt riêng với khu vực khách hàng.
- Sân thượng: Một phần diện tích tầng 3 dành cho khu vực ăn ngoài trời. Đây cũng là nơi để khách hàng tổ chức các buổi tiệc nước ngoài trời.

Mặt bằng tầng 3 nhà hàng 3 tầng kiến trúc Địa Trung Hải
Đừng bỏ lỡ: Biệt thự 3 tầng indochine 130m2

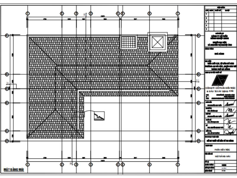
Mặt bằng tầng mái nhà hàng 3 tầng kiến trúc Địa Trung Hải
6. Kết luận
Mẫu thiết kế nhà hàng 3 tầng kiểu địa trung hải với diện tích 350m2 này là minh chứng rõ nhất cho xu hướng nhà hàng trong năm 2026. Không chỉ đáp ứng đầy đủ công năng vận hành mà còn tối ưu trong cách bố trí khu vực bếp, phòng ăn, lối di chuyển. Nếu bạn cũng đang ấp ủ ý tưởng về một không gian nhà hàng như này, hãy liên hệ ngay với Angcovat để được tư vấn chu đáo hơn thông qua hotline: 0988.030.680
Gửi yêu cầu tư vấn
Khách hàng vui lòng gọi điện vào hotline, Gửi yêu cầu tư vấn, Comment yêu cầu tư vấn dưới mỗi bài viết. Chúng tôi sẽ xử lý và trả lời yêu cầu tư vấn khách hàng trong 8h làm việc.
CÔNG TY CỔ PHẦN KIẾN TRÚC VÀ ĐẦU TƯ XÂY DỰNG ANG
Trụ sở: 211 - Khương Trung - Thanh Xuân - Hà Nội
Văn phòng: Số 137 Nguyễn Xiển - Thanh Xuân - Hà Nội.
Chi nhánh HCM: KDC Thới An, phường Thới An ,quận 12, TPHCM.
Chi nhánh Đà Nẵng: 268-270 đường 30/4, Quận Hải Châu, TP Đà Nẵng.
Hotline: 0988030680 - Tel: 02466622256 - Email: angcovat.vn@gmail.com

Bình luận