Thiết kế nhà hàng 300m2 phong cách địa trung hải mang vẻ đẹp yên bình BT281125
https://angcovat.vn/biet-thu/biet-thu-3-tang/4980-thiet-ke-nha-hang-300m2-phong-cach-dia-trung-hai-mang-ve-dep-yen-binh-bt281125.html#sigProIdd4d669fe3e
Nằm thu mình gọn gàng giữa nhịp sống tấp nập ở Đà Nẵng, thiết kế nhà hàng 300m2 phong cách địa trung hải giống như một bức tranh tuyệt sắc kết hợp giữa phong cách kiến trúc Địa Trung Hải và các gam màu nóng đặc trưng của mảnh đất du lịch này. Cũng từ đó mà bất kỳ khách hàng nào khi ghé nơi đây cũng được trải nghiệm ẩm thực vừa sáng trọng vừa gần gũi. Cùng Angcovat khám phá vẻ đẹp ngoại thất độc đáo của công trình sau khi cải tạo, nơi mà mỗi chi tiết đều được trau chuốt giúp tạo ra một không gian lý tưởng cho thực khách.
=>>> Xem thêm: Thiết kế nhà hàng phong cách indochine
Tổng quan về mẫu thiết kế nhà hàng 300m2 phong cách địa trung hải
|
BT281125 |
|
3 tầng |
|
Bà Ánh |
|
Đà Nẵng |
|
21m |
|
14m |
|
500m2 |
|
Kiến trúc sư Angcovat |
|
2025 |
|
Liên hệ trực tiếp KTS báo giá thi công 0988030680 |
|
- Diện tích: 300m2/sàn - Thông số công năng: +) Tầng 1: Cổng chính, Phòng Pizza 33m2, sân trước, hành lang, phòng ăn, wc 10m2, phòng ăn 60m2. +) Tầng 2: Thông tầng, phòng ăn 68m2, sảnh tầng, wc 10m2, phòng ăn bar 60m2. +) Tầng 3: Khu bếp 60m2, kho lạnh 5m2, kho đông 7.25m2, kho khô 3.6m2, phòng nghỉ nhân viên 16m2, wc, Phòng vip 1, Phòng vip 2. |
2. Lý do vì sao chủ đầu tư lựa chọn cải tạo nhà hàng theo kiến trúc Địa Trung Hải?
Theo những gì mà bà Ánh chia sẻ hiện nay ngành F&B đang cạnh tranh khá lớn, việc tạo ra một không gian ăn uống không chỉ cần mỗi ngon miệng mà còn cần phải có cả không gian đẹp. Đây cũng là yếu tố kiên quyết níu chân nhiều khách hàng ở lại. Thiết kế nhà hàng 300m2 phong cách địa trung hải đang trở thành xu hướng được nhiều gia chủ săn đón nhờ vẻ đẹp tự do và phóng khoáng nhưng không kém phần sang trọng, đẳng cấp.
Với diện tích khoảng 300m2 nằm ở ngay lô góc 2 mặt tiền thì phong cách Địa Trung Hải có khả năng phát huy tối đa lợi thế với mặt tiền rộng, tạo ra một biểu tượng rực rỡ dưới ánh nắng cũng như lung linh hơn mỗi khi đêm về.
3. Phương án thiết kế nhà hàng 300m2 phong cách địa trung hải
Công trình cải tạo nhà hàng của bà Ánh không đơn giản chỉ là một công trình nhà hàng thông thường mà KTS Angcovat đã khéo léo lồng ghép thêm nhiều chi tiết gần gũi với thiên nhiên từ màu sắc tới cây xây xanh, tạo ra sự ấm cúng và thư thái. Tuy nhiên vẫn toát ra được vẻ sang trọng và dẳng cấp, không phải tới từ sự phô trương mà từ sự tinh tế trong từng chi tiết, vật liệu cao cấp tới gam màu nóng ấm.
3.1. Phối cảnh ngoại thất thiết kế nhà hàng 300m2 phong cách địa trung hải
Từ phối cảnh ngoại thất của dự án, bạn có thể thấy được nét đặc trưng riêng biệt của mẫu công trình này:
A. Hình khối kiến trúc
Công trình được sử dụng nhiều hình khối vững chãi nhưng không gợi sự thô cứng nhờ các vòm cong mềm mại. Mỗi ô cửa kính lớn chạy dọc phần mặt tiền các tầng không đơn giản chỉ là điểm nhấn thẩm mỹ mà còn giúp đón gió và ánh sáng tự nhiên tối đa, tạo sự thông thoáng cho không gian bên trong mỗi khi khách hàng ghé thăm trải nghiệm và ăn uống.
B. Hệ mái ngói đỏ trong thiết kế nhà hàng 300m2 phong cách địa trung hải
Nhìn vào bức tranh tổng quan thứ người nhìn cảm thấy đặc trưng nhất có lẽ vẫn là hệ mái ngói dốc màu đỏ đất nung. Mái ngói giật cấp kết hợp cùng với tháp giả ống khói tạo ra hiệu ứng vô cùng sinh động gợi cảm giác đây không giống một nhà hàng mà là một lâu đài cổ kính hòa nhập cùng nét văn hóa phố cổ Đà Nẵng.
Khám phá ngay: Thiết kế nhà 7x15m 3 tầng

Kiến trúc thiết kế nhà hàng 300m2 phong cách địa trung hải đẹp mắt
C. Không gian mở thông thoáng
Ở các khu vực tầng 2 và tầng 3 thì hệ thống lan can sắt mỹ thuật được sử dụng đua ra phần mặt tiền. Bên cạnh đó là các chậu cây xanh tạo ra khoảng đệm thư giãn tuyệt vời, khách hàng có thể vừa thưởng thức ẩm thực, vừa ngắm trọn được cảnh sắc phố phường trong khoảng thời gian dùng bữa.
D. Cách sử dụng gam màu nóng ấm trong thiết kế nhà hàng 300m2 phong cách địa trung hải
Thứ tạo ra vẻ đẹp trọn vẹn của mẫu thiết kế nhà hàng 300m2 phong cách địa trung hải chính là gam màu nóng ấm. Điều này dường như càng kích thích vị giác và cảm xúc của mỗi thực khách ghé ăn Pizza. Cụ thể:
- Sắc vàng từ sơn cao cấp: Toàn bộ phần mặt tiền của công trình bà Ánh yêu cầu sử dụng một màu vàng kem đậm. Có thể dễ dàng nhận thấy gam màu này mang tới cho người nhìn cảm giác vui vẻ và nhiều năng lượng. Một sự kết hợp tài tình giữa ánh đèn vàng ấm sẽ tạo ra sự sang trọng, ấm cúng khiến món ăn trong quán càng trở nên hấp dẫn, hút mắt người nhìn.
- Mái ngói nâu đất và gạch đỏ: Sự kết hợp giữa mái ngói đỏ và chi tiết gạch thô ở hệ thống ống khói, gỗ tự nhiên tạo ra cảm giác cân bằng. Từ những gam màu nóng này mà chúng ta có thể nhớ tới sự mộc mạc của mảnh đất Đà Nẵng cổ kính, mang tới cảm giác gần gũi, quen thuộc như ở quê nhà.
- Mảng cây xanh tương phản: Đây là cách làm vô cùng thông minh của các KTS Angcovat với 20 năm kinh nghiệm. Nếu dùng toàn bộ phối cảnh là màu nóng thì rất dễ khiến tạo cảm giác bức bách, tuy nhiên việc đưa thêm các khối cây xanh và màu đen của khung cửa nhôm kính, lan can sắt đã tạo ra sự tương phản khiến công trình trở nên hài hòa hơn.

Mẫu thiết kế nhà hàng 300m2 phong cách địa trung hải sang trọng
E. Cổng vào khuôn viên mềm mại
Công trình có duy nhất một cổng chính được thiết kế uốn cong trước tiền sảnh được coi là nét chấm phá vô cùng độc đáo trong thiết kế nhà hàng 300m2 phong cách địa trung hải. Màu nâu của vật liệu cổng chào tạo sự tương phản nhẹ nhàng với màu vàng chủ đạo, đồng thời mang tới cảm giác thanh thoát.
Có thể thấy được thiết kế nhà hàng 300m2 phong cách địa trung hải là cái bắt tay thành công giữa KTS Angcovat và bà Ánh. Công trình không đơn giản là khung nền cho không gian ẩm thực mà còn là tác phẩm nghệ thuật mời gọi khách bước vào, cảm nhận sự tinh tế và sang trọng mỗi khi có dịp ghé thăm Đà Nẵng.
Đừng bỏ qua: Mẫu biệt thự 3 tầng hiện đại 120m2

Không gian thiết kế nhà hàng 300m2 phong cách địa trung hải tráng lệ
3.2. Phân tích mặt bằng thiết kế nhà hàng 300m2 phong cách địa trung hải
Theo công năng có trong bản vẽ thiết kế nhà hàng 300m2 phong cách địa trung hải thì có thể thấy được cách mà KTS Angcovat tối ưu toàn bộ công năng:
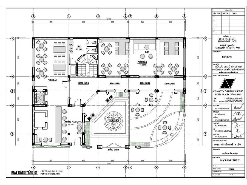
A. Mặt bằng khu vực tầng 1
Công năng mặt bằng bao gồm: Cổng chính, Phòng Pizza 33m2, sân trước, hành lang, phòng ăn, wc 10m2, phòng ăn 60m2.
- Khu vực sân trước được KTS tận dụng làm lợi thế khi một phần diện tích được sử dụng cho việc thiết kế cảnh quan có đường cong mềm mại. Đây là khu vực mà du khách có thể ngồi coffee, thưởng trà sau hoặc trước bữa ăn.
- Phòng Pizza: Được bố trí ngay cạnh cửa để khách hàng có thể theo dõi được kỹ năng của đầu bếp. Thu hút khách hàng ngay khi bước chân vào nhà hàng.
- Khu vực bàn ăn: Bố trí linh hoạt các dạng bàn tròn và bàn vuông xen kẽ đáp ứng nhu cầu của người dùng.

Mặt bằng tầng 1 thiết kế nhà hàng 300m2 phong cách địa trung hải
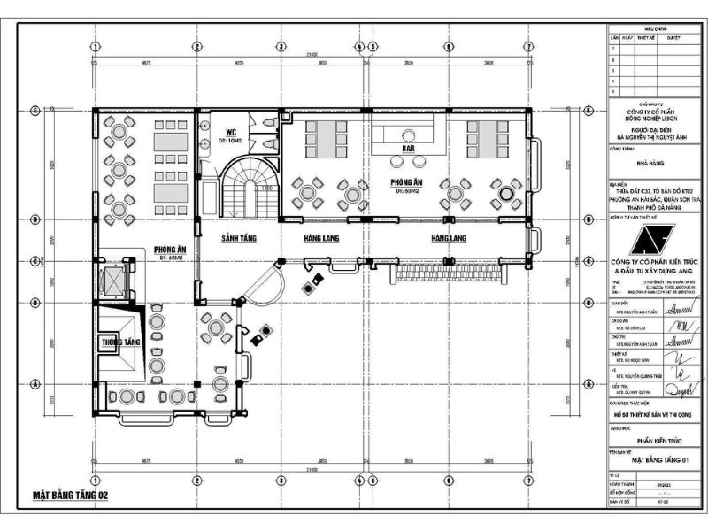
B. Mặt bằng khu vực tầng 2
Công năng mặt bằng bao gồm: Thông tầng, phòng ăn 68m2, sảnh tầng, wc 10m2, phòng ăn bar 60m2.
- Phòng ăn: Diện tích sàn tầng 2 được KTS tập trung cho việc ăn uống trong nhà. Những bàn ăn được bố trí dọc theo phía cửa sổ để khách hàng có thể vừa dùng bữa vừa ngắm đường phố.
- Quầy bar: Một quầy bar pha chế được bố trí trung tâm, phục vụ đồ uống cho thực khách tại tầng này.
- Sảnh tầng: Giúp kết nối không gian theo chiều dọc, giúp khách hàng ở tầng 2 có thể quan sát được khu vực tầng 1. Bên cạnh đó cũng làm cho toàn bộ không gian trong nhà hàng trở nên thông thoáng hơn.

Thiết kế nhà hàng 300m2 phong cách địa trung hải với công năng mặt bằng tầng 2
Có thể bạn quan tâm: Mẫu biệt thự 3 tầng Indochine 130m2
C. Mặt bằng khu vực tầng 3
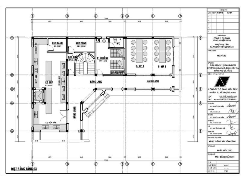
Khu vực tầng 3 bao gồm: Khu bếp 60m2, kho lạnh 5m2, kho đông 7.25m2, kho khô 3.6m2, phòng nghỉ nhân viên 16m2, wc, Phòng vip 1, Phòng vip 2.
- Khu vực bếp nóng và bếp lạnh: Được phân chia rõ ràng để đảm bảo thực phẩm luôn được bảo quản đúng cách. Cách đặt bếp trên tầng 3 này được KTS Angcovat gợi ý cho bà Ánh để việc thoát mùi dễ hơn, không làm ảnh hưởng tới việc khách dùng bữa.
- Phòng VIP 1+2: Dành cho các nhóm khách hàng cần tới sự riêng tư.
- Phòng nhân viên: Một phòng nhân viên được bố trí luôn ở tầng 3 để làm phòng nghỉ ngơi giữa lúc giao ca.

Mặt bằng tầng 3 của mẫu thiết kế nhà hàng 300m2 phong cách địa trung hải
4. Lời kết
Mẫu thiết kế nhà hàng 300m2 phong cách Địa Trung Hải của bà Ánh là minh chứng rõ nhất cho sự kết hợp hoàn hảo giữa vẻ đẹp kiến trúc và công năng sử dụng. Nếu bạn cũng đang có ý tưởng cho nhà hàng của mình trong khoảng thời gian sắp tới, liên hệ ngay cho Angcovat để được tư vấn tận tâm và chu đáo thông qua hotline: 0988.030.680.
Gửi yêu cầu tư vấn
Khách hàng vui lòng gọi điện vào hotline, Gửi yêu cầu tư vấn, Comment yêu cầu tư vấn dưới mỗi bài viết. Chúng tôi sẽ xử lý và trả lời yêu cầu tư vấn khách hàng trong 8h làm việc.
CÔNG TY CỔ PHẦN KIẾN TRÚC VÀ ĐẦU TƯ XÂY DỰNG ANG
Trụ sở: 211 - Khương Trung - Thanh Xuân - Hà Nội
Văn phòng: Số 137 Nguyễn Xiển - Thanh Xuân - Hà Nội.
Chi nhánh HCM: KDC Thới An, phường Thới An ,quận 12, TPHCM.
Chi nhánh Đà Nẵng: 268-270 đường 30/4, Quận Hải Châu, TP Đà Nẵng.
Hotline: 0988030680 - Tel: 02466622256 - Email: angcovat.vn@gmail.com

Bình luận