Biệt thự 2 tầng
Bản vẽ thiết kế nhà tứ hợp viện hiện đại 2 tầng – Phương án đẹp trên đất 1800m² BT1081225
https://angcovat.vn/biet-thu/biet-thu-2-tang/4987-ban-ve-thiet-ke-nha-tu-hop-vien-hien-dai-2-tang-phuong-an-dep-tren-dat-1800m-bt1081225.html#sigProIdc632b2d540
Thông tin chung về thiết kế nhà tứ hợp viện hiện đại 2 tầng
|
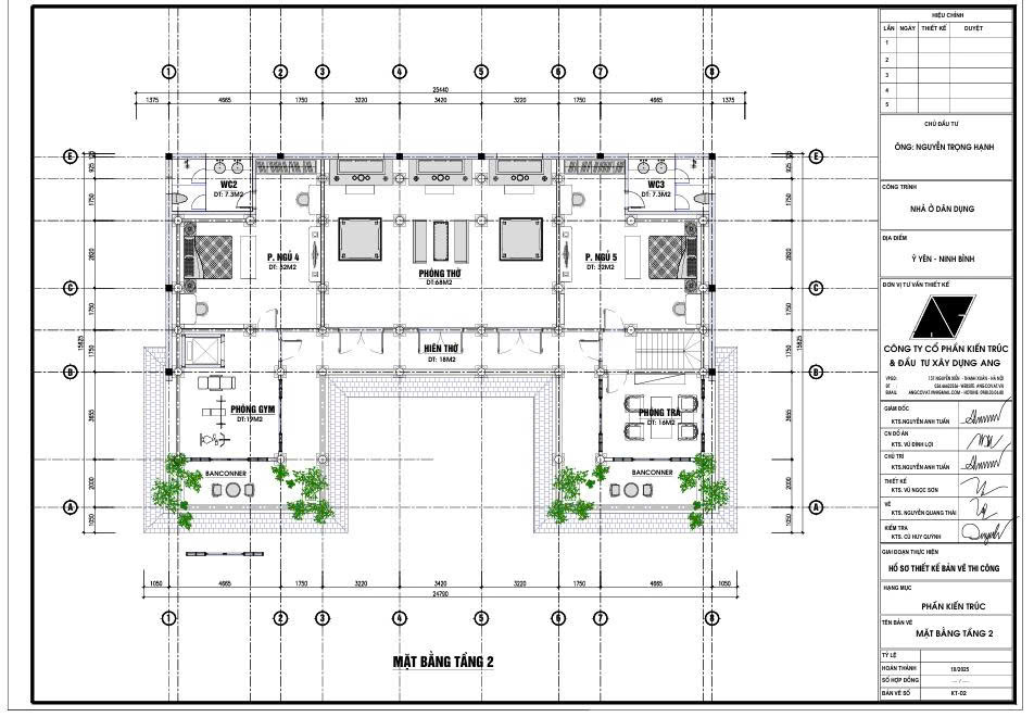
BT1081225 |
|
2 tầng |
|
Nguyễn Trọng Hạnh |
|
Ý Yên - Ninh Bình |
|
|
|
|
|
1800m2 |
|
Kiến trúc sư Angcovat |
|
2025 |
|
|
|
- Thiết kế tầng 1 nhà Bê tông giả gỗ: 350m2 - Thiết kế tầng 2 nhà gỗ: 270m2 - Quy hoạch mặt bằng tổng thể: 1800m2 |












Biệt Thự Tags
Gửi yêu cầu tư vấn
Khách hàng vui lòng gọi điện vào hotline, Gửi yêu cầu tư vấn, Comment yêu cầu tư vấn dưới mỗi bài viết. Chúng tôi sẽ xử lý và trả lời yêu cầu tư vấn khách hàng trong 8h làm việc.
CÔNG TY CỔ PHẦN KIẾN TRÚC VÀ ĐẦU TƯ XÂY DỰNG ANG
Trụ sở: 211 - Khương Trung - Thanh Xuân - Hà Nội
Văn phòng: Số 137 Nguyễn Xiển - Thanh Xuân - Hà Nội.
Chi nhánh HCM: KDC Thới An, phường Thới An ,quận 12, TPHCM.
Chi nhánh Đà Nẵng: 268-270 đường 30/4, Quận Hải Châu, TP Đà Nẵng.
Hotline: 0988030680 - Tel: 02466622256 - Email: angcovat.vn@gmail.com

Bình luận